Riferimento annuncio 272769
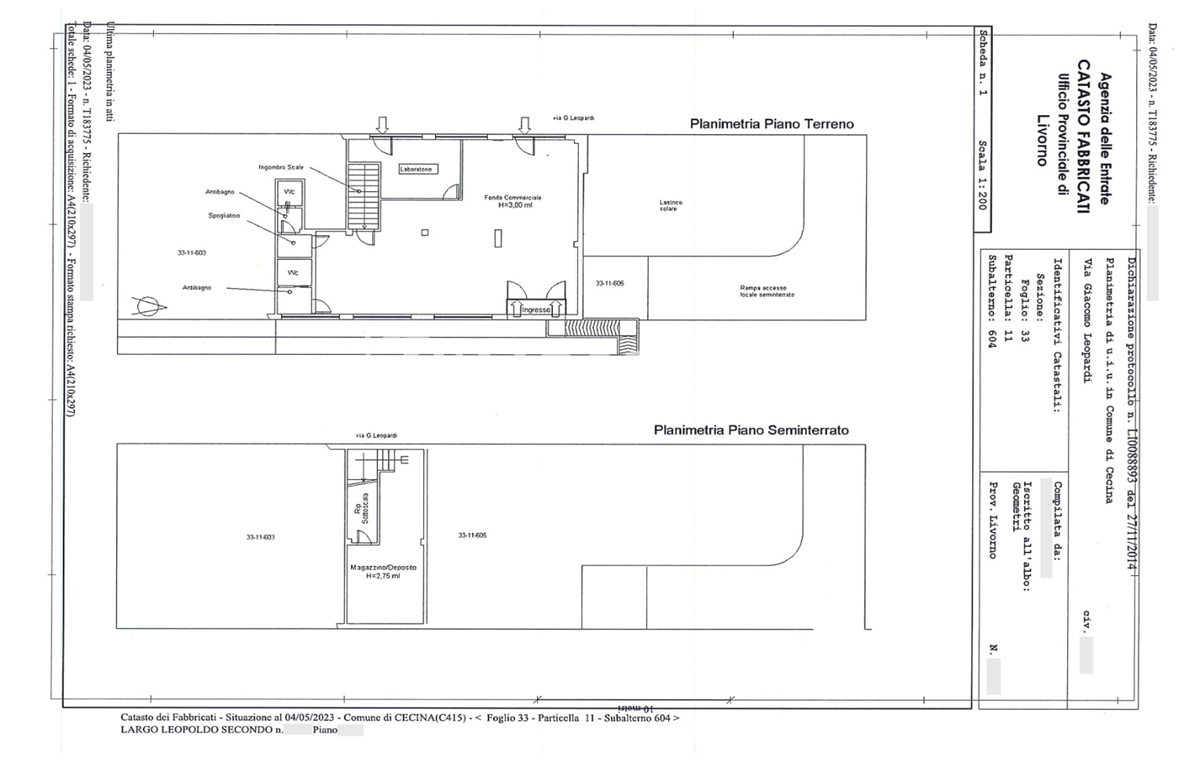
Negozio Via Giacomo Leopardi, 57023 Cecina (LI)
196
€ 252.540
Fondo sviluppato su due livelli di mq. 181 (piano terreno e piano seminterrato) e composto da un locale adibito alla ristorazione, un locale laboratorio/confezionamento prodotti e da un blocco servizi igienici e spogliatoio al piano terra, ampio magazzino al piano seminterrato.
Le pavimentazioni sono in ceramica ad entrambi i piani. I rivestimenti dei servizi igienici sono in ceramica.
Le porte interne sono in laminato plastico.
Il locale è dotato di controsoffitto a pannelli removibili con illuminazione integrata.Documentazione in fase di analisi.
APE:
Indicazione prestazione energetica: 170,99 kWh/mq anno
Indicazione prestazione energetica rinnovabile: 0 kWh/mq anno
Codice identificativo: 766717/2024
The property consists of two levels totaling 181 square meters (ground floor and basement) and includes a dining area, a laboratory for product processing, and toilet facilities and changing rooms on the ground floor, as well as a large warehouse in the basement.
The floors are tiled with ceramic tiles on both levels.
The toilet facilities are also tiled with ceramic tiles. The internal doors are made of plastic laminate. The premises have a suspended ceiling with removable panels and integrated lighting.
Documentation is currently being analyzed.
The floors are tiled with ceramic tiles on both levels.
The toilet facilities are also tiled with ceramic tiles. The internal doors are made of plastic laminate. The premises have a suspended ceiling with removable panels and integrated lighting.
Documentation is currently being analyzed.
| Superficie | 196 mq |
|---|---|
| Vani | |
| Bagni | |
| Piano |
| Tipologia di vendita | Privata |
|---|---|
| Modalità di vendita | Raccolta offerte |