highlight_off
Riferimento annuncio 258698 info

Negozio VIA DUSMET N.171, 95100 Catania (CT)

2,00
131,12
0
€ 60.506
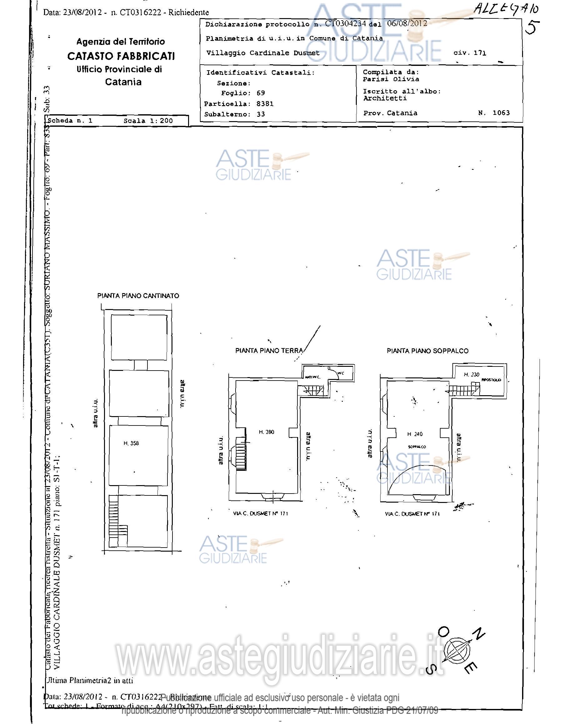
Vendita all'asta Senza incanto, con gara telematica sincrona mista - LOTTO UNICO: Lotto unico: bottega sita in Catania Via Dusmet n. 171, piano terra, di mq. 131,12, composta al piano terra da un grande vano, disimpegno e w.c., da un soprastante soppalco e ripostiglio, e da un piano cantinato, collegato al vano posto al piano terra da una scala in pietra lavica, privo di aerazione naturale. Prezzo base € 60.505,80 (offerta minima € 45.379,35). Data vendita 02/07/2026 ore 10:00. Professionista delegato alla vendita: Avv. Roberto Palazzo - Email "info@studiolegalepalazzo.com"; Tel. 095/388875. Custode Giudiziario: Avv. Roberto Palazzo - Email "info@studiolegalepalazzo.com"; Tel. 095/388875. Rif. Tribunale di Catania - Esecuzione immobiliare post legge 80 n. 890/2010

Superficie 131,12 mq
Vani 2,00
Bagni
Piano 0

Tipologia di vendita Giudiziaria
Modalità di vendita Sincrona mista
Termine presentazione offerte 01/01/1900 ore 00:00
Data e ora inizio gara 02/07/2026 ore 10:00
Codice ID astegiudiziarie.it 4292830
2,00
131,12
0
€ 60.506

Ti interessa questa vendita?

north_east

Clicca qui per essere indirizzato alla scheda sul sito di provenienza

Bene di astegiudiziarie.it