highlight_off
Riferimento annuncio 99221 info

Magazzino Via Casa Cirillo, 41/43, 80058 Torre Annunziata (NA)

0
€ 22.992
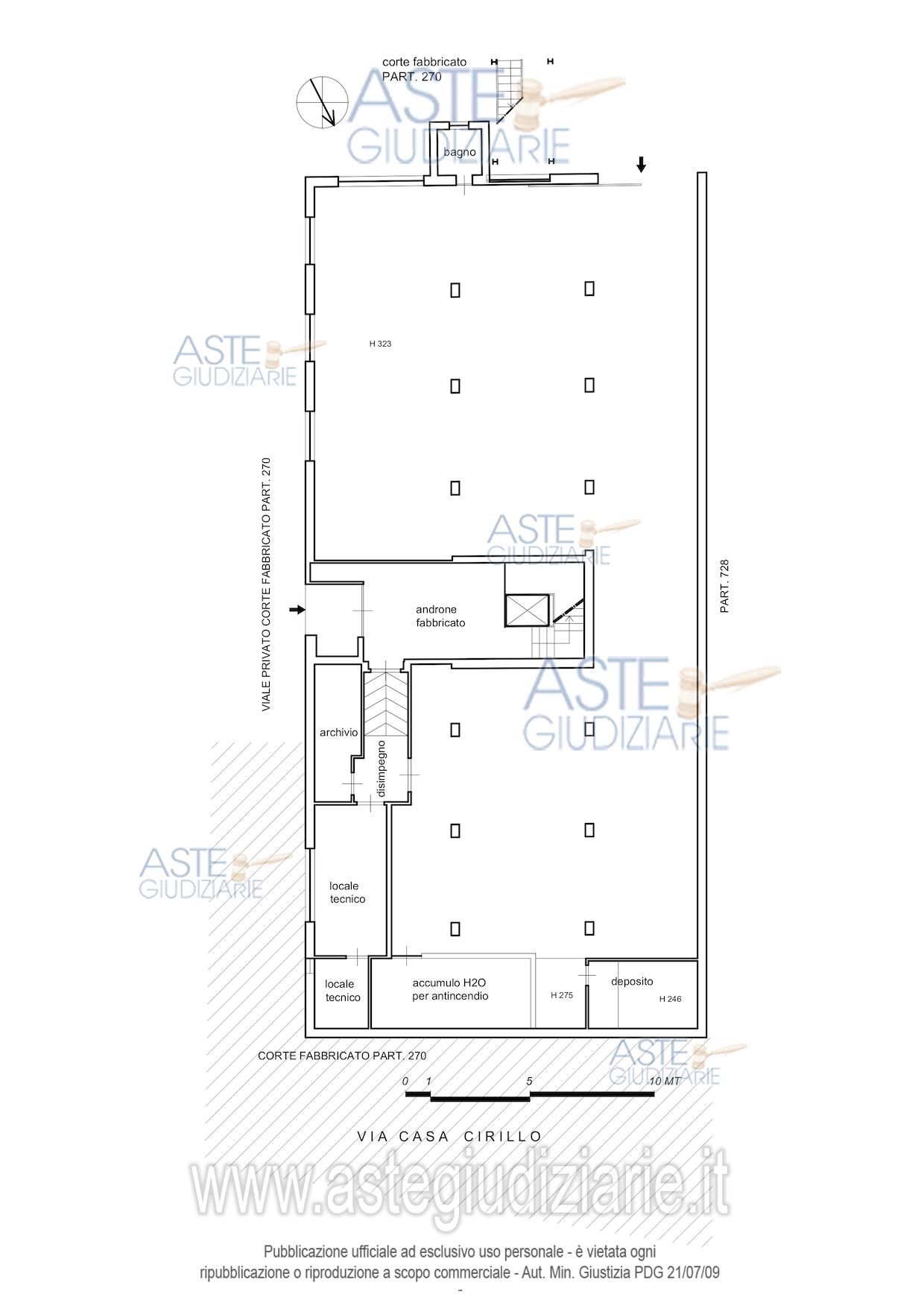
Vendita all'asta Senza incanto - LOTTO 10: PROCEDURA DI LIQUIDAZIONE DEL PATRIMONIO EX ART. 14 TER L.3/2012. In vendita QUOTA di 1/3 della piena proprietà di una unità immobiliare posta al piano seminterrato di un fabbricato sito in Torre Annunziata (NA) alla Via Casa Cirillo n. 41/43. E' composto di: ampio locale rimessa con ingresso carrabile dall'area di corte a Sud del fabbricato, piccolo bagno, due locali tecnici, un locale deposito, un locale ad uso archivio, disimpegno di collegamento con l'androne del fabbricato. Prezzo base € 22.991,61 (offerta minima € 17.243,71). Data vendita 03/12/2025 ore 12:00. Professionista delegato alla vendita Dott. Vincenzo Di Paolo - Email "v.dipaolo@dipaolovincenzo.it"; Tel. 0818507281. Rif. Tribunale di Torre Annunziata - Volontaria giurisdizione n. 1237/2020

Superficie mq
Vani
Bagni
Piano 0

Tipologia di vendita Giudiziaria
Modalità di vendita Presso il venditore
Termine presentazione offerte 01/01/1900 ore 00:00
Data e ora inizio gara 03/12/2025 ore 12:00
Codice ID astegiudiziarie.it 4219790
0
€ 22.992

Ti interessa questa vendita?

north_east

Clicca qui per essere indirizzato alla scheda sul sito di provenienza

Bene di astegiudiziarie.it