highlight_off
Riferimento annuncio 296205 info

Magazzino Piazza Savoia 4, 10100 Torino (TO)

0
€ 690.000
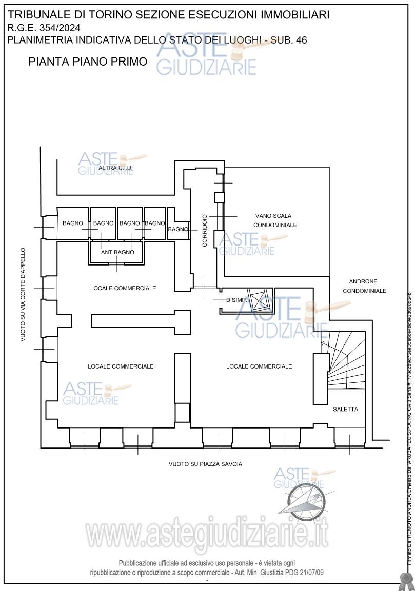
Vendita all'asta Senza incanto, con gara telematica asincrona - LOTTO UNICO: A) negozio commerciale, piano terreno due vani oltre locale nel retro e corridoio di accesso al cortile condominialeB) deposito commerciale uso magazzino (cantina) piano interrato, ingresso su corridoio comune, due locali uno ad uso magazzino e uno locale sgombero C) deposito commerciale uso magazzino (cantina) piano interrato ingresso su corridoio comune, tre locali ad uso depositoD) negozio uso commerciale al piano primo-ammezzato composto da tre vani e servizi. Prezzo base € 690.000,00 (offerta minima € 517.500,00). Data inizio operazioni di vendita: 13/01/2026 ore 15:30. Giudice Sabrina Gambino. Professionista delegato alla vendita Avv. Maria Elena Garelli - Email "maria.elena.garelli@gmail.com"; Tel. 0112642245. Custode Giudiziario Avv. Maria Elena Garelli - Email "maria.elena.garelli@gmail.com"; Tel. 0112642245. Rif. Tribunale di Torino - Espropriazione immobiliare (cartabia) n. 354/2024

Superficie mq
Vani
Bagni
Piano 0

Tipologia di vendita Giudiziaria
Modalità di vendita Asincrona telematica
Termine presentazione offerte 12/01/2026 ore 12:00
Data e ora inizio gara 13/01/2026 ore 15:30
Codice ID astegiudiziarie.it 4320878
0
€ 690.000

Ti interessa questa vendita?

north_east

Clicca qui per essere indirizzato alla scheda sul sito di provenienza

Bene di astegiudiziarie.it