highlight_off
Riferimento annuncio 307750 info

Magazzino Via Don Brozzoni, 24010 Costa di Serina BG, Italia, 24017 Serina (BG)

156,00
0
€ 21.096
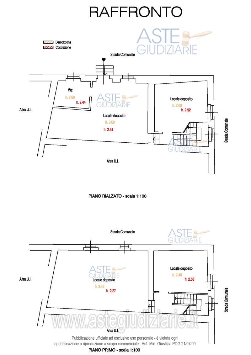
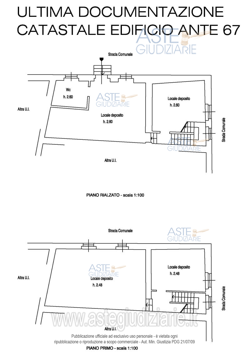
Vendita all'asta Senza incanto, con gara telematica asincrona - LOTTO 2: Piena proprietà di locale deposito con accesso pedonale dall’antico portone dalla medesima via. Si sviluppa su due piani collegati da scala interna ed è composta da due locali deposito su entrambi i piani e un bagno al solo piano rialzato. La superficie complessiva è pari a circa 162,06 mq. con altezze interne che variano da 2,27 mt a 2,58 mt. Il perito evidenzia che l'architettura (in particolare il portone d'ingresso) e la struttura muraria si connotano con elementi riconducibili al XII-XIII secolo . Prezzo base € 21.096,00 (offerta minima € 15.822,00). Data inizio operazioni di vendita: 19/11/2025 ore 10:15. Giudice Dott. Luca Verzeni. Professionista delegato alla vendita Dott. Laura Bertacchi - Email "laurabertacchi@studiobertacchi.com"; Tel. 035249187. Custode Giudiziario Roberta Guarnieri - Email "immobiliare@ivgbergamo.it"; Tel. 0350763005. Rif. Tribunale di Bergamo - Espropriazione immobiliare (cartabia) n. 306/2024

Superficie 156,00 mq
Vani
Bagni
Piano 0

Tipologia di vendita Giudiziaria
Modalità di vendita Asincrona telematica
Termine presentazione offerte 01/01/1900 ore 00:00
Data e ora inizio gara 19/11/2025 ore 10:15
Codice ID astegiudiziarie.it 4329858
156,00
0
€ 21.096

Ti interessa questa vendita?

north_east

Clicca qui per essere indirizzato alla scheda sul sito di provenienza

Bene di astegiudiziarie.it