highlight_off
Riferimento annuncio 293083 info

Magazzino Corso Europa, 93017 San Cataldo CL, Italia, 93017 San Cataldo (CL)

78,00
0
€ 2.953
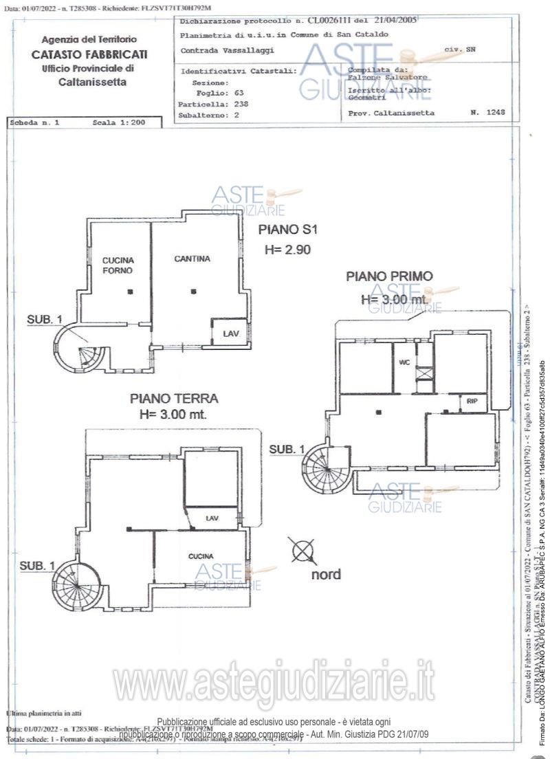
Vendita all'asta Senza incanto, con gara telematica sincrona mista - LOTTO 2: Magazzino sito in San Cataldo, Corso Europa, piano S1, categoria C/2, mq.78, censito al N.C.E.U. di detto comune al foglio 75, particella 57 sub 6,rendita catastale euro 177,25. Prezzo base € 2.953,00 (offerta minima € 2.215,00). Data vendita 04/06/2026 ore 16:30. Professionista delegato alla vendita: Avv. Vincenzo Toscano. Custode Giudiziario: Avv. Vincenzo Toscano - Email "avv.vincenzotoscano@gmail.com"; Tel. 0934/563102; Cell. 333/9943751. Rif. Tribunale di Caltanissetta - Esecuzione immobiliare post legge 80 n. 11/2020

Superficie 78,00 mq
Vani
Bagni
Piano 0

Tipologia di vendita Giudiziaria
Modalità di vendita Sincrona mista
Termine presentazione offerte 03/06/2026 ore 12:00
Data e ora inizio gara 04/06/2026 ore 16:30
Codice ID astegiudiziarie.it 4318420
78,00
0
€ 2.953

Ti interessa questa vendita?

north_east

Clicca qui per essere indirizzato alla scheda sul sito di provenienza

Bene di astegiudiziarie.it