highlight_off
Riferimento annuncio 313022 info

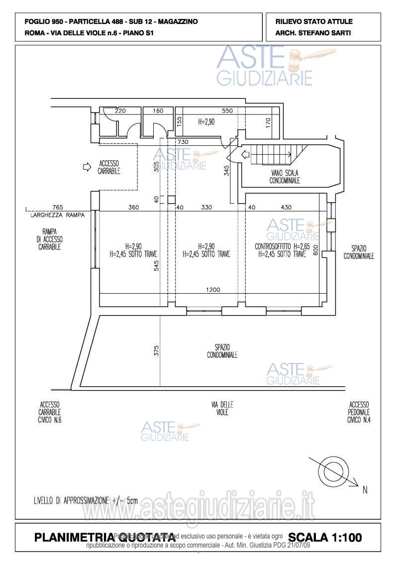
Magazzino Via delle Viole, 6, 00172 Roma RM, Italia, 00100 Roma (RM)

1,00
128,00
1
0
€ 59.000
Vendita all'asta Senza incanto, con gara telematica asincrona - LOTTO UNICO: Intera proprietà del magazzino sito in Roma, Via delle Viole n.6, posto al piano seminterrato S1. Prezzo base € 59.000,00 (offerta minima € 44.250,00). Data inizio operazioni di vendita: 27/11/2025 ore 12:00. Giudice Dott. Bianca Ferramosca. Professionista delegato alla vendita Avv. Silvia Friggi. Custode Giudiziario Ivg Di Roma Srl - Email "pvp@visiteivgroma.it"; Cell. 0689569801. Rif. Tribunale di Roma - Esecuzione immobiliare post legge 80 n. 85/2024

Superficie 128,00 mq
Vani 1,00
Bagni 1
Piano 0

Tipologia di vendita Giudiziaria
Modalità di vendita Asincrona telematica
Termine presentazione offerte 01/01/1900 ore 00:00
Data e ora inizio gara 27/11/2025 ore 12:00
Codice ID astegiudiziarie.it 4333722
1,00
128,00
1
0
€ 59.000

Ti interessa questa vendita?

north_east

Clicca qui per essere indirizzato alla scheda sul sito di provenienza

Bene di astegiudiziarie.it