highlight_off
Riferimento annuncio 301767 info

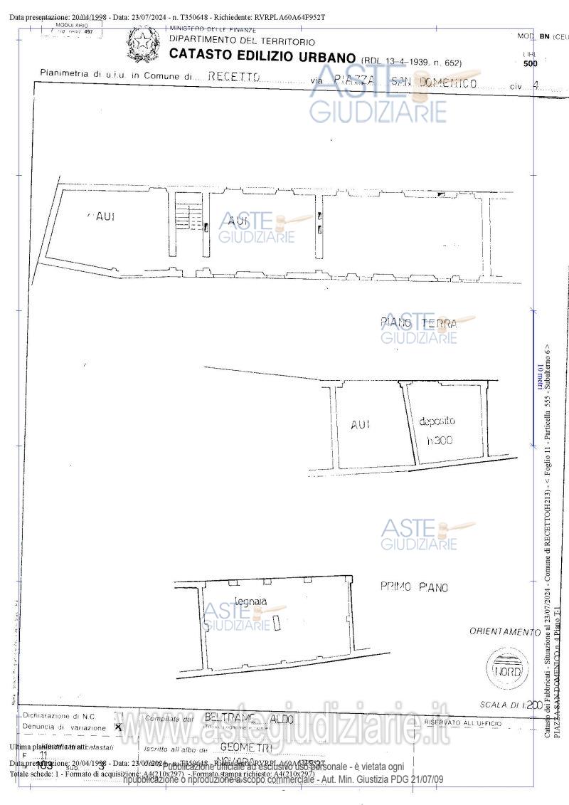
Magazzino Piazza San Domenico n. 4, 28060 Recetto (NO)

99,00
0
€ 4.950
Vendita all'asta Senza incanto, con gara telematica asincrona - LOTTO 1: COMUNE DI RECETTO (NO) – Piazza San Domenico n. 4LOTTO 1Quota intera di piena proprietàLocale deposito al piano terreno e legnaia aperta al primo piano, della superficie lorda complessiva di circa mq. 99,00. Prezzo base € 4.950,00 (offerta minima € 3.712,50). Data inizio operazioni di vendita: 20/07/2026 ore 12:00. Professionista delegato alla vendita: Not. Claudio Limontini - Email "novaraprocedureesecutive@gmail.com"; Tel. 0321/640095. Custode Giudiziario: Ifir Piemonte Ivg - Email "richiestevisite.novara@ivgpiemonte.it"; Tel. 0321/628676. Rif. Tribunale di Novara - Espropriazione immobiliare (cartabia) n. 28/2024

Superficie 99,00 mq
Vani
Bagni
Piano 0

Tipologia di vendita Giudiziaria
Modalità di vendita Asincrona telematica
Termine presentazione offerte 19/07/2026 ore 12:00
Data e ora inizio gara 20/07/2026 ore 12:00
Codice ID astegiudiziarie.it 4325238
99,00
0
€ 4.950

Ti interessa questa vendita?

north_east

Clicca qui per essere indirizzato alla scheda sul sito di provenienza

Bene di astegiudiziarie.it