highlight_off
Riferimento annuncio 130030 info

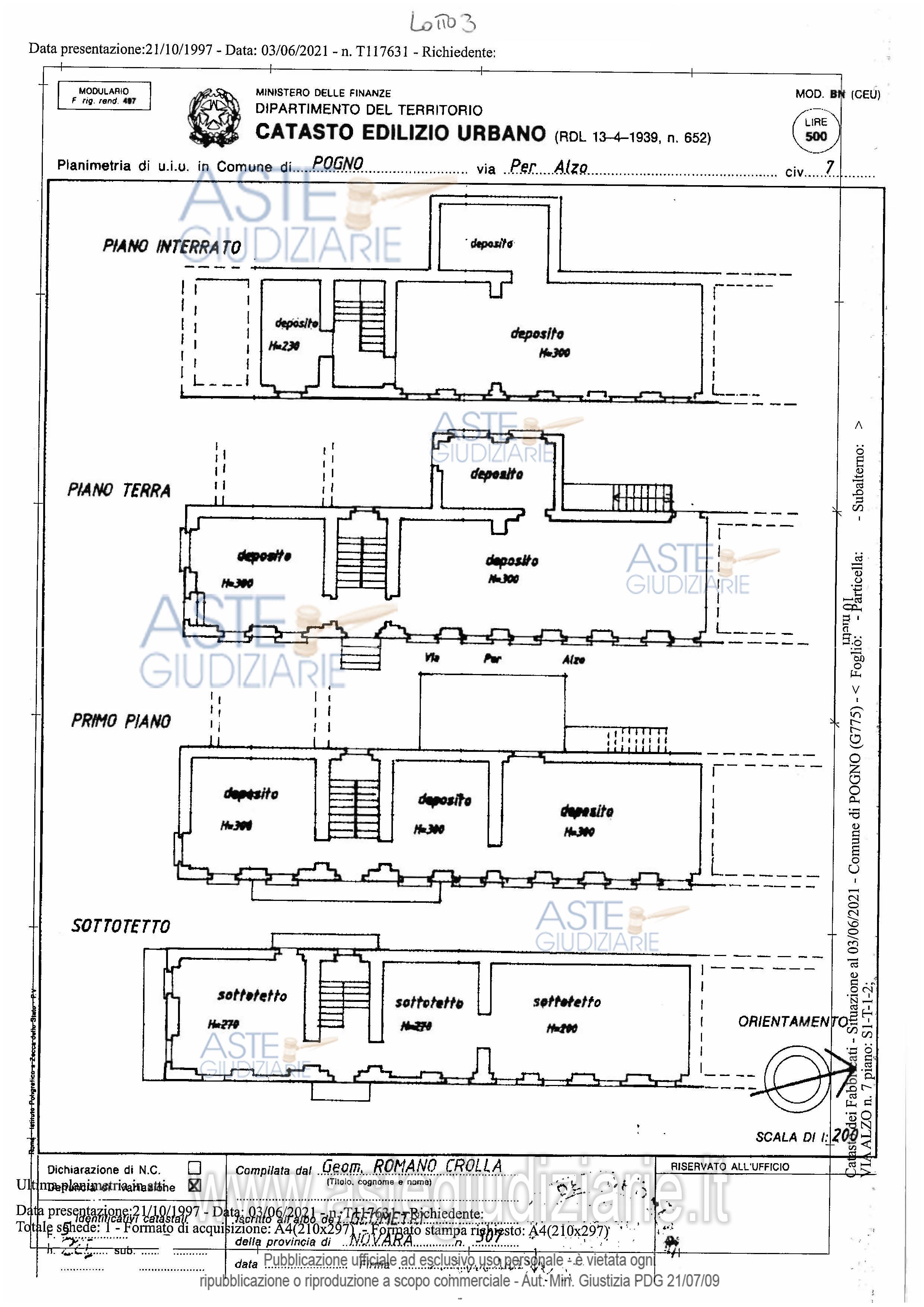
Magazzino Via Alzo 7, 28076 Pogno (NO)

370,00
0
€ 8.500
Vendita all'asta Senza incanto, con gara telematica asincrona - LOTTO 3: Magazzini e locali di deposito disposti al piano interrato, piano terra, primo piano e sottotetto. 453 mq calpestabili complessivi. Prezzo base € 8.500,00 (offerta minima € 6.375,00). Data inizio operazioni di vendita: 05/11/2025 ore 12:00. Giudice Dott. Veronica Zanin. Professionista delegato alla vendita Dott. Cristina Gaviani - Email "cristina.gaviani@studiogaviani.it"; Tel. 0321620148. Custode Giudiziario Ifir Piemonte Ivg Srl - Email "richiestevisite.novara@ivgpiemonte.it"; Tel. 0321628676. Rif. Tribunale di Novara - Esecuzione immobiliare post legge 80 n. 97/2020

Superficie 370,00 mq
Vani
Bagni
Piano 0

Tipologia di vendita Giudiziaria
Modalità di vendita Asincrona telematica
Termine presentazione offerte 04/11/2025 ore 12:00
Data e ora inizio gara 05/11/2025 ore 12:00
Codice ID astegiudiziarie.it 4238518
370,00
0
€ 8.500

Ti interessa questa vendita?

north_east

Clicca qui per essere indirizzato alla scheda sul sito di provenienza

Bene di astegiudiziarie.it