highlight_off
Riferimento annuncio 315579 info

Magazzino Via Pierantonio Pietrini s.n.c., 00036 Palestrina (RM)

0
€ 13.960
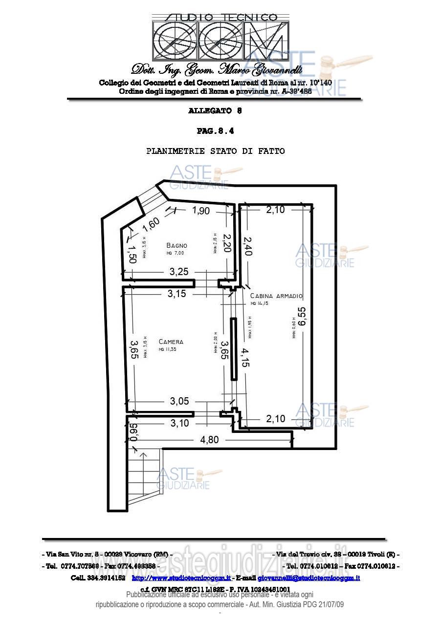
Vendita all'asta Senza incanto, con gara telematica asincrona - LOTTO 2: Quota pari a 1/1 del diritto di proprietà su Magazzino sito in Palestrina (RM), Via PierantonioPietrini s.n.c., piano Terra, composto al piano terra da un grande open space con cucina esoggiorno annessi, un bagno, un antibagno e un ripostiglio, mentre sul soppalco sono presentiuna camera, una cabina armadio e un bagno. Prezzo base € 13.960,00 (offerta minima € 10.470,00). Data inizio operazioni di vendita: 16/12/2025 ore 15:00. Giudice Marco Piovano. Professionista delegato alla vendita Avv. Federica Croce. Custode Giudiziario Ivg Di Roma Srl - Email "pvp@visiteivgroma.it". Rif. Tribunale di Tivoli - Esecuzione immobiliare post legge 80 n. 348/2017

Superficie mq
Vani
Bagni
Piano 0

Tipologia di vendita Giudiziaria
Modalità di vendita Asincrona telematica
Termine presentazione offerte 15/12/2025 ore 23:59
Data e ora inizio gara 16/12/2025 ore 15:00
Codice ID astegiudiziarie.it 4336519
0
€ 13.960

Ti interessa questa vendita?

north_east

Clicca qui per essere indirizzato alla scheda sul sito di provenienza

Bene di astegiudiziarie.it