highlight_off
Riferimento annuncio 305021 info

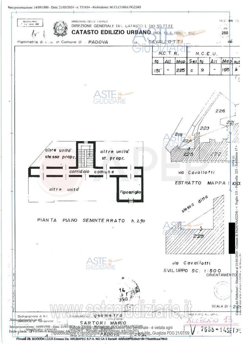
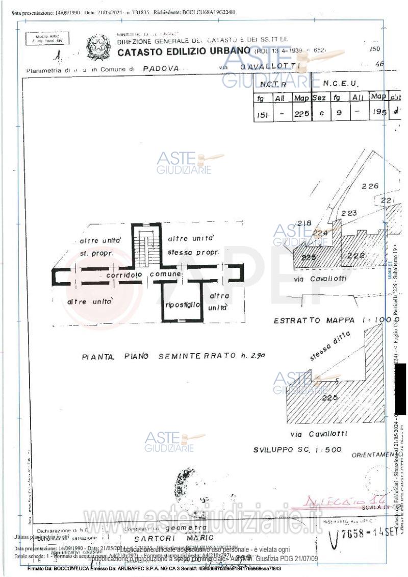
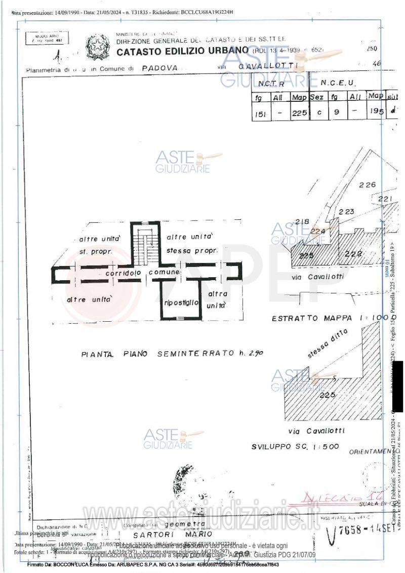
Magazzino Via Cavallotti con ingresso dal civico n. 46, 35100 Padova (PD)

30,00
0
€ 4.000
Vendita all'asta Senza incanto, con gara telematica sincrona - LOTTO 5: Lotto 5 - piena proprietà di due locali ripostiglio, facenti parte del fabbricato condominiale sito in Comune di Padova, via Cavallotti con ingresso dal civico n. 46, di catastali mq. 30. Prezzo base € 4.000,00 (offerta minima € 3.000,00). Data vendita 27/11/2025 ore 11:30. Giudice Dott. Giovanni Giuseppe Amenduni. Professionista delegato alla vendita Not. Paolo Carraretto - Email "aste@apepnotai.it"; Tel. 049651228. Custode Giudiziario Apep - Email "visita@apepnotai.it"; Tel. 049651228. Rif. Tribunale di Padova - Espropriazione immobiliare (cartabia) n. 73/2024

Superficie 30,00 mq
Vani
Bagni
Piano 0

Tipologia di vendita Giudiziaria
Modalità di vendita Sincrona telematica
Termine presentazione offerte 01/01/1900 ore 00:00
Data e ora inizio gara 27/11/2025 ore 11:30
Codice ID astegiudiziarie.it 4327845
30,00
0
€ 4.000

Ti interessa questa vendita?

north_east

Clicca qui per essere indirizzato alla scheda sul sito di provenienza

Bene di astegiudiziarie.it