highlight_off
Riferimento annuncio 300948 info

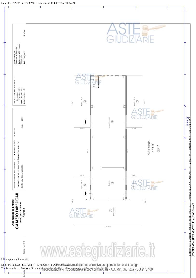
Magazzino Contrada Serrauccelli, 97015 Modica (RG)

1654,00
0
€ 928.500
Vendita all'asta Senza incanto, con gara telematica sincrona mista - LOTTO UNICO: Piena proprietà di due capannoni al piano terra, denominati Corpo A e Corpo B, censiti al CEU del Comunedi Modica al Foglio 139 p.lla 553 sub 5 (Categoria D/7) e 15 (Categoria D/7) e di una porzione di capannoneal piano seminterrato denominato corpo C, censito al CEU del Comune di Modica al Foglio 139 p.lla 553sub 2 (categoria D/8) . Prezzo base € 928.500,00 (offerta minima € 696.375,00). Data vendita 17/10/2025 ore 18:00. Giudice Carlo Di Cataldo. Professionista delegato alla vendita Avv. Maurizio Petralia - Email "mauriziopetralia@libero.it". Custode Giudiziario Avv. Maurizio Petralia - Email "mauriziopetralia@libero.it". Rif. Tribunale di Ragusa - Espropriazione immobiliare (cartabia) n. 228/2023

Superficie 1654,00 mq
Vani
Bagni
Piano 0

Tipologia di vendita Giudiziaria
Modalità di vendita Sincrona mista
Termine presentazione offerte 01/01/1900 ore 00:00
Data e ora inizio gara 17/10/2025 ore 18:00
Codice ID astegiudiziarie.it 4324577
1654,00
0
€ 928.500

Ti interessa questa vendita?

north_east

Clicca qui per essere indirizzato alla scheda sul sito di provenienza

Bene di astegiudiziarie.it