highlight_off
Riferimento annuncio 315950 info

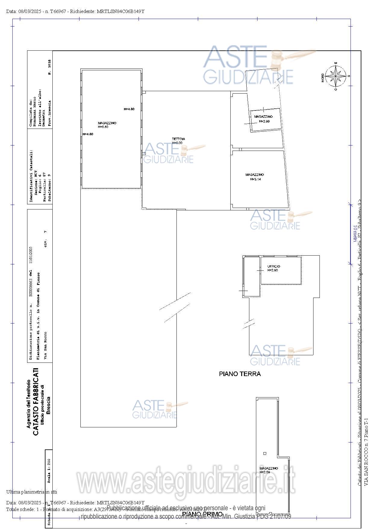
Magazzino Via S. Rocco, 7, 25020 Fiesse BS, Italia, 25020 Fiesse (BS)

531,00
0
€ 267.000
Vendita all'asta Senza incanto, con gara telematica asincrona - LOTTO 2: Piena proprietà di un magazzino. Competono le proporzionali quote delle parti comuni. Prezzo base € 267.000,00 (offerta minima € 200.250,00). Data inizio operazioni di vendita: 19/11/2025 ore 10:30. Professionista delegato alla vendita Not. Angelo Zotti. Custode Giudiziario Not. Angelo Zotti - Email "visiteimmobili@anpebrescia.it"; Tel. 030222849. Rif. Tribunale di Brescia - Espropriazione immobiliare (cartabia) n. 326/2024

Superficie 531,00 mq
Vani
Bagni
Piano 0

Tipologia di vendita Giudiziaria
Modalità di vendita Asincrona telematica
Termine presentazione offerte 18/11/2025 ore 12:00
Data e ora inizio gara 19/11/2025 ore 10:30
Codice ID astegiudiziarie.it 4336876
531,00
0
€ 267.000

Ti interessa questa vendita?

north_east

Clicca qui per essere indirizzato alla scheda sul sito di provenienza

Bene di astegiudiziarie.it