highlight_off
Riferimento annuncio 51158 info

Magazzino Viale Monastir, 39-41, 09122 Cagliari CA, Italia, 09100 Cagliari (CA)

494,00
0
€ 282.400
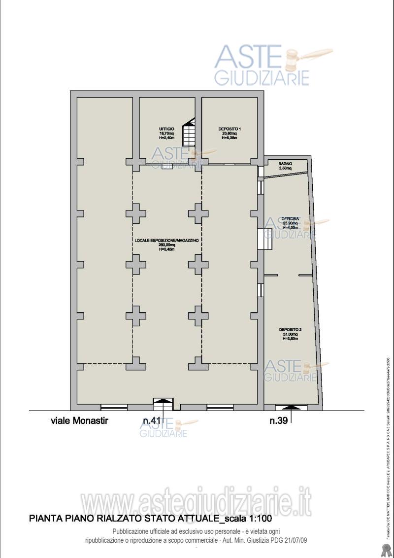
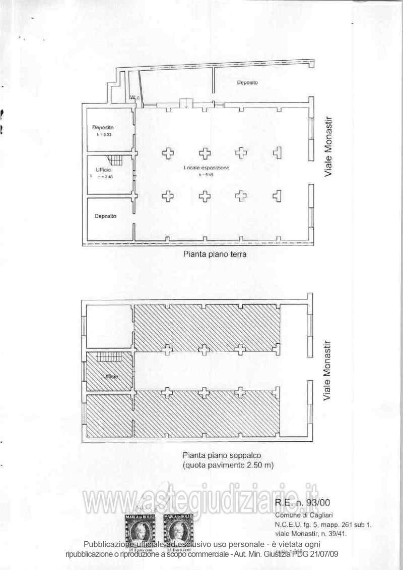
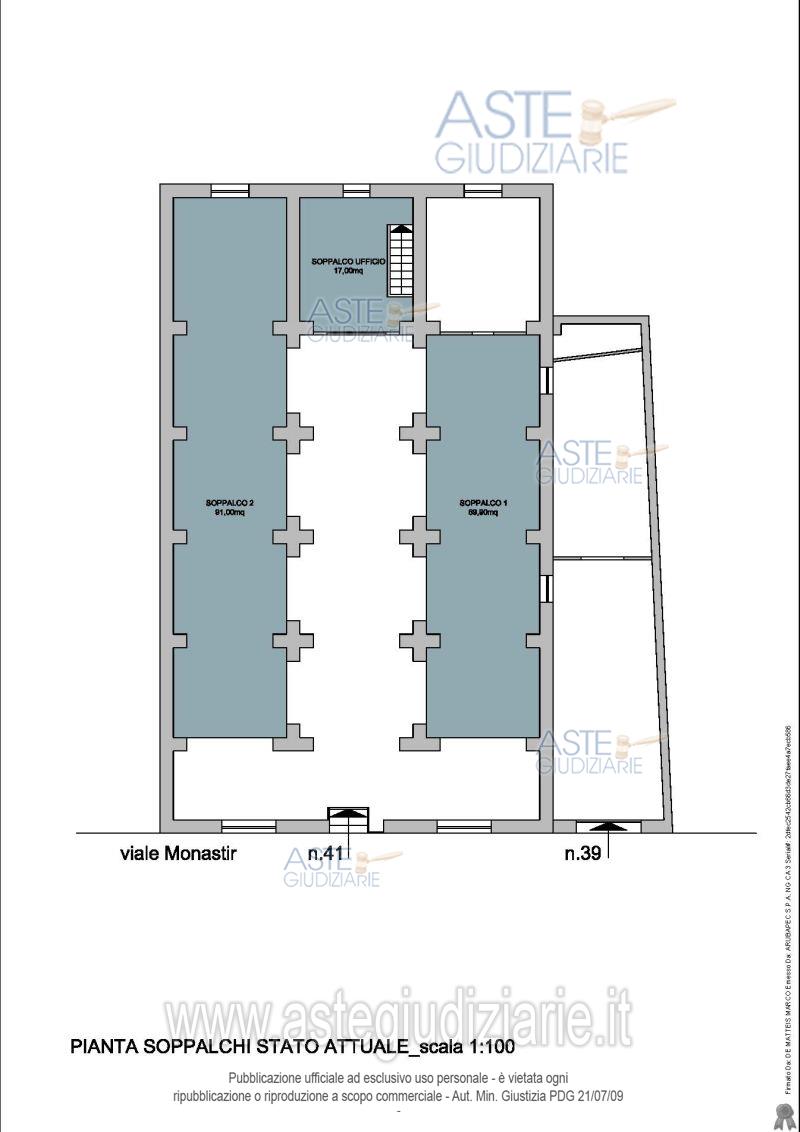
Vendita all'asta Senza incanto, con gara telematica asincrona - LOTTO UNICO: Piena proprietà del locale commerciale al piano terra/rialzato della superficie complessiva mq 494 circa, avente accesso dal Viale Monastir nn.39-41, composto da locale esposizione (costituito da vano esposizione, ufficio, deposito, tre soppalchi) e locale officina- deposito (costituito da deposito, officina, bagno). Prezzo base € 282.400,00 (offerta minima € 211.800,00). Data inizio operazioni di vendita: 03/12/2025 ore 11:00. Giudice Dott. Francesco De Giorgi. Professionista delegato alla vendita Not. Paolo Tardiola - Email "ufficiouniconotai@pec.it"; Tel. 07060222574. Custode Giudiziario Ivg Cagliari - Email "ivg.visiteimmobili@tiscali.it"; Tel. 0702299036. Rif. Tribunale di Cagliari - Esecuzione immobiliare post legge 80 n. 93/2000

Superficie 494,00 mq
Vani
Bagni
Piano 0

Tipologia di vendita Giudiziaria
Modalità di vendita Asincrona telematica
Termine presentazione offerte 02/12/2025 ore 13:00
Data e ora inizio gara 03/12/2025 ore 11:00
Codice ID astegiudiziarie.it 116684
494,00
0
€ 282.400

Ti interessa questa vendita?

north_east

Clicca qui per essere indirizzato alla scheda sul sito di provenienza

Bene di astegiudiziarie.it