highlight_off
Riferimento annuncio 324631 info

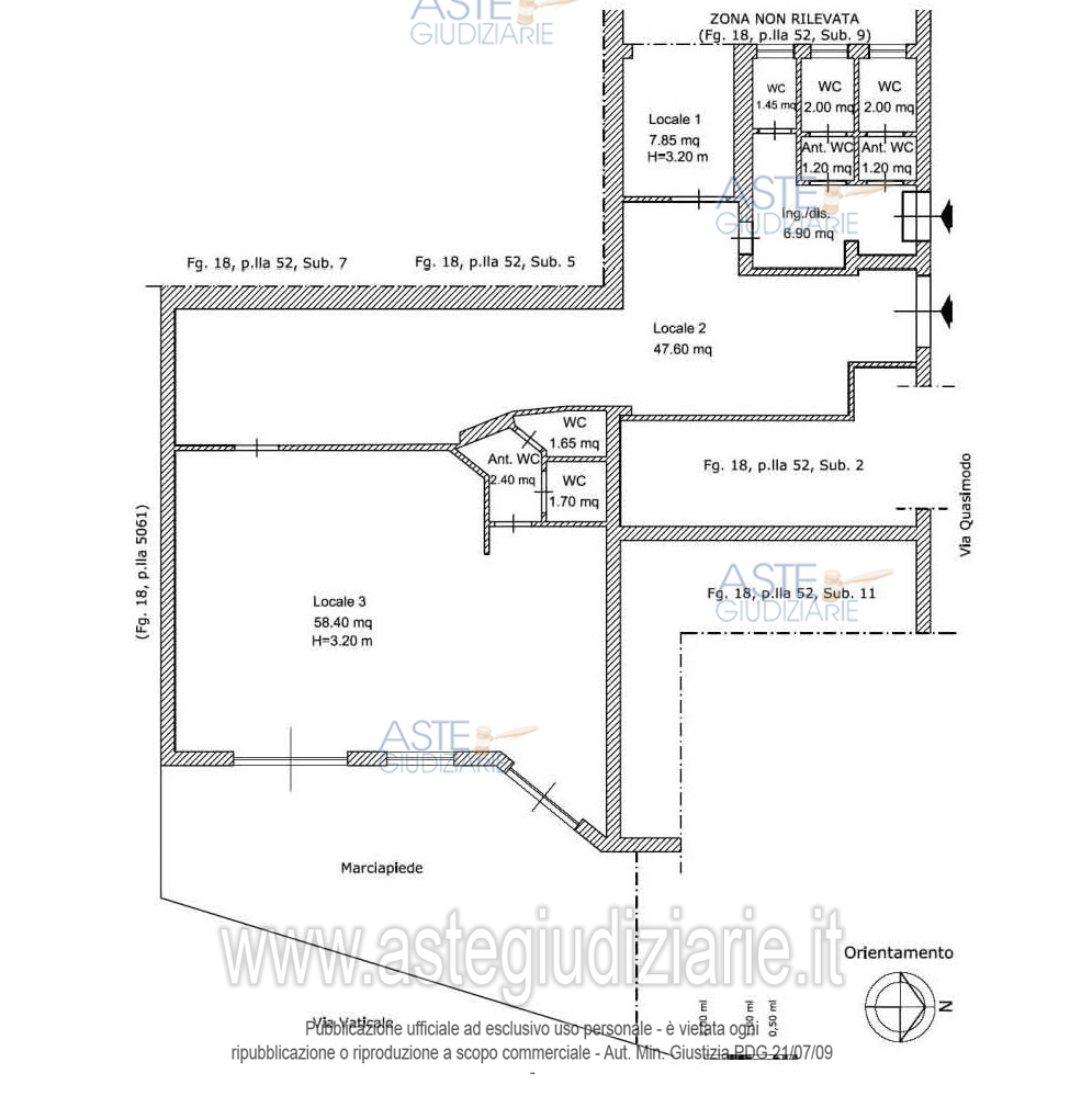
Locale via Vaticale, 81033 Casal di Principe (CE)

3,00
105,00
2
0
€ 124.500
Vendita all'asta Senza incanto, con gara telematica sincrona - LOTTO 2: Piena ed intera proprietà del locale ad uso commerciale. Prezzo base € 124.500,00 (offerta minima € 93.375,00). Data vendita 24/03/2026 ore 10:00. Professionista delegato alla vendita Dott. Tonino Ragosta - Email "t.ragosta@tin.it"; Tel. 081 200 694. Rif. Tribunale di Santa Maria Capua Vetere - Esecuzione immobiliare n. 253/2022

Superficie 105,00 mq
Vani 3,00
Bagni 2
Piano 0

Tipologia di vendita Giudiziaria
Modalità di vendita Sincrona telematica
Termine presentazione offerte 01/01/1900 ore 00:00
Data e ora inizio gara 24/03/2026 ore 10:00
Codice ID astegiudiziarie.it 4343832
3,00
105,00
2
0
€ 124.500

Ti interessa questa vendita?

north_east

Clicca qui per essere indirizzato alla scheda sul sito di provenienza

Bene di astegiudiziarie.it