highlight_off
Riferimento annuncio 306637 info

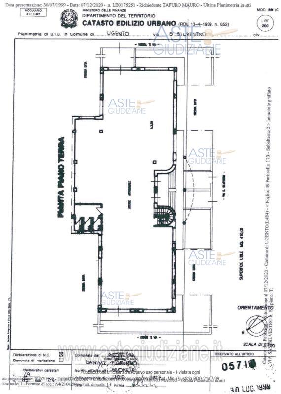
Laboratorio Via Santa Teresa, 73059 Ugento LE, Italia, 73059 Ugento (LE)

0
€ 198.290
Vendita all'asta Senza incanto, con gara telematica asincrona - LOTTO UNICO: Piena proprietà per la quota di 1000/1000 di Fabbricato artigianale ubicato in Ugento (LE) Via Santa Teresa snc ang. Via San Silvestro. Prezzo base € 198.290,00 (offerta minima € 148.720,00). Data inizio operazioni di vendita: 28/05/2026 ore 11:30. Professionista delegato alla vendita: Avv. Luisa Portaluri - Email "luisa.portaluri@alice.it"; Cell. 339/6841912. Custode Giudiziario: Avv. Luisa Portaluri - Email "luisa.portaluri@alice.it"; Cell. 339/6841912. Rif. Tribunale di Lecce - Esecuzione immobiliare post legge 80 n. 134/2020

Superficie mq
Vani
Bagni
Piano 0

Tipologia di vendita Giudiziaria
Modalità di vendita Asincrona telematica
Termine presentazione offerte 01/01/1900 ore 00:00
Data e ora inizio gara 28/05/2026 ore 11:30
Codice ID astegiudiziarie.it 4329015
0
€ 198.290

Ti interessa questa vendita?

north_east

Clicca qui per essere indirizzato alla scheda sul sito di provenienza

Bene di astegiudiziarie.it