highlight_off
Riferimento annuncio 332967 info

Laboratorio Via Flaminia, Riano RM, Italia, 00060 Riano (RM)

0
€ 120.536
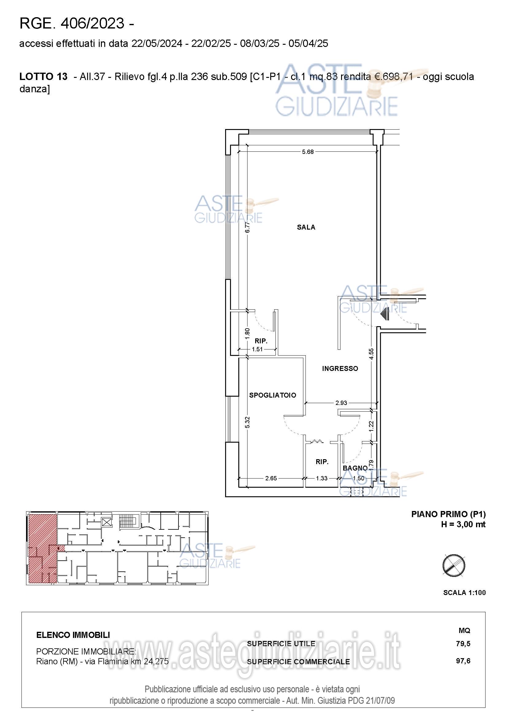
Vendita all'asta Senza incanto, con gara telematica asincrona - LOTTO 13: Locale commerciale adibito a scuola di danza, composto da ampio salone finestrato dove si svolgono le lezioni oltre la presenza di spogliatoio con bagno e docce. Prezzo base € 120.536,00 (offerta minima € 90.402,00). Data inizio operazioni di vendita: 25/06/2026 ore 11:00. Professionista delegato alla vendita: Avv. Federico Lolli Lusignano - Email "federicololli@live.it". Custode Giudiziario: Ivg Di Roma Srl - Email "pvp@visiteivgroma.it"; Tel. 06/89569801. Rif. Tribunale di Tivoli - Esecuzione immobiliare post legge 80 n. 406/2023

Superficie mq
Vani
Bagni
Piano 0

Tipologia di vendita Giudiziaria
Modalità di vendita Asincrona telematica
Termine presentazione offerte 01/01/1900 ore 00:00
Data e ora inizio gara 25/06/2026 ore 11:00
Codice ID astegiudiziarie.it 4350361
0
€ 120.536

Ti interessa questa vendita?

north_east

Clicca qui per essere indirizzato alla scheda sul sito di provenienza

Bene di astegiudiziarie.it