highlight_off
Riferimento annuncio 289935 info

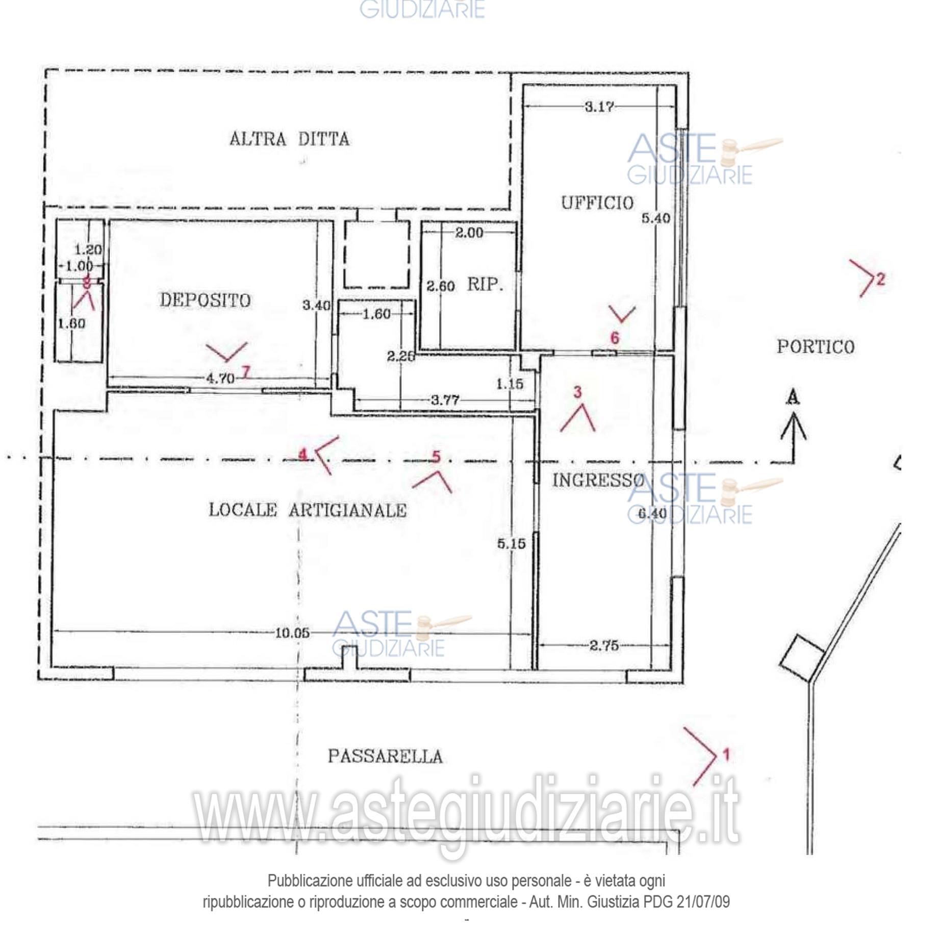
Laboratorio Vico Cairoli, 9, 97100 Ragusa RG, Italia, 97100 Ragusa (RG)

117,00
0
€ 37.463
Vendita all'asta Senza incanto, con gara telematica sincrona mista - LOTTO 1: Diritti di piena proprietà del locale artigianale ubicato a Ragusa (RG), al piano terra di un complesso residenziale con ingresso dal vico Cairoli al n.9/H 9/I e 9/L. Complessivamente l’immobile si estende per circa 138 metri quadri lordi. Conforme. Prezzo base € 37.462,50 (offerta minima € 28.096,88). Data vendita 28/10/2025 ore 18:00. Giudice Carlo Di Cataldo. Professionista delegato alla vendita Avv. Giuseppe Monego - Email "avv.gmonego@tiscali.it"; Cell. 3398693953. Custode Giudiziario Avv. Giuseppe Monego - Email "avv.gmonego@tiscali.it"; Cell. 3398693953. Rif. Tribunale di Ragusa - Esecuzione immobiliare post legge 80 n. 264/2021

Superficie 117,00 mq
Vani
Bagni
Piano 0

Tipologia di vendita Giudiziaria
Modalità di vendita Sincrona mista
Termine presentazione offerte 01/01/1900 ore 00:00
Data e ora inizio gara 28/10/2025 ore 18:00
Codice ID astegiudiziarie.it 4316186
117,00
0
€ 37.463

Ti interessa questa vendita?

north_east

Clicca qui per essere indirizzato alla scheda sul sito di provenienza

Bene di astegiudiziarie.it