highlight_off
Riferimento annuncio 329508 info

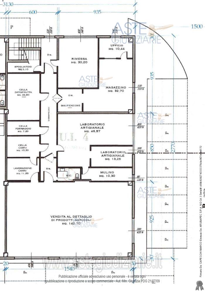
Laboratorio Località i Martiri, Via Vecchia Fiorentina, Pistoia PT, Italia, 51039 Quarrata (PT)

707,50
0
€ 564.000
Vendita all'asta Senza incanto, con gara telematica asincrona - LOTTO 1: Piena proprietà di fabbricato artigianale di mq 707,50. Prezzo base € 564.000,00 (offerta minima € 423.000,00). Data inizio operazioni di vendita: 03/07/2026 ore 10:00. Giudice Dott. Sergio Garofalo. Professionista delegato alla vendita Avv. Marianna Pugliese. Custode Giudiziario Isveg - Email "prenota.pt@isveg.it". Rif. Tribunale di Pistoia - Espropriazione immobiliare (cartabia) n. 117/2025

Superficie 707,50 mq
Vani
Bagni
Piano 0

Tipologia di vendita Giudiziaria
Modalità di vendita Asincrona telematica
Termine presentazione offerte 02/07/2026 ore 12:00
Data e ora inizio gara 03/07/2026 ore 10:00
Codice ID astegiudiziarie.it 4347099
707,50
0
€ 564.000

Ti interessa questa vendita?

north_east

Clicca qui per essere indirizzato alla scheda sul sito di provenienza

Bene di astegiudiziarie.it