highlight_off
Riferimento annuncio 313368 info

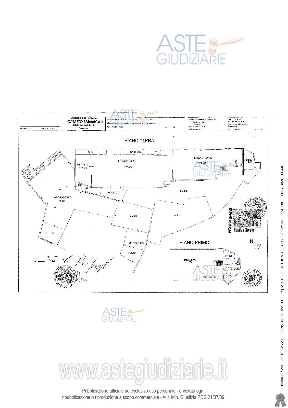
Laboratorio Via FONTE FANO 15, 25065 Lumezzane (BS)

0
€ 381.375
Vendita all'asta Senza incanto, con gara telematica asincrona - LOTTO UNICO: Trattasi, ex perizia, di un laboratorio artigianale, il tutto censito al Catasto Fabbricati - Sez. NCT - Fg. 16 mapp. 17 sub 3 P. S1-T, cat. D7 - R.C.Euro 6.882,00mapp. 17 sub 4 P. T-1, cat. D7 - R.C.Euro 6.866,00 con le proporzionali quote delle parti comuni ai sensi di legge. Prezzo base € 381.375,00 (offerta minima € 286.031,25). Data inizio operazioni di vendita: 20/05/2026 ore 12:00. Giudice Foppa Vicenzini. Professionista delegato alla vendita Not. Manuela Mondello - Email "mmondello@notariato.it". Custode Giudiziario Not. Manuela Mondello - Email "visiteimmobili@anpebrescia.it"; Tel. 0309920322. Rif. Tribunale di Brescia - Espropriazione immobiliare (cartabia) n. 360/2023

Superficie mq
Vani
Bagni
Piano 0

Tipologia di vendita Giudiziaria
Modalità di vendita Asincrona telematica
Termine presentazione offerte 01/01/1900 ore 00:00
Data e ora inizio gara 20/05/2026 ore 12:00
Codice ID astegiudiziarie.it 4334446
0
€ 381.375

Ti interessa questa vendita?

north_east

Clicca qui per essere indirizzato alla scheda sul sito di provenienza

Bene di astegiudiziarie.it