highlight_off
Riferimento annuncio 316987 info

Laboratorio Via Case Sante, 88, 95124 Catania CT, Italia, 95100 Catania (CT)

22,00
0
€ 9.000
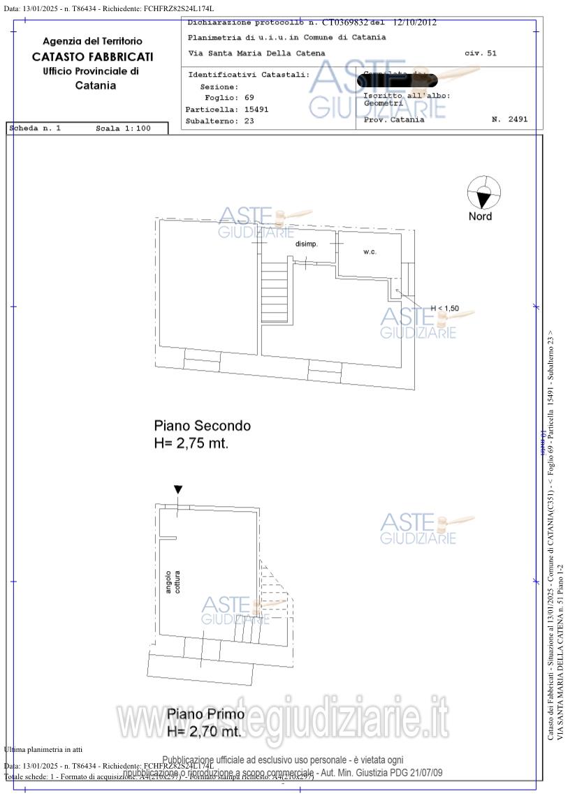
Vendita all'asta Competitiva, con gara telematica sincrona - LOTTO 2: LOTTO DUE: Diritto di piena proprietà sulla seguente unità immobiliare: bottega terrana sita in Catania ed avente accesso dal civico n. 88 di via Case Sante, estesa catastalmente 22 mq, censita al NCEU del comune di Catania al fg. 69, part. 15491, sub. 44, piano T, z.c.1, cat. C/3, cl. 5, mq 22, RC € 179,52;. Prezzo base € 9.000,00 (offerta minima € 6.750,00). Data vendita 18/12/2025 ore 10:00. Giudice Cristiana Delfa. Professionista delegato alla vendita Avv. Gaetano Messina. Custode Giudiziario Avv. Gaetano Messina - Email "g.messina@testaavvocati.it". Rif. Tribunale di Catania - Esecuzione immobiliare post legge 80 n. 618/2021

Superficie 22,00 mq
Vani
Bagni
Piano 0

Tipologia di vendita Giudiziaria
Modalità di vendita Sincrona telematica
Termine presentazione domande 01/01/1900 ore 00:00
Data e ora inizio gara 18/12/2025 ore 10:00
Codice ID astegiudiziarie.it 4337659
22,00
0
€ 9.000

Ti interessa questa vendita?

north_east

Clicca qui per essere indirizzato alla scheda sul sito di provenienza

Bene di astegiudiziarie.it