highlight_off
Riferimento annuncio 312774 info

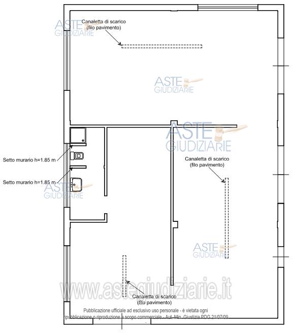
Laboratorio contrada Valle di Lupo, 92100 Agrigento (AG)

160,00
0
€ 115.800
Vendita all'asta Senza incanto, con gara telematica sincrona mista - LOTTO UNICO: Piena ed intera proprietà di un terreno a destinazione agricola con sovrastante fabbricato destinato a “laboratorio per la lavorazione, la trasformazione e la conservazione di prodotti agricoli” siti nella Contrada Valle di Lupo del comune di Agrigento. Prezzo base € 115.800,00 (offerta minima € 86.850,00). Data vendita 02/12/2025 ore 10:30. Giudice Dott. Matteo De Nes. Professionista delegato alla vendita Dott. Cristina Zicari - Email "c.zicari@artemide5.it"; Cell. 3384033840; Tel. 0922661194. Custode Giudiziario Dott. Cristina Zicari - Email "c.zicari@artemide5.it"; Cell. 3384033840; Tel. 0922661194. Rif. Tribunale di Agrigento - Esecuzione immobiliare post legge 80 n. 2/2023

Superficie 160,00 mq
Vani
Bagni
Piano 0

Tipologia di vendita Giudiziaria
Modalità di vendita Sincrona mista
Termine presentazione offerte 01/01/1900 ore 00:00
Data e ora inizio gara 02/12/2025 ore 10:30
Codice ID astegiudiziarie.it 4334266
160,00
0
€ 115.800

Ti interessa questa vendita?

north_east

Clicca qui per essere indirizzato alla scheda sul sito di provenienza

Bene di astegiudiziarie.it