Riferimento annuncio 303829
        
    
    Garage o Posto auto Località Malfondo, 06049 Spoleto PG, Italia, 06049 Spoleto (PG)
                
                350,00
            
            
                
                0
            
        
€ 570.000    
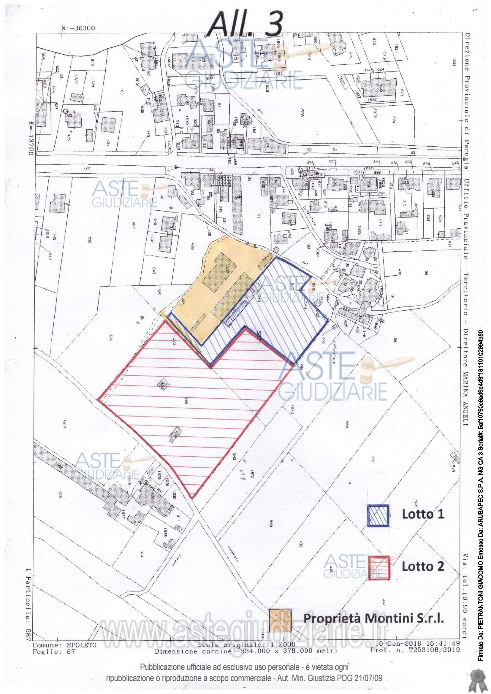
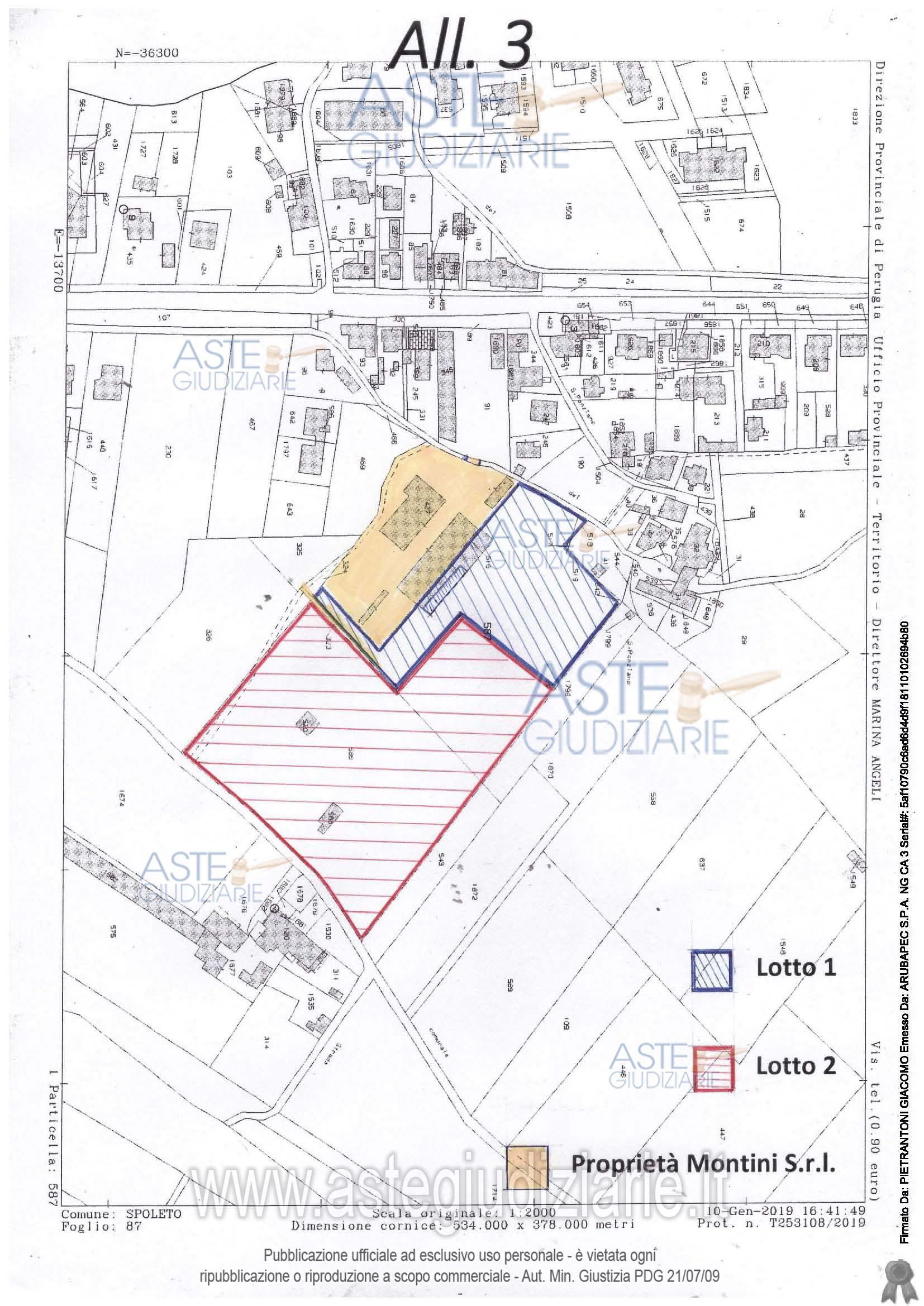
                Vendita all'asta Senza incanto, con gara telematica sincrona mista - LOTTO UNICO:  SPOLETO (PG) LOC. MALFONDO. Prezzo base € 570.000,00 (offerta minima € 427.500,00). Data vendita 06/11/2025 ore 12:00. Giudice Alberto Cappellini. Professionista delegato alla vendita Avv. Jacopo Cappelletti - Email "j.cappelletti@hotmail.it"; Tel. 074349247. Custode Giudiziario  Ivg Perugia - Email "visite@ivgumbria.com"; Tel. 0755913525.  Rif. Tribunale di Spoleto - Contenzioso civile n. 81/2017
            
   
| Superficie | 350,00 mq | 
|---|---|
| Vani | |
| Bagni | |
| Piano | 0 | 
| Tipologia di vendita | Giudiziaria | 
|---|---|
| Modalità di vendita | Sincrona mista | 
| Termine presentazione offerte | 01/01/1900 ore 00:00 | 
| Data e ora inizio gara | 06/11/2025 ore 12:00 | 
 
                         
                         
                         
                         
                         
                         
                         
                         
                         
                         
                        