highlight_off
Riferimento annuncio 313419 info

Garage o Posto auto Via Chiusa 103 e 107, Sant'Angelo di Piove di Sacco PD, Italia, 35020 Sant'Angelo di Piove di Sacco (PD)

0
€ 4.900.000
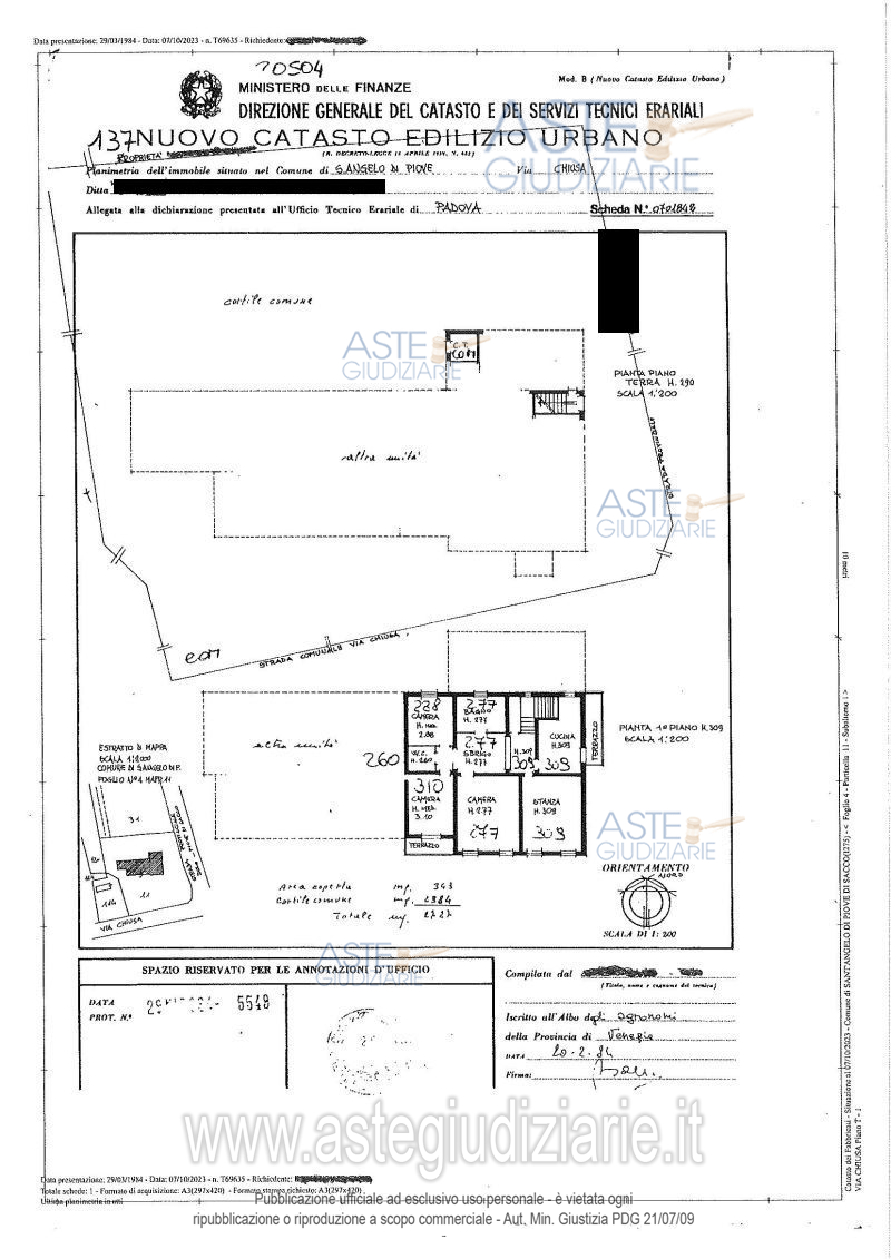
Vendita all'asta Senza incanto, con gara telematica sincrona - LOTTO UNICO: 2 ESPERIMENTO - Complesso Immobiliare, superficie catastale complessiva di Ha 34.59.99 con elementi caratteristici di scuderia : fabbricato con porticato (corpo A) parte ad uso aziendale di c.a315 mq, un retrostante fabbricato con impianto planimetrico a U con piscina privata corpo B e C di c.a 3.599 mq manufatti ricovero puledri, capannoni per ricovero attrezzi agricoli box cavalli di c.a1.447 mq e scuderia cavalli di c.a1.030 mq e terreni di 321.257 mq; clinica veterinaria con abitazione di c.a 582 mq. Prezzo base € 4.900.000,00 (offerta minima € 3.675.000,00). Data vendita 04/03/2026 ore 16:30. Professionista delegato alla vendita Dott. Luigi Barzazi - Email "aste@consulstudio.com"; Tel. 049773206. Custode Giudiziario Dott. Luigi Barzazi - Email "aste@consulstudio.com"; Tel. 049773206. Rif. Tribunale di Padova - Esecuzione immobiliare post legge 80 n. 143/2023

Superficie mq
Vani
Bagni
Piano 0

Tipologia di vendita Giudiziaria
Modalità di vendita Sincrona telematica
Termine presentazione offerte 03/03/2026 ore 12:00
Data e ora inizio gara 04/03/2026 ore 16:30
Codice ID astegiudiziarie.it 4334788
0
€ 4.900.000

Ti interessa questa vendita?

north_east

Clicca qui per essere indirizzato alla scheda sul sito di provenienza

Bene di astegiudiziarie.it