Riferimento annuncio 242779
Garage o Posto auto Via dei Garofani n. 1, angolo con via da denominare, 96019 Rosolini (SR)
193,00
0
€ 50.794
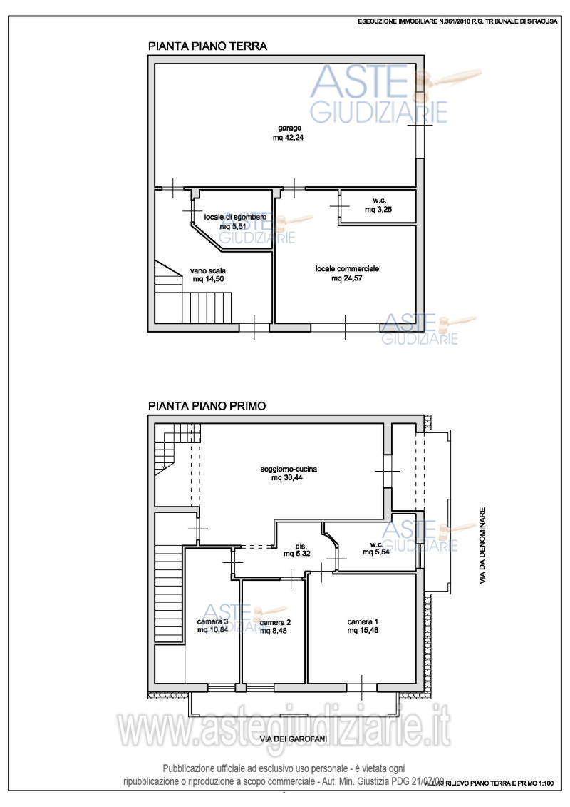
Vendita all'asta Senza incanto, con gara telematica sincrona mista - LOTTO UNICO: Fabbricato su tre livelli in Rosolini (SR) Via dei Garofani 1, angolo con via da denominare, composto da: a) appartamento a p.t-1-2 in NCEU fg 40 p.lla 536 sub 3 cat. A/4 cl. 2, vani 3,5 sup cat tot mq 112 RC euro 131,95 via dei Garofani p. 1-2; b) garage a p.t. in NCEU fg 40 p.lla 536 sub 4 cat. C/6 cl. 3 mq 46 sup cat tot mq 54 RC euro 209,06 Via da denominare snc piano t; c) negozio a p.t. in NCEU fg 40 p.lla 536 sub 5 cat. C/1 cl. 3 mq 24 sup cat tot mq 27 RC euro 525,55 via dei Garofani snc piano t. Prezzo base € 50.793,75 (offerta minima € 38.095,31). Data vendita 17/02/2026 ore 12:00. Giudice Dott. Maria Cristina Di Stazio. Professionista delegato alla vendita Avv. Riccardo Bordone - Email "avv.riccardobordone@mbcg.it"; Cell. 3388273630; Tel. 09311562510. Custode Giudiziario Avv. Riccardo Bordone - Email "avv.riccardobordone@mbcg.it"; Cell. 3388273630; Tel. 09311562510. Rif. Tribunale di Siracusa - Esecuzione immobiliare post legge 80 n. 361/2010
| Superficie | 193,00 mq |
|---|---|
| Vani | |
| Bagni | |
| Piano | 0 |
| Tipologia di vendita | Giudiziaria |
|---|---|
| Modalità di vendita | Sincrona mista |
| Termine presentazione offerte | 01/01/1900 ore 00:00 |
| Data e ora inizio gara | 17/02/2026 ore 12:00 |
- file_download Ordinanza
- file_download Ordinanza
- file_download Ordinanza
- file_download Ordinanza
- file_download Ordinanza
- file_download Perizia
- file_download Perizia
- file_download Perizia
- file_download Perizia
- file_download Perizia
- file_download Perizia
- file_download Perizia
- file_download Perizia
- file_download Perizia
- file_download Perizia
- file_download Perizia
- file_download Perizia
- file_download Perizia
- file_download Altro
- file_download Altro
- file_download Avviso