highlight_off
Riferimento annuncio 325228 info

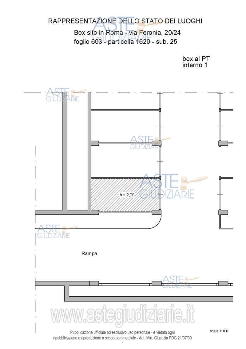
Garage o Posto auto Via Feronia, 20, 00157 Roma RM, Italia, 00100 Roma (RM)

1,00
19,00
0
€ 11.970
Vendita all'asta Senza incanto, con gara telematica asincrona - LOTTO 1: Proprietà piena ed esclusiva di box auto sito in Roma Capitale, zona Pietralata, via Feronia, 20, piano T, int. 1. Prezzo base € 11.970,00 (offerta minima € 8.977,50). Data inizio operazioni di vendita: 24/03/2026 ore 14:00. Giudice Dott. Romolo Ciufolini. Professionista delegato alla vendita Avv. Luca Bernardini. Custode Giudiziario I.V.G Di Roma S.R.L. Istituto Vendite Giudiziarie - Email "pubblicita@ivgroma.it"; Tel. 06 83751500. Rif. Tribunale di Roma - Esecuzione immobiliare post legge 80 n. 409/2022

Superficie 19,00 mq
Vani 1,00
Bagni
Piano 0

Tipologia di vendita Giudiziaria
Modalità di vendita Asincrona telematica
Termine presentazione offerte 01/01/1900 ore 00:00
Data e ora inizio gara 24/03/2026 ore 14:00
Codice ID astegiudiziarie.it 4344266
1,00
19,00
0
€ 11.970

Ti interessa questa vendita?

north_east

Clicca qui per essere indirizzato alla scheda sul sito di provenienza

Bene di astegiudiziarie.it