highlight_off
Riferimento annuncio 306467 info

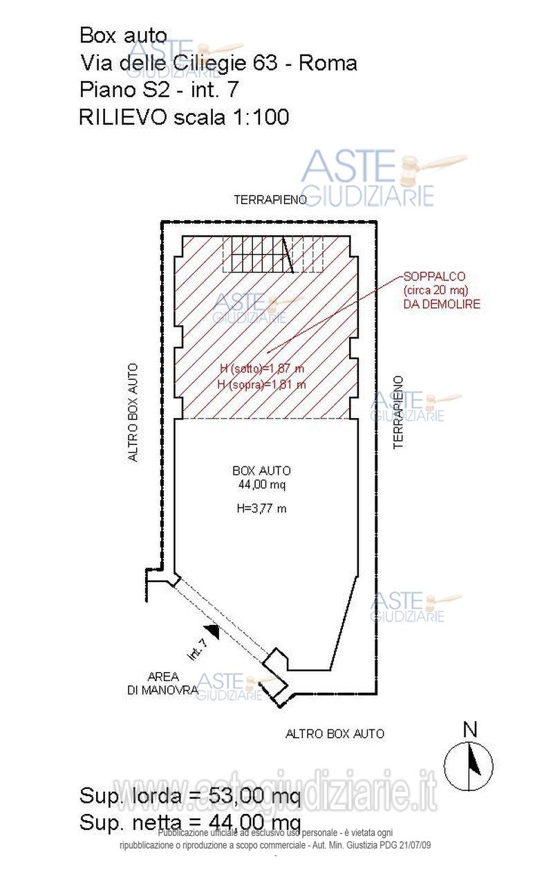
Garage o Posto auto Via delle Ciliegie, 63, 00172 Roma RM, Italia, 00100 Roma (RM)

1,00
53,00
0
€ 32.320
Vendita all'asta Senza incanto, con gara telematica asincrona - LOTTO UNICO: Quota pari a 100/100 del diritto di piena proprietà del box auto sito in Roma, Via delle Ciliegie n. 63, piano S2, interno 7, quartiere Alessandrino. Il bene è costituito da un’area di parcheggio di cui una parte è sovrastata da un soppalco abusivo (da demolire) di circa 20,00 mq, a cui si accede mediante scala metallica interna. Prezzo base € 32.320,00 (offerta minima € 24.240,00). Data inizio operazioni di vendita: 14/01/2026 ore 12:00. Giudice Dott. Stefania Merola. Professionista delegato alla vendita Dott. Roberto Carisi - Email "studiocarisiconsultsrl@gmail.com"; Tel. 067012634. Custode Giudiziario Ivg Di Roma Srl - Email "pvp@visiteivgroma.it"; Tel. 0683751500. Rif. Tribunale di Roma - Esecuzione immobiliare post legge 80 n. 70/2022

Superficie 53,00 mq
Vani 1,00
Bagni
Piano 0

Tipologia di vendita Giudiziaria
Modalità di vendita Asincrona telematica
Termine presentazione offerte 01/01/1900 ore 00:00
Data e ora inizio gara 14/01/2026 ore 12:00
Codice ID astegiudiziarie.it 4328834
1,00
53,00
0
€ 32.320

Ti interessa questa vendita?

north_east

Clicca qui per essere indirizzato alla scheda sul sito di provenienza

Bene di astegiudiziarie.it