highlight_off
Riferimento annuncio 315809 info

Garage o Posto auto Marina di Ravenna, Via Marinara, 48100 Ravenna (RA)

11,50
0
€ 9.000
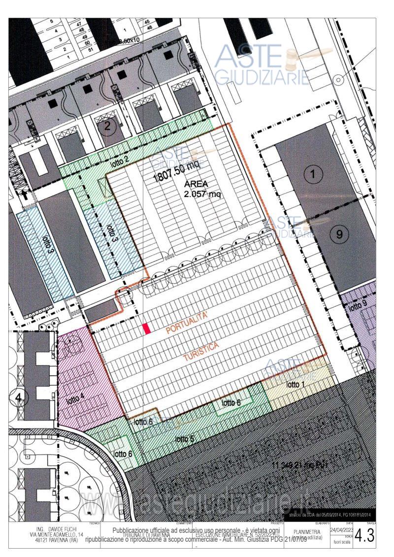
Vendita all'asta Senza incanto, con gara telematica asincrona - LOTTO 4: Proprietà superficiaria di posto auto scoperto di ca mq 11,50 al piano terra all'interno del complesso turistico di Marinara, in prossimità del porto turistico e delle spiagge, in zona prevalentemente residenziale e di servizi. Libero. Prezzo base € 9.000,00 (offerta minima € 7.500,00). Data inizio operazioni di vendita: 17/11/2025 ore 11:30. Giudice Dott. Samuele Labanca. Professionista delegato alla vendita Avv. Federica Bandini - Email "avvfedericabandini@gmail.com"; Tel. 0544213916. Custode Giudiziario Avv. Federica Bandini - Email "avvfedericabandini@gmail.com"; Tel. 0544213916. Rif. Tribunale di Ravenna - Esecuzione immobiliare post legge 80 n. 52/2022

Superficie 11,50 mq
Vani
Bagni
Piano 0

Tipologia di vendita Giudiziaria
Modalità di vendita Asincrona telematica
Termine presentazione offerte 01/01/1900 ore 00:00
Data e ora inizio gara 17/11/2025 ore 11:30
Codice ID astegiudiziarie.it 4336741
11,50
0
€ 9.000

Ti interessa questa vendita?

north_east

Clicca qui per essere indirizzato alla scheda sul sito di provenienza

Bene di astegiudiziarie.it