Riferimento annuncio 160484
        
    
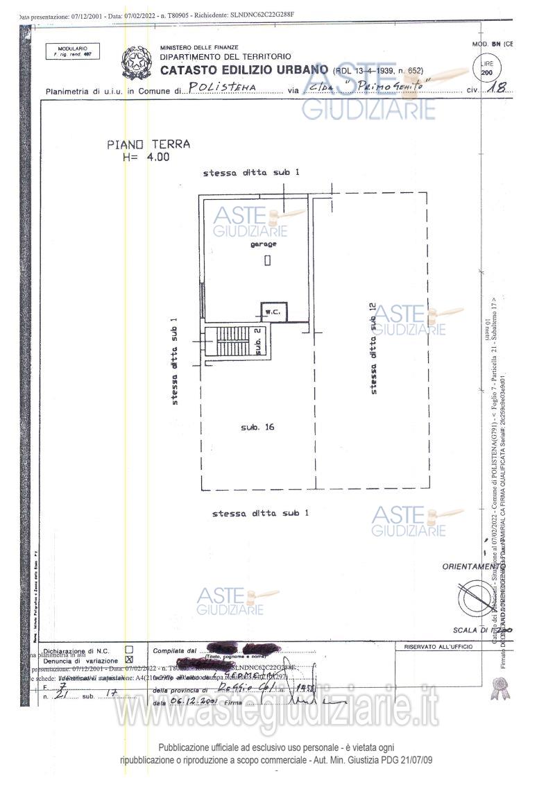
    Garage o Posto auto Contrada Primogenito, 89024 Polistena (RC)
                
                98,00
            
            
                
                0
            
        
€ 7.765    
                Vendita in attesa dell'emissione del nuovo bando d'asta. LOTTO 1: Autorimessa/deposito. Ultimo prezzo base € 7.765,20 (offerta minima € 5.823,90). Professionista delegato alla vendita Avv. Maria Stefania Filippone - Tel. 340 2810328.  Rif. Tribunale di Palmi - Esecuzione immobiliare n. 3/2021
            
   
| Superficie | 98,00 mq | 
|---|---|
| Vani | |
| Bagni | |
| Piano | 0 | 
| Tipologia di vendita | Giudiziaria | 
|---|---|
| Modalità di vendita | Asincrona telematica | 
| Termine presentazione offerte | 01/01/1900 ore 00:00 | 
| Data e ora inizio gara | 21/10/2025 ore 09:00 | 
 
                         
                         
                         
                         
                         
                        