highlight_off
Riferimento annuncio 130030 info

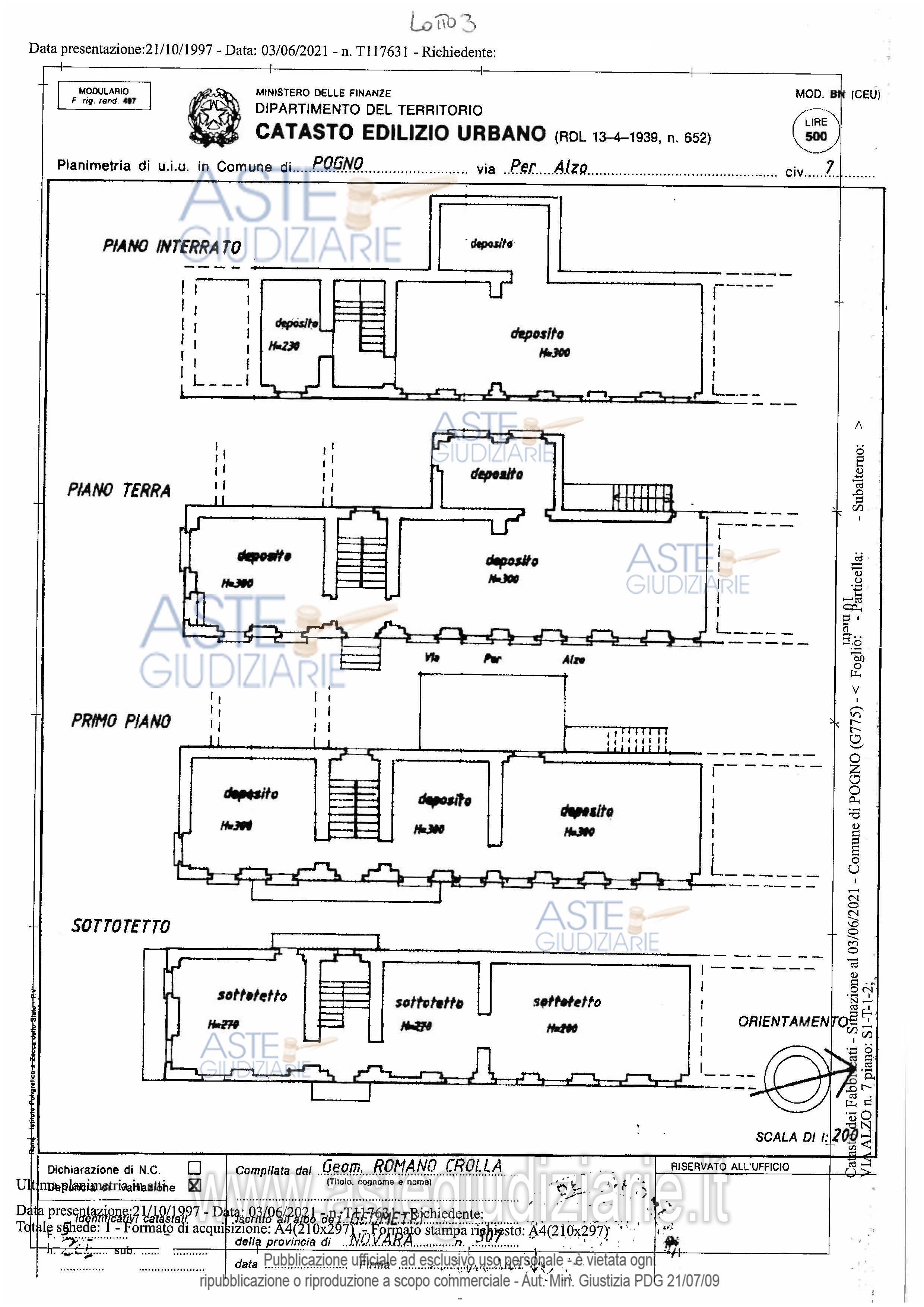
Garage o Posto auto Via Alzo 7, 28076 Pogno (NO)

370,00
0
€ 5.440
Vendita all'asta Senza incanto, con gara telematica asincrona - LOTTO 3: MAGAZZINI E LOCALI DEPOSITO. Prezzo base € 5.440,00 (offerta minima € 4.080,00). Data inizio operazioni di vendita: 10/06/2026 ore 12:00. Giudice: Rossella Incardona. Professionista delegato alla vendita: Dott. Cristina Gaviani - Email "cristina.gaviani@studiogaviani.it"; Tel. 0321/620148. Custode Giudiziario: Ifir Piemonte Ivg S.R.L. - Email "richiestevisite.novara@ivgpiemonte.it"; Tel. 0321/628676. Rif. Tribunale di Novara - Esecuzione immobiliare post legge 80 n. 97/2020

Superficie 370,00 mq
Vani
Bagni
Piano 0

Tipologia di vendita Giudiziaria
Modalità di vendita Asincrona telematica
Termine presentazione offerte 09/06/2026 ore 12:00
Data e ora inizio gara 10/06/2026 ore 12:00
Codice ID astegiudiziarie.it 4238518
370,00
0
€ 5.440

Ti interessa questa vendita?

north_east

Clicca qui per essere indirizzato alla scheda sul sito di provenienza

Bene di astegiudiziarie.it