highlight_off
Riferimento annuncio 315207 info

Garage o Posto auto Via Aurora, 21, 20037 Milano MI, Italia, 20037 Paderno Dugnano (MI)

0
€ 22.000
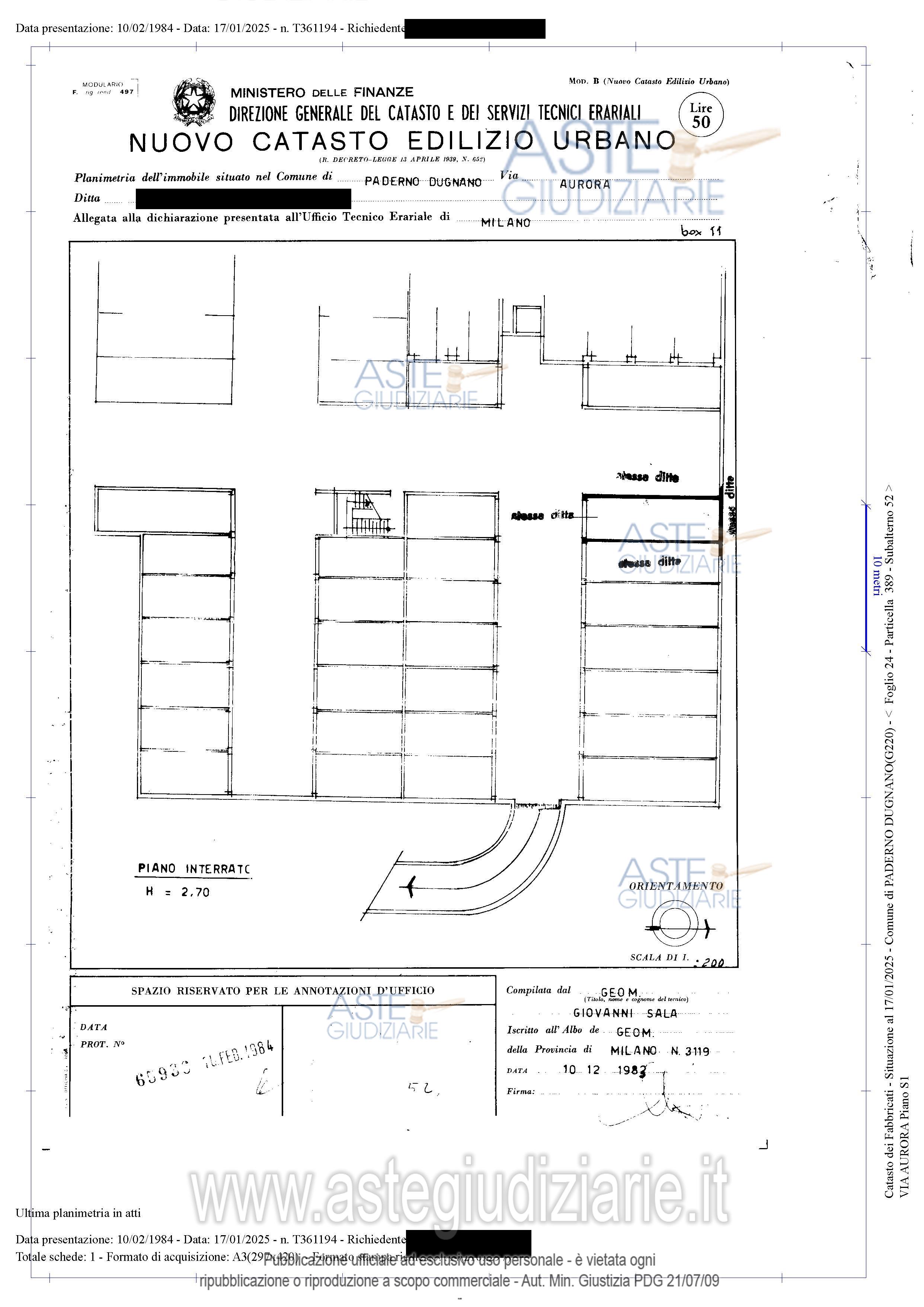
Vendita all'asta Senza incanto, con gara telematica sincrona - LOTTO 1: Box singolo della superficie commerciale di 25,00 mq ubicato al piano interrato di stabile condominiale; le dimensioni in lunghezza consentono il parcheggio di due autovetture di medio/piccole dimensioni. Prezzo base € 22.000,00 (offerta minima € 16.500,00). Data vendita 13/11/2025 ore 15:00. Professionista delegato alla vendita Dott. Pino Sorrentino - Email "psorrentino@tcapartners.it"; Cell. 02855031; Tel. 02855031. Custode Giudiziario Dott. Pino Sorrentino - Email "psorrentino@tcapartners.it"; Cell. 02855031; Tel. 02855031. Rif. Tribunale di Monza - Espropriazione immobiliare (cartabia) n. 488/2024

Superficie mq
Vani
Bagni
Piano 0

Tipologia di vendita Giudiziaria
Modalità di vendita Sincrona telematica
Termine presentazione offerte 11/11/2025 ore 13:00
Data e ora inizio gara 13/11/2025 ore 15:00
Codice ID astegiudiziarie.it 4335575
0
€ 22.000

Ti interessa questa vendita?

north_east

Clicca qui per essere indirizzato alla scheda sul sito di provenienza

Bene di astegiudiziarie.it