highlight_off
Riferimento annuncio 281209 info

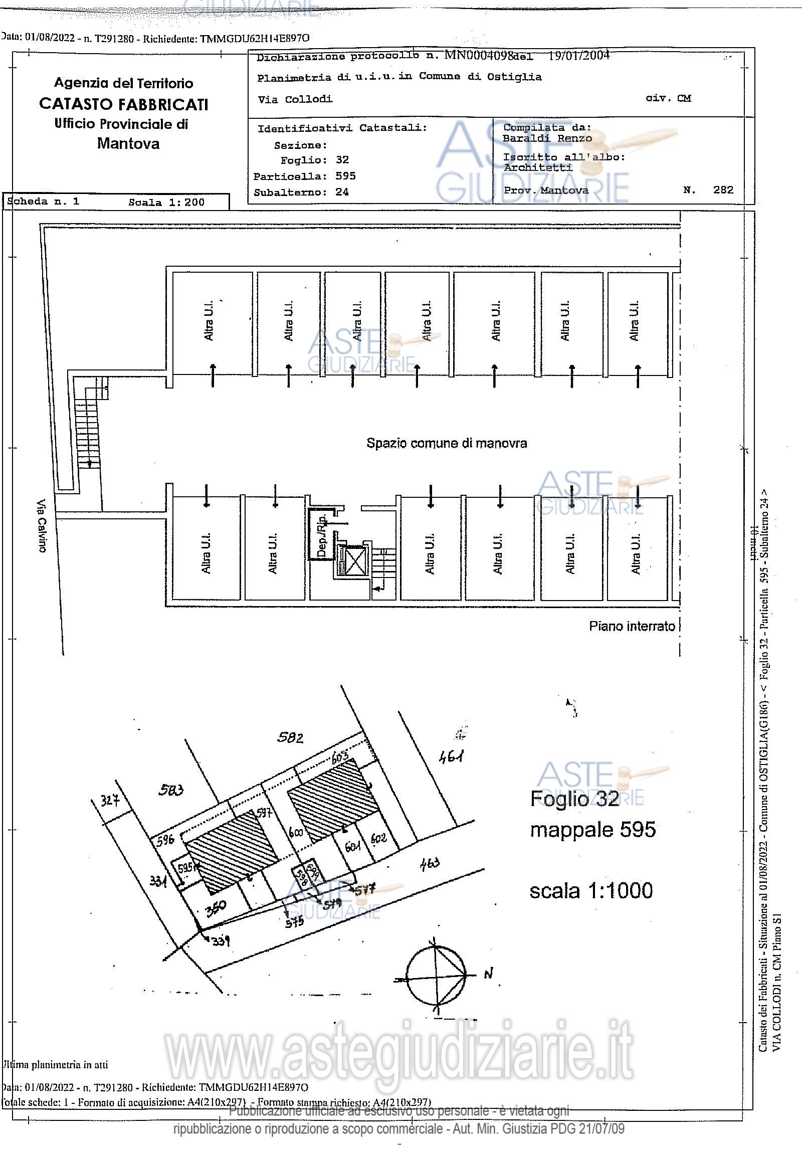
Garage o Posto auto VIA COLLODI 1/3, 46035 Ostiglia (MN)

19,00
0
€ 5.610
Vendita all'asta Senza incanto, con gara telematica sincrona mista - LOTTO 4: AUTORIMESSA. Prezzo base € 5.610,00 (offerta minima € 4.207,50). Data vendita 27/11/2025 ore 15:00. Professionista delegato alla vendita Avv. Ennio Avanzini - Email "studiolegaleavanzini@gmail.com"; Tel. 0376320318. Custode Giudiziario Franco Procissi - Email "info@sovemo.it"; Tel. 0376220694. Rif. Tribunale di Mantova - Esecuzione immobiliare post legge 80 n. 118/2022

Superficie 19,00 mq
Vani
Bagni
Piano 0

Tipologia di vendita Giudiziaria
Modalità di vendita Sincrona mista
Termine presentazione offerte 24/11/2025 ore 12:00
Data e ora inizio gara 27/11/2025 ore 15:00
Codice ID astegiudiziarie.it 4309426
19,00
0
€ 5.610

Ti interessa questa vendita?

north_east

Clicca qui per essere indirizzato alla scheda sul sito di provenienza

Bene di astegiudiziarie.it