highlight_off
Riferimento annuncio 300477 info

Garage o Posto auto Via Roma, 75, 60030 Morro d'Alba AN, Italia, 60030 Morro d'Alba (AN)

367,00
0
€ 64.141
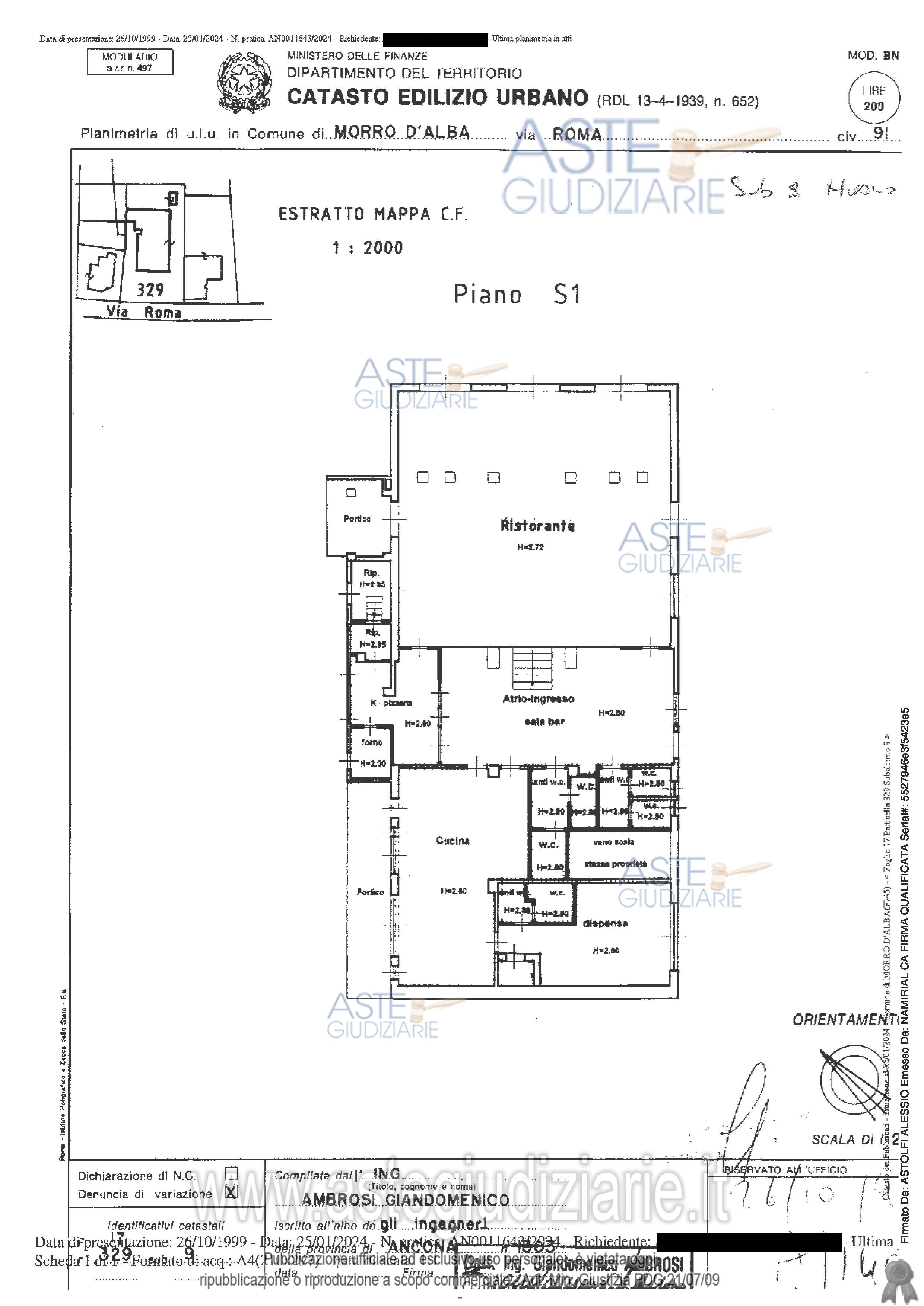
Vendita all'asta Senza incanto, con gara telematica asincrona - LOTTO UNICO: Ristorante al piano primo seminterrato con annessi portico e area esterna coperta e da due locali magazzino al piano secondo seminterrato, oltre la quota di un quarto su garage al piano seminterrato. Prezzo base € 64.140,75 (offerta minima € 48.106,00). Data inizio operazioni di vendita: 20/01/2026 ore 09:30. Giudice Dott. Maria Letizia Mantovani. Professionista delegato alla vendita Avv. Sabrina Stefanelli - Email "segreteria@asteavvocati.it"; Tel. 0719940177. Custode Giudiziario Avv. Sabrina Stefanelli - Email "s.stefanelli@stefanellimengarelli.it"; Tel. 07156625. Rif. Tribunale di Ancona - Espropriazione immobiliare (cartabia) n. 265/2023

Superficie 367,00 mq
Vani
Bagni
Piano 0

Tipologia di vendita Giudiziaria
Modalità di vendita Asincrona telematica
Termine presentazione offerte 01/01/1900 ore 00:00
Data e ora inizio gara 20/01/2026 ore 09:30
Codice ID astegiudiziarie.it 4324145
367,00
0
€ 64.141

Ti interessa questa vendita?

north_east

Clicca qui per essere indirizzato alla scheda sul sito di provenienza

Bene di astegiudiziarie.it