Riferimento annuncio 306344
Garage o Posto auto Via Sardi, 57100 Livorno (LI)
1
pt
€ 21.600
ATTENZIONE: A seguito della raccolta offerte tenutasi dal 20/05/2024 al 20/06/2024 e della successiva asta tenutasi in data 23/07/2024, è stata individuata una migliore offerta, per un importo pari ad Euro 21.666,00.
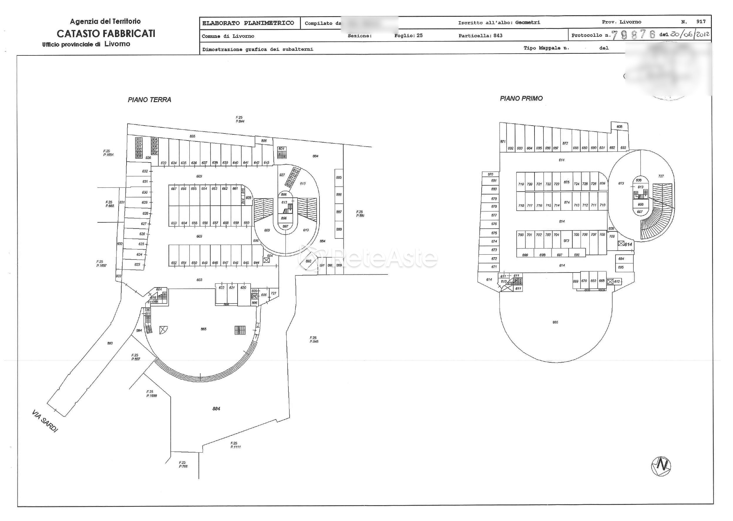
A partire da domani 25/07/2024 fino al 31/07/2024, compresi, sarà possibile presentare offerte in aumento post-asta, seguendo le indicazioni presenti a pagina 3 dell'avviso pubblicato sulla presente scheda, inviando il modulo offerta allegato alla medesima.Garage al piano terra di 15 metri quadri.
L’aggiudicatario sarà tenuto al pagamento degli oneri di urbanizzazione in favore del Comune di Livorno (acquisire un conteggio ufficiale presso l’Ente competente).
Come previsto dalla Convenzione del 15/07/2013 intercorsa tra Comune di Livorno e Spil, tali oneri di urbanizzazione non saranno dovuti nel caso in cui il garage si trovi ad una distanza di 500 ml da altra unità immobiliare di proprietà del medesimo aggiudicatario e sia correlato alle esigenze di detta unità, verificandosi in tal caso un’ipotesi di pertinenzialità.
Il Venditore potrà, inoltre, certificare i costi di realizzazione sostenuti per consentire all’aggiudicatario di richiederne l’eventuale detrazione, qualora ne ricorrano i presupposti a termine di legge.
Servitù: La viabilità di collegamento dell’immobile alla pubblica via è gravata da servitù di passo in favore di unità immobiliari private confinanti.
Spese condominiali annuali pari ad Euro 74,24 come da consuntivo 2023.
Garage on the ground floor of 15 square meters.
The successful bidder will be required to pay urbanization charges in favor of the Municipality of Livorno (obtain an official calculation from the competent authority). As provided for in the Agreement of 15/07/2013 between the Municipality of Livorno and Spil, such urbanization charges will not be due if the garage is located 500 meters away from another property owned by the same successful bidder and is related to the needs of that property, in which case a scenario of pertinence occurs.
The Seller may also certify the construction costs incurred to allow the successful bidder to claim any possible deduction, if the legal requirements are met. Easements: The access road connecting the property to the public road is subject to a right of way in favor of neighboring private properties.
Annual condominium expenses amounting to 74.24 Euros as per the 2023 statement.
The successful bidder will be required to pay urbanization charges in favor of the Municipality of Livorno (obtain an official calculation from the competent authority). As provided for in the Agreement of 15/07/2013 between the Municipality of Livorno and Spil, such urbanization charges will not be due if the garage is located 500 meters away from another property owned by the same successful bidder and is related to the needs of that property, in which case a scenario of pertinence occurs.
The Seller may also certify the construction costs incurred to allow the successful bidder to claim any possible deduction, if the legal requirements are met. Easements: The access road connecting the property to the public road is subject to a right of way in favor of neighboring private properties.
Annual condominium expenses amounting to 74.24 Euros as per the 2023 statement.
Vente en attente de l’émission d’un avis nouveau. Garage au rez-de-chaussée de 15 mètres carrés. L'adjudicataire sera tenu au paiement des frais d'urbanisme au profit de la municipalité de Livourne (obtenir un calcul officiel auprès de l'administration compétente). Conformément à la Convention du 15/07/2013 conclue entre la municipalité de Livourne et Spil, ces frais d'urbanisme ne seront pas dus dans le cas où le garage se trouve à une distance de 500 mètres d'une autre unité immobilière appartenant au même adjudicataire et est lié aux besoins de cette unité, ce qui constituerait un cas de pertinence. Par ailleurs, le vendeur pourra certifier les coûts de réalisation supportés afin de permettre à l'adjudicataire de demander une éventuelle déduction, si les conditions légales le permettent. Servitude : L'accès de l'immeuble à la voie publique est grevé d'une servitude de passage en faveur des unités immobilières privées voisines. Charges de copropriété annuelles s'élevant à 74,24 euros selon le décompte de 2023.
Vente en attente de l’émission d’un avis nouveau. Garage im Erdgeschoss von 15 Quadratmetern. Der Bieter ist verpflichtet, die Erschließungskosten zugunsten der Stadt Livorno zu zahlen (ein offizielles Gutachten bei der zuständigen Behörde einholen). Gemäß der Vereinbarung vom 15.07.2013 zwischen der Stadt Livorno und Spil sind diese Erschließungskosten nicht zu zahlen, wenn sich die Garage in einer Entfernung von 500 m von einer anderen Immobilie des gleichen Bieters befindet und den Bedürfnissen dieser Immobilie zugeordnet ist, was in diesem Fall eine Fall von Zugehörigkeit darstellt. Der Verkäufer kann auch die angefallenen Baukosten zertifizieren, um es dem Bieter zu ermöglichen, bei Vorliegen der gesetzlichen Voraussetzungen eine eventuelle Abzugsberechtigung zu beantragen. Servitù: Die Zufahrtsmöglichkeit des Grundstücks zur öffentlichen Straße ist mit einem Durchgangsrecht zugunsten benachbarter privater Immobilien belastet. Jährliche gemeinsame Kosten in Höhe von 74,24 Euro gemäß Abrechnung 2023.
15平方米的地下车库。中标者将被要求向里窝那市政府支付城市化费用(请向相关机构获取正式计算)。根据2013年7月15日里窝那市政府与Spil之间达成的协议,如果车库与同一中标者所有的其他单位距离500米且与该单位的需求相关,则不需要支付城市化费用,这种情况下被视为相关性。此外,卖方还可以核实为实现所支出的成本,以便中标者在法律规定的条件下进行可能的扣除申请。 附属权:房地产与公共道路的连接通道负有通过服务于相邻私人房地产的权利。 根据2023年的年度联合会费结算,每年的联合会费为74.24欧元。
Объявление аукциона по данной продаже будет вскоре опубликовано. Гараж на первом этаже площадью 15 квадратных метров. Победитель торгов обязуется уплатить плату за градостроительные работы в пользу города Ливорно (получить официальный расчет у компетентного органа). В соответствии с Соглашением от 15.07.2013 между городом Ливорно и Spil, указанные платежи за градостроительные работы не взимаются, если гараж находится на расстоянии 500 метров от другого объекта недвижимости, находящегося в собственности того же победителя торгов, и соответствует потребностям этого объекта, что означает случай принадлежности. Продавец также может предоставить сертификат о затратах на строительство, понесенных для возможности возмещения победителю торгов, если имеются основания в соответствии с законом. Служебные обязанности: Доступ к недвижимости из общественной дороги обременен служебным проездом в пользу соседних частных домов. Ежегодные коммунальные расходы в размере 74,24 евро по смете на 2023 год.
| Superficie | mq |
|---|---|
| Vani | 1 |
| Bagni | |
| Piano | pt |
| Tipologia di vendita | Privata |
|---|---|
| Modalità di vendita | Asincrona telematica |
| Termine presentazione offerte | 23/07/2025 ore 13:00 |
| Data e ora inizio gara | 23/07/2025 ore 14:00 |