Riferimento annuncio 274745
Garage o Posto auto Via Sardi, 57100 Livorno (LI)
€ 30.096
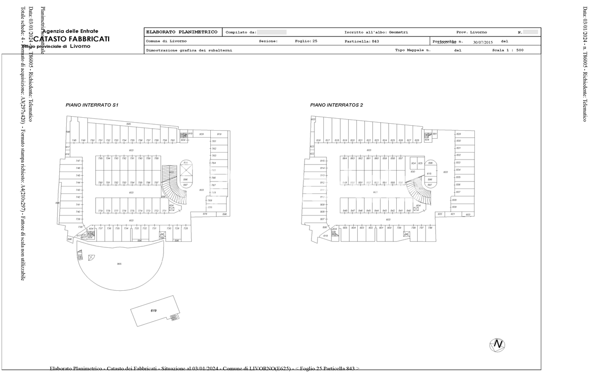
Garage al piano seminterrato primo di 22 metri quadri.
Immobile locato con regolare contratto di locazione decorrente dal 01/11/2021 e scadenza il 31/10/2027. Canone mensile pari ad Euro 217,31.
L’aggiudicatario sarà tenuto al pagamento degli oneri di urbanizzazione in favore del Comune di Livorno da quest’ultimo stimati in euro 1.643,76 e specificati nelle singole schede di vendita (si consiglia tuttavia di acquisire un conteggio ufficiale presso l’Ente competente).
Come previsto dalla Convenzione del 15/07/2013 intercorsa tra Comune di Livorno e Spil, tali oneri di urbanizzazione non saranno dovuti nel caso in cui il garage si trovi ad una distanza di 500 ml da altra unità immobiliare di proprietà del medesimo aggiudicatario e sia correlato alle esigenze di detta unità, verificandosi in tal caso un’ipotesi di pertinenzialità.
Il Venditore potrà, inoltre, certificare i costi di realizzazione sostenuti per consentire all’aggiudicatario di richiederne l’eventuale detrazione, qualora ne ricorrano i presupposti a termine di legge.
Servitù: La viabilità di collegamento dell’immobile alla pubblica via è gravata da servitù di passo in favore di unità immobiliari private confinanti.
Spese condominiali annuali pari ad Euro 125,46 come da consuntivo 2023.
Immobile locato con regolare contratto di locazione decorrente dal 01/11/2021 e scadenza il 31/10/2027. Canone mensile pari ad Euro 217,31.
L’aggiudicatario sarà tenuto al pagamento degli oneri di urbanizzazione in favore del Comune di Livorno da quest’ultimo stimati in euro 1.643,76 e specificati nelle singole schede di vendita (si consiglia tuttavia di acquisire un conteggio ufficiale presso l’Ente competente).
Come previsto dalla Convenzione del 15/07/2013 intercorsa tra Comune di Livorno e Spil, tali oneri di urbanizzazione non saranno dovuti nel caso in cui il garage si trovi ad una distanza di 500 ml da altra unità immobiliare di proprietà del medesimo aggiudicatario e sia correlato alle esigenze di detta unità, verificandosi in tal caso un’ipotesi di pertinenzialità.
Il Venditore potrà, inoltre, certificare i costi di realizzazione sostenuti per consentire all’aggiudicatario di richiederne l’eventuale detrazione, qualora ne ricorrano i presupposti a termine di legge.
Servitù: La viabilità di collegamento dell’immobile alla pubblica via è gravata da servitù di passo in favore di unità immobiliari private confinanti.
Spese condominiali annuali pari ad Euro 125,46 come da consuntivo 2023.
Garage on the first basement floor of 22 square meters.
Property rented with a lease contract with a monthly rent of €217.31. The successful bidder will be responsible for paying urbanization charges to the Municipality of Livorno, estimated at €1,643.76, as specified in the individual sales sheets (it is recommended, however, to obtain an official calculation from the relevant authority).
As provided for in the Agreement of 07/15/2013 between the Municipality of Livorno and Spil, these urbanization charges will not be due if the garage is located within 500 meters of another property owned by the same successful bidder and is related to the needs of that property, in which case a scenario of relevance will be verified.
The seller may also certify the construction costs incurred to allow the successful bidder to request any deduction, if the legal requirements are met.
Easements: The access road connecting the property to the public road is subject to a right of way in favor of adjacent private properties.
Property rented with a lease contract with a monthly rent of €217.31. The successful bidder will be responsible for paying urbanization charges to the Municipality of Livorno, estimated at €1,643.76, as specified in the individual sales sheets (it is recommended, however, to obtain an official calculation from the relevant authority).
As provided for in the Agreement of 07/15/2013 between the Municipality of Livorno and Spil, these urbanization charges will not be due if the garage is located within 500 meters of another property owned by the same successful bidder and is related to the needs of that property, in which case a scenario of relevance will be verified.
The seller may also certify the construction costs incurred to allow the successful bidder to request any deduction, if the legal requirements are met.
Easements: The access road connecting the property to the public road is subject to a right of way in favor of adjacent private properties.
| Tipologia di vendita | Privata |
|---|---|
| Modalità di vendita | Raccolta offerte |