Riferimento annuncio 274735
Garage o Posto auto Via Sardi, 57100 Livorno (LI)
€ 21.888
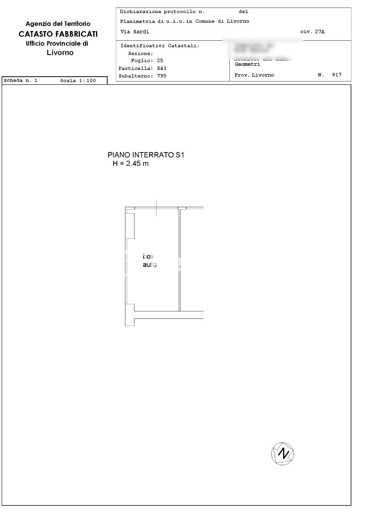
Garage al piano seminterrato primo di 16 metri quadri.
L’aggiudicatario sarà tenuto al pagamento degli oneri di urbanizzazione in favore del Comune di Livorno da quest’ultimo stimati in euro 1.195,46 e specificati nelle singole schede di vendita (si consiglia tuttavia di acquisire un conteggio ufficiale presso l’Ente competente).
Come previsto dalla Convenzione del 15/07/2013 intercorsa tra Comune di Livorno e Spil, tali oneri di urbanizzazione non saranno dovuti nel caso in cui il garage si trovi ad una distanza di 500 ml da altra unità immobiliare di proprietà del medesimo aggiudicatario e sia correlato alle esigenze di detta unità, verificandosi in tal caso un’ipotesi di pertinenzialità.
Il Venditore potrà, inoltre, certificare i costi di realizzazione sostenuti per consentire all’aggiudicatario di richiederne l’eventuale detrazione, qualora ne ricorrano i presupposti a termine di legge.
Servitù: La viabilità di collegamento dell’immobile alla pubblica via è gravata da servitù di passo in favore di unità immobiliari private confinanti.
Spese condominiali annuali pari ad Euro 124,26 come da consuntivo 2023.
L’aggiudicatario sarà tenuto al pagamento degli oneri di urbanizzazione in favore del Comune di Livorno da quest’ultimo stimati in euro 1.195,46 e specificati nelle singole schede di vendita (si consiglia tuttavia di acquisire un conteggio ufficiale presso l’Ente competente).
Come previsto dalla Convenzione del 15/07/2013 intercorsa tra Comune di Livorno e Spil, tali oneri di urbanizzazione non saranno dovuti nel caso in cui il garage si trovi ad una distanza di 500 ml da altra unità immobiliare di proprietà del medesimo aggiudicatario e sia correlato alle esigenze di detta unità, verificandosi in tal caso un’ipotesi di pertinenzialità.
Il Venditore potrà, inoltre, certificare i costi di realizzazione sostenuti per consentire all’aggiudicatario di richiederne l’eventuale detrazione, qualora ne ricorrano i presupposti a termine di legge.
Servitù: La viabilità di collegamento dell’immobile alla pubblica via è gravata da servitù di passo in favore di unità immobiliari private confinanti.
Spese condominiali annuali pari ad Euro 124,26 come da consuntivo 2023.
Garage on the first basement floor of 16 square meters.
The successful bidder will be required to pay urbanization charges in favor of the Municipality of Livorno, estimated at euro 1,195.46, and specified in the individual sales sheets (it is advisable, however, to obtain an official calculation from the competent authority).
As provided in the agreement of 07/15/2013 between the Municipality of Livorno and Spil, such urbanization charges will not be due in case the garage is located 500 meters away from another real estate unit owned by the same successful bidder and is related to the needs of that unit, in which case a scenario of relevance will occur.
The Seller may also certify the construction costs incurred to allow the successful bidder to request any deduction, if the legal requirements are met.
Easements: The vehicular connection of the property to the public road is burdened by a right of passage in favor of adjacent private real estate units.
The successful bidder will be required to pay urbanization charges in favor of the Municipality of Livorno, estimated at euro 1,195.46, and specified in the individual sales sheets (it is advisable, however, to obtain an official calculation from the competent authority).
As provided in the agreement of 07/15/2013 between the Municipality of Livorno and Spil, such urbanization charges will not be due in case the garage is located 500 meters away from another real estate unit owned by the same successful bidder and is related to the needs of that unit, in which case a scenario of relevance will occur.
The Seller may also certify the construction costs incurred to allow the successful bidder to request any deduction, if the legal requirements are met.
Easements: The vehicular connection of the property to the public road is burdened by a right of passage in favor of adjacent private real estate units.
Tipologia di vendita | Privata |
---|---|
Modalità di vendita | Raccolta offerte |