Riferimento annuncio 274722
Garage o Posto auto Via Sardi, 57100 Livorno (LI)
€ 25.992
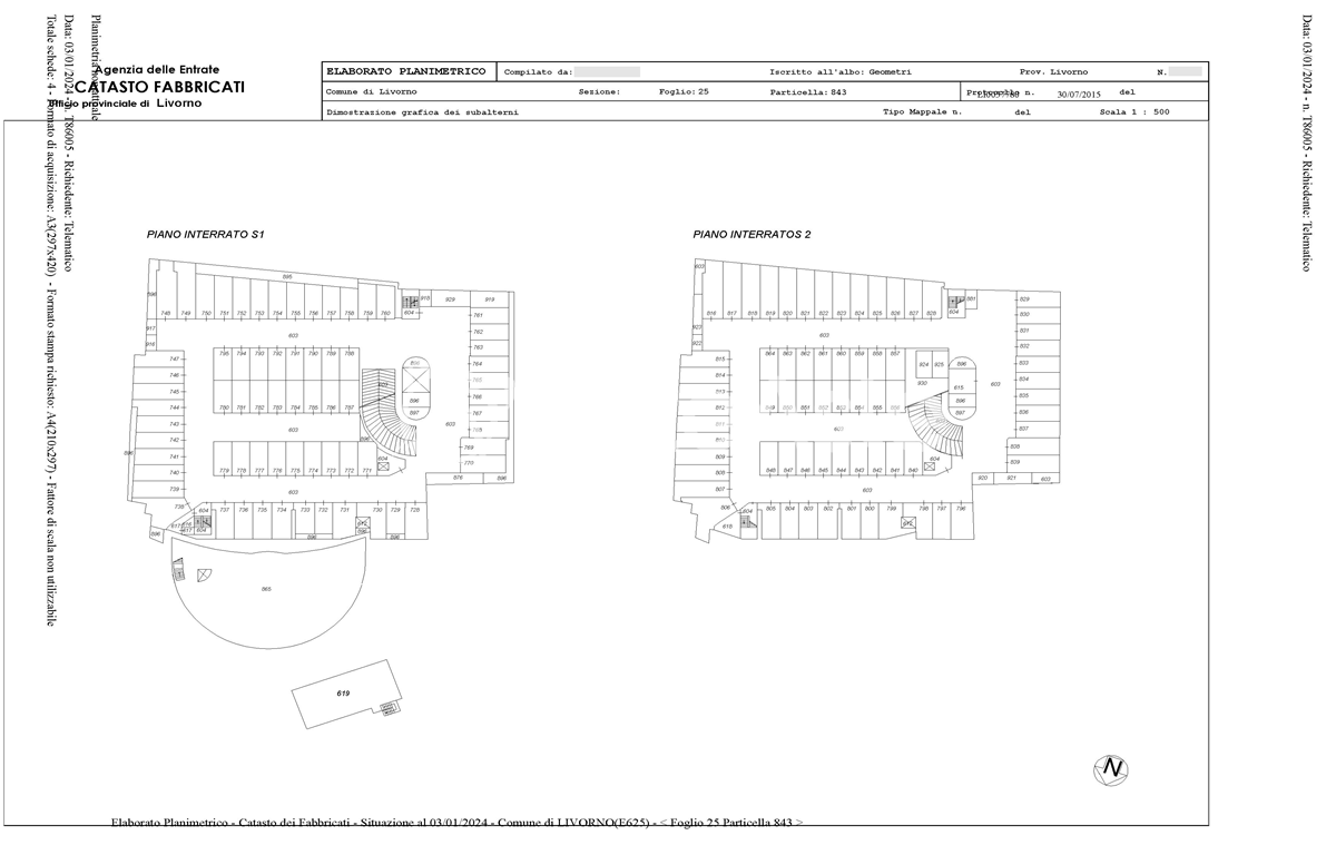
Garage al piano seminterrato primo di 19 metri quadri.
L’aggiudicatario sarà tenuto al pagamento degli oneri di urbanizzazione in favore del Comune di Livorno da quest’ultimo stimati in Euro 1.419,61 e specificati nelle singole schede di vendita (si consiglia tuttavia di acquisire un conteggio ufficiale presso l’Ente competente).
Come previsto dalla Convenzione del 15/07/2013 intercorsa tra Comune di Livorno e Spil, tali oneri di urbanizzazione non saranno dovuti nel caso in cui il garage si trovi ad una distanza di 500 ml da altra unità immobiliare di proprietà del medesimo aggiudicatario e sia correlato alle esigenze di detta unità, verificandosi in tal caso un’ipotesi di pertinenzialità.
Il Venditore potrà, inoltre, certificare i costi di realizzazione sostenuti per consentire all’aggiudicatario di richiederne l’eventuale detrazione, qualora ne ricorrano i presupposti a termine di legge.
Servitù: La viabilità di collegamento dell’immobile alla pubblica via è gravata da servitù di passo in favore di unità immobiliari private confinanti.
Spese condominiali annuali pari ad Euro 140,89 come da consuntivo 2023.
L’aggiudicatario sarà tenuto al pagamento degli oneri di urbanizzazione in favore del Comune di Livorno da quest’ultimo stimati in Euro 1.419,61 e specificati nelle singole schede di vendita (si consiglia tuttavia di acquisire un conteggio ufficiale presso l’Ente competente).
Come previsto dalla Convenzione del 15/07/2013 intercorsa tra Comune di Livorno e Spil, tali oneri di urbanizzazione non saranno dovuti nel caso in cui il garage si trovi ad una distanza di 500 ml da altra unità immobiliare di proprietà del medesimo aggiudicatario e sia correlato alle esigenze di detta unità, verificandosi in tal caso un’ipotesi di pertinenzialità.
Il Venditore potrà, inoltre, certificare i costi di realizzazione sostenuti per consentire all’aggiudicatario di richiederne l’eventuale detrazione, qualora ne ricorrano i presupposti a termine di legge.
Servitù: La viabilità di collegamento dell’immobile alla pubblica via è gravata da servitù di passo in favore di unità immobiliari private confinanti.
Spese condominiali annuali pari ad Euro 140,89 come da consuntivo 2023.
Garage on the first basement floor of 19 square meters.
The winning bidder will be required to pay urbanization charges in favor of the Municipality of Livorno, estimated at 1,419.61 Euros, as specified in the individual sales sheets (it is recommended, however, to obtain an official calculation from the competent authority).
As provided for in the agreement dated 15/07/2013 between the Municipality of Livorno and Spil, such urbanization charges will not be due in case the garage is located at a distance of 500 meters from another property owned by the same winning bidder and is related to the needs of that property, in which case a case of pertinence arises.
he Seller may also certify the costs incurred for the construction to allow the winning bidder to request any deduction, if the legal requirements are met.
Easement: The connection road from the property to the public road is encumbered by a right of way in favor of neighboring private properties.
The winning bidder will be required to pay urbanization charges in favor of the Municipality of Livorno, estimated at 1,419.61 Euros, as specified in the individual sales sheets (it is recommended, however, to obtain an official calculation from the competent authority).
As provided for in the agreement dated 15/07/2013 between the Municipality of Livorno and Spil, such urbanization charges will not be due in case the garage is located at a distance of 500 meters from another property owned by the same winning bidder and is related to the needs of that property, in which case a case of pertinence arises.
he Seller may also certify the costs incurred for the construction to allow the winning bidder to request any deduction, if the legal requirements are met.
Easement: The connection road from the property to the public road is encumbered by a right of way in favor of neighboring private properties.
Tipologia di vendita | Privata |
---|---|
Modalità di vendita | Raccolta offerte |