Riferimento annuncio 274704
Posto auto Via Giuseppe Verdi, 57100 Livorno (LI)
1
€ 16.128
ATTENZIONE: A seguito della raccolta offerte tenutasi dal 29/07/2025 al 05/09/2025 e della successiva asta tenutasi in data 01/10/2025, è stata individuata una migliore offerta, per un importo pari ad Euro 16.128,00.
A partire da oggi 03/10/2025 fino al 09/10/2025, compresi, sarà possibile presentare offerte in aumento post-asta, seguendo le indicazioni presenti a pagina 3 dell’avviso pubblicato sulla presente scheda, inviando il modulo offerta allegato alla medesima.
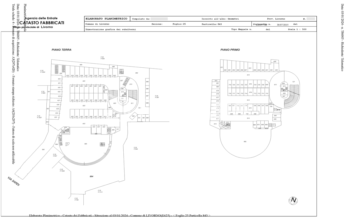
Posto auto al piano primo di 14 metri quadri.
L’aggiudicatario sarà tenuto al pagamento degli oneri di urbanizzazione in favore del Comune di Livorno da quest’ultimo stimati in Euro 1.046,03 e specificati nelle singole schede di vendita (si consiglia tuttavia di acquisire un conteggio ufficiale presso l’Ente competente).
Come previsto dalla Convenzione del 15/07/2013 intercorsa tra Comune di Livorno e Spil, tali oneri di urbanizzazione non saranno dovuti nel caso in cui il posto auto si trovi ad una distanza di 500 ml da altra unità immobiliare di proprietà del medesimo aggiudicatario e sia correlato alle esigenze di detta unità, verificandosi in tal caso un’ipotesi di pertinenzialità.
Spese condominiali annuali pari ad Euro 209,90 come da consuntivo 2023.
Parking space on the first floor of 14 square meters.
The successful bidder will be required to pay the urban development charges in favor of the Municipality of Livorno estimated by the latter at Euro 1,046.03, as specified in the individual sales sheets (however, it is recommended to obtain an official calculation from the relevant Authority).
As provided for in the Agreement of 15/07/2013 between the Municipality of Livorno and Spil, these urban development charges will not be due in the event that the parking space is located 500 meters away from another real estate unit owned by the same successful bidder and is related to the needs of said unit, thus constituting a case of pertinence.
The successful bidder will be required to pay the urban development charges in favor of the Municipality of Livorno estimated by the latter at Euro 1,046.03, as specified in the individual sales sheets (however, it is recommended to obtain an official calculation from the relevant Authority).
As provided for in the Agreement of 15/07/2013 between the Municipality of Livorno and Spil, these urban development charges will not be due in the event that the parking space is located 500 meters away from another real estate unit owned by the same successful bidder and is related to the needs of said unit, thus constituting a case of pertinence.
| Superficie | mq |
|---|---|
| Vani | |
| Bagni | |
| Piano | 1 |
| Tipologia di vendita | Privata |
|---|---|
| Modalità di vendita | Asincrona telematica |
| Termine presentazione offerte | 01/10/2025 ore 12:00 |
| Data e ora inizio gara | 01/10/2025 ore 14:00 |