Riferimento annuncio 279882
        
    
    Garage o Posto auto Via G. Mazzini, 22, 09010 Gonnesa SU, Italia, 09010 Gonnesa (SU)
                
                7,00
            
            
                
                147,00
            
            
                
                0
            
        
€ 20.672    
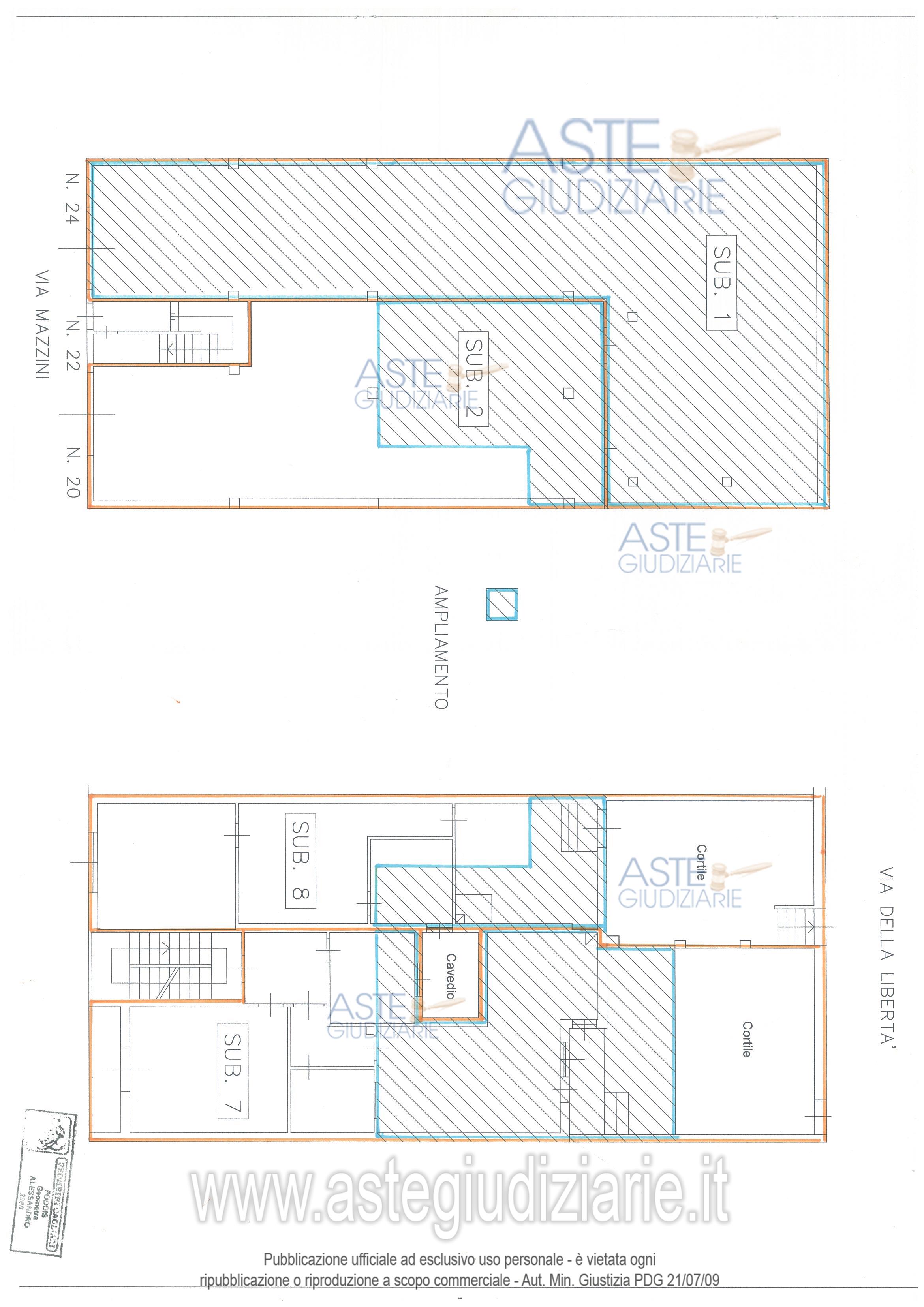
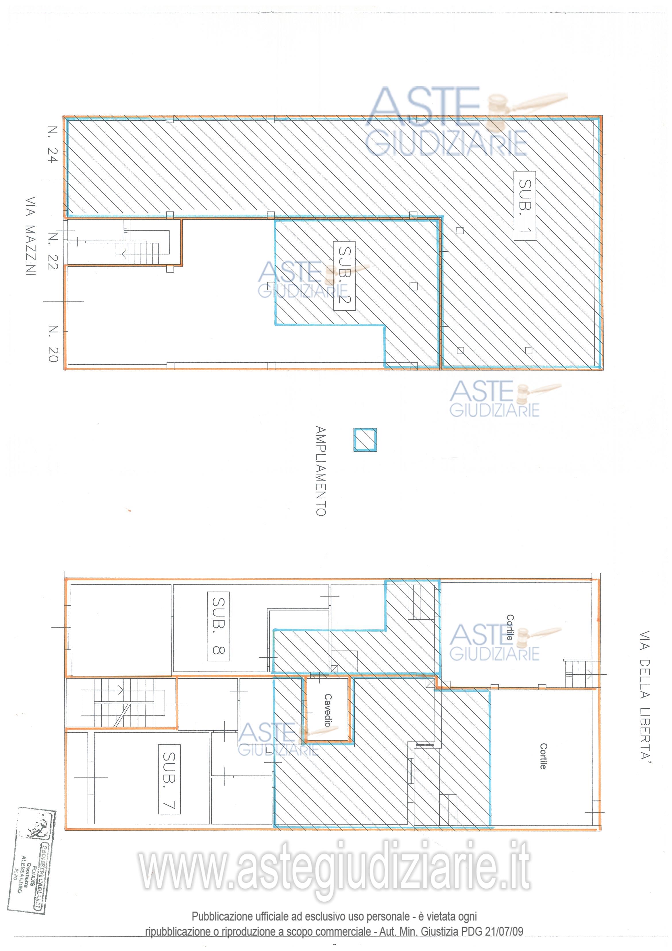
                Vendita all'asta Senza incanto, con gara telematica asincrona - LOTTO 1:  unità immobiliare ad uso autorimessa  Via Giuseppe Mazzini n.22 (più precisamente n.24), piano terra. Consistenza mq. 147. Prezzo base € 20.672,00 (offerta minima € 15.504,00). Data inizio operazioni di vendita: 05/11/2025 ore 10:00. Giudice Francesco De Giorgi. Professionista delegato alla vendita Dott. Valeria Usai - Email "valeria.usai@studiousaivaleria.it"; Tel. 0704639579. Custode Giudiziario  Lino Icilio Felice Fresi - Email "ivg.visiteimmobili@tiscali.it"; Tel. 0702299036.  Rif. Tribunale di Cagliari - Esecuzione immobiliare post legge 80 n. 243/2022
            
   
| Superficie | 147,00 mq | 
|---|---|
| Vani | 7,00 | 
| Bagni | |
| Piano | 0 | 
| Tipologia di vendita | Giudiziaria | 
|---|---|
| Modalità di vendita | Asincrona telematica | 
| Termine presentazione offerte | 01/01/1900 ore 00:00 | 
| Data e ora inizio gara | 05/11/2025 ore 10:00 | 
 
                         
                         
                         
                         
                         
                         
                         
                         
                         
                         
                         
                         
                         
                         
                         
                         
                         
                         
                         
                         
                         
                         
                         
                         
                         
                         
                         
                         
                         
                         
                         
                         
                         
                         
                         
                         
                         
                         
                         
                         
                         
                         
                         
                         
                         
                         
                         
                         
                         
                        