highlight_off
Riferimento annuncio 301574 info

Garage o Posto auto VIA XI SETTEMBRE TRAV.ROSSINI, 80030 Castello di Cisterna (NA)

10,00
0
€ 2.981
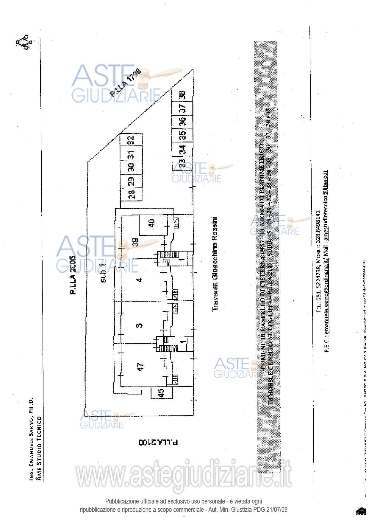
Vendita all'asta Senza incanto, con gara telematica asincrona - LOTTO UNICO: LOTTO UNDICI - piena ed intera proprietà del seguente cespiteBene – Posto auto scoperto ubicato in Castello di Cisterna (NA) alla via XI settembre, Traversa Rossini snc, piano terra delimitato dalle strisce degli stalli dei parcheggi e pavimentato con tappetino bituminoso di usura (asfalto) IL BENE OGGETTO DI PIGNORAMENTO PRESENTA UNA CADITOIA POSTA SUL MURO PERIMETRALE ESTERNO CHE NE LIMITA L’UTILIZZO E CHE VA RIMOSSA FATTI SALVI EVENTUALI DIRITTI DI TERZI. Prezzo base € 2.981,25 (offerta minima € 2.235,94). Data inizio operazioni di vendita: 05/05/2026 ore 17:00. Professionista delegato alla vendita Avv. Bruno Parisi - Email "avv.brunoparisi@gmail.com"; Cell. 3395493171. Custode Giudiziario Avv. Bruno Parisi - Email "avv.brunoparisi@gmail.com"; Cell. 3395493171. Rif. Tribunale di Nola - Espropriazione immobiliare (cartabia) n. 13/2024

Superficie 10,00 mq
Vani
Bagni
Piano 0

Tipologia di vendita Giudiziaria
Modalità di vendita Asincrona telematica
Termine presentazione offerte 04/05/2026 ore 23:59
Data e ora inizio gara 05/05/2026 ore 17:00
Codice ID astegiudiziarie.it 4325089
10,00
0
€ 2.981

Ti interessa questa vendita?

north_east

Clicca qui per essere indirizzato alla scheda sul sito di provenienza

Bene di astegiudiziarie.it