highlight_off
Riferimento annuncio 301568 info

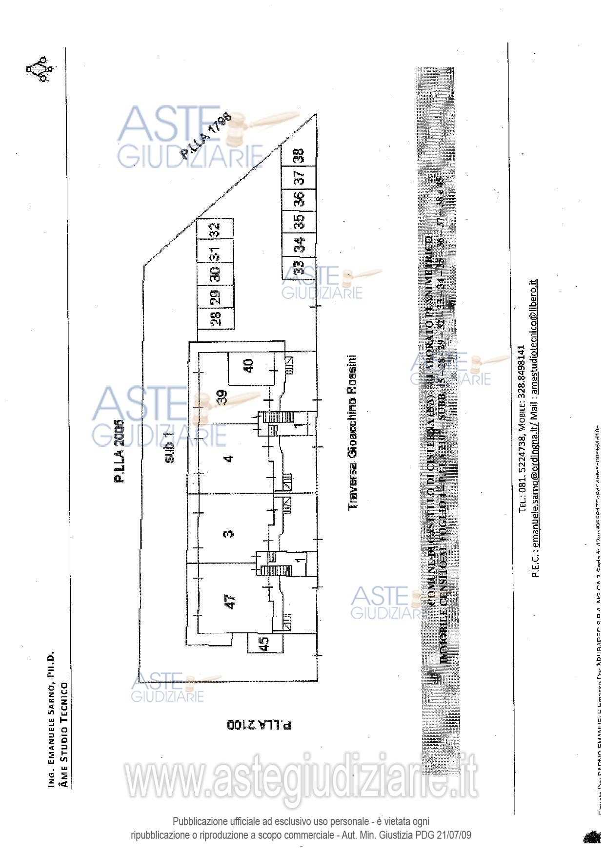
Garage o Posto auto Via XI Settembre Trav.Rossini, 80030 Castello di Cisterna (NA)

10,00
0
€ 3.975
Vendita all'asta Competitiva, con gara telematica asincrona - LOTTO 5: LOTTO CINQUE - piena ed intera proprietà del seguente cespiteBene – Posto auto scoperto ubicato in Castello di Cisterna (NA) alla via XI settembre, Traversa Rossini snc, piano terra delimitato dalle strisce degli stalli dei parcheggi e pavimentato con tappetino bituminoso di usura (asfalto. Prezzo base € 3.975,00 (offerta minima € 2.981,25). Data inizio operazioni di vendita: 20/11/2025 ore 16:00. Professionista delegato alla vendita Avv. Bruno Parisi - Email "avv.brunoparisi@gmail.com"; Cell. 3395493171. Custode Giudiziario Avv. Bruno Parisi - Email "avv.brunoparisi@gmail.com"; Cell. 3395493171. Rif. Tribunale di Nola - Espropriazione immobiliare (cartabia) n. 13/2024

Superficie 10,00 mq
Vani
Bagni
Piano 0

Tipologia di vendita Giudiziaria
Modalità di vendita Asincrona telematica
Termine presentazione domande 19/11/2025 ore 16:00
Data e ora inizio gara 20/11/2025 ore 16:00
Codice ID astegiudiziarie.it 4325083
10,00
0
€ 3.975

Ti interessa questa vendita?

north_east

Clicca qui per essere indirizzato alla scheda sul sito di provenienza

Bene di astegiudiziarie.it