highlight_off
Riferimento annuncio 325998 info

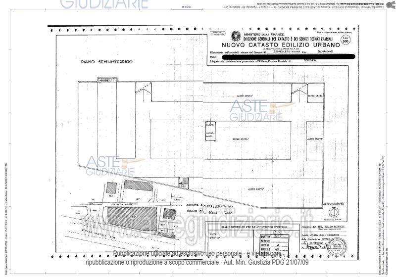
Garage o Posto auto Via della Chiesetta, 2, 28053 Villaggi NO, Italia, 28053 Castelletto sopra Ticino (NO)

19,50
0
€ 5.500
Vendita all'asta Senza incanto, con gara telematica asincrona - LOTTO 2: Piena proprietà per la quota di 1/1 di un’autorimessa situata in zona centrale/lungolago del Comune di Castelletto sopra Ticino (NO), ubicata al piano seminterrato di una costruzione destinata esclusivamente al ricovero delle auto. Prezzo base € 5.500,00 (offerta minima € 4.125,00). Data inizio operazioni di vendita: 15/04/2026 ore 12:00. Professionista delegato alla vendita Dott. Anna Burlotto. Custode Giudiziario Lorenzo Vigone - Email "richiestevisite.novara@ivgpiemonte.it". Rif. Tribunale di Novara - Espropriazione immobiliare (cartabia) n. 65/2023

Superficie 19,50 mq
Vani
Bagni
Piano 0

Tipologia di vendita Giudiziaria
Modalità di vendita Asincrona telematica
Termine presentazione offerte 14/04/2026 ore 12:00
Data e ora inizio gara 15/04/2026 ore 12:00
Codice ID astegiudiziarie.it 4344131
19,50
0
€ 5.500

Ti interessa questa vendita?

north_east

Clicca qui per essere indirizzato alla scheda sul sito di provenienza

Bene di astegiudiziarie.it