highlight_off
Riferimento annuncio 122195 info

Garage o Posto auto Via Laura Di Sotto, 4, 84083 Castel San Giorgio SA, Italia, 84083 Castel San Giorgio (SA)

132,00
0
€ 260.157
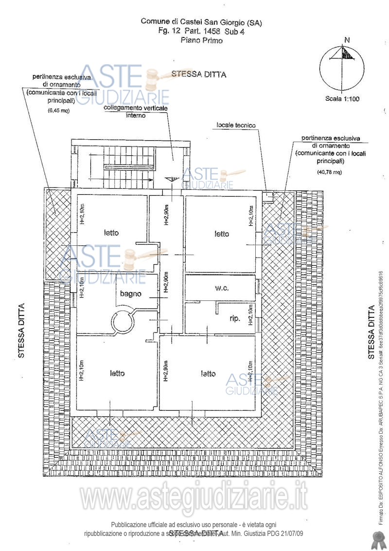
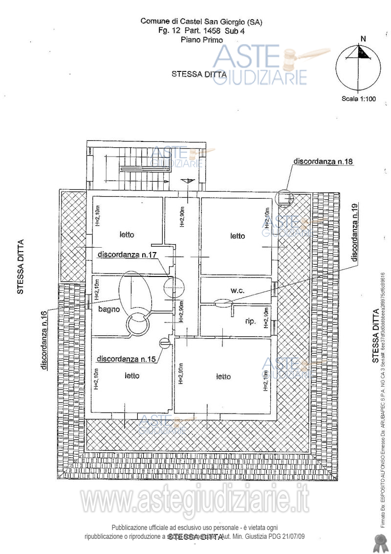
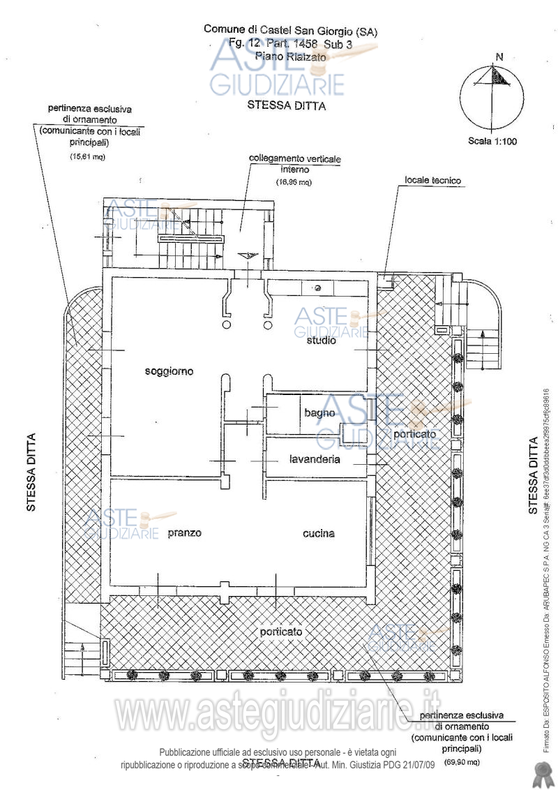
Vendita all'asta Senza incanto - LOTTO UNICO: Piena proprietà su autorimessa e abitazione al piano seminterrato, n° due abitazioni di tipo civile, n° 2 terreni. Prezzo base € 260.157,29 (offerta minima € 195.117,97). Data vendita 12/12/2025 ore 18:00. Giudice Dott. Luigi Bobbio. Professionista delegato alla vendita Dott. Amato Romano. Custode Giudiziario Dott. Amato Romano - Email "amato@studio-romano.it"; Cell. 3351356459; Tel. 081928293. Rif. Tribunale di Nocera Inferiore - Esecuzione immobiliare post legge 80 n. 146/2016

Superficie 132,00 mq
Vani
Bagni
Piano 0

Tipologia di vendita Giudiziaria
Modalità di vendita Presso il venditore
Termine presentazione offerte 01/01/1900 ore 00:00
Data e ora inizio gara 12/12/2025 ore 18:00
Codice ID astegiudiziarie.it 2796459
132,00
0
€ 260.157

Ti interessa questa vendita?

north_east

Clicca qui per essere indirizzato alla scheda sul sito di provenienza

Bene di astegiudiziarie.it