highlight_off
Riferimento annuncio 300429 info

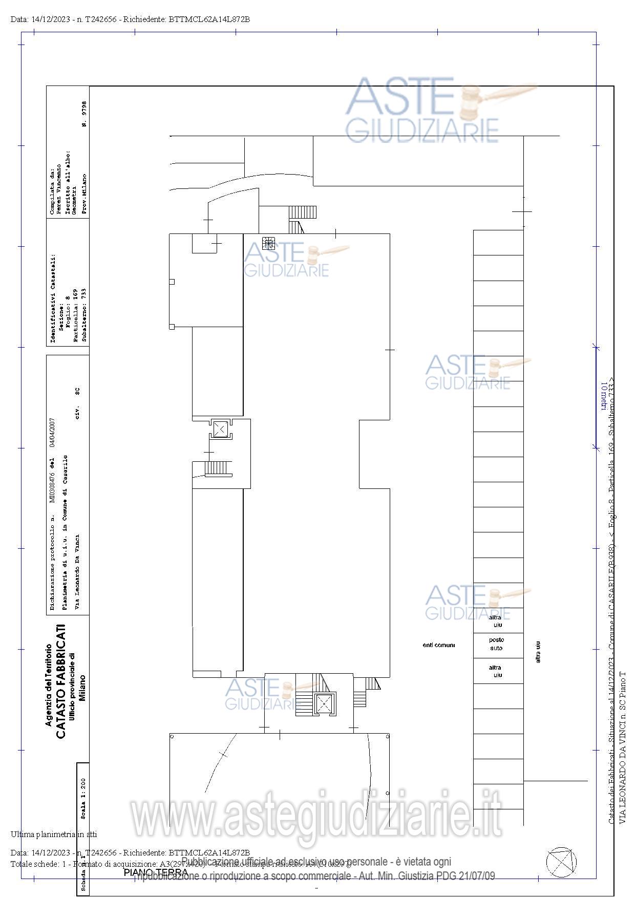
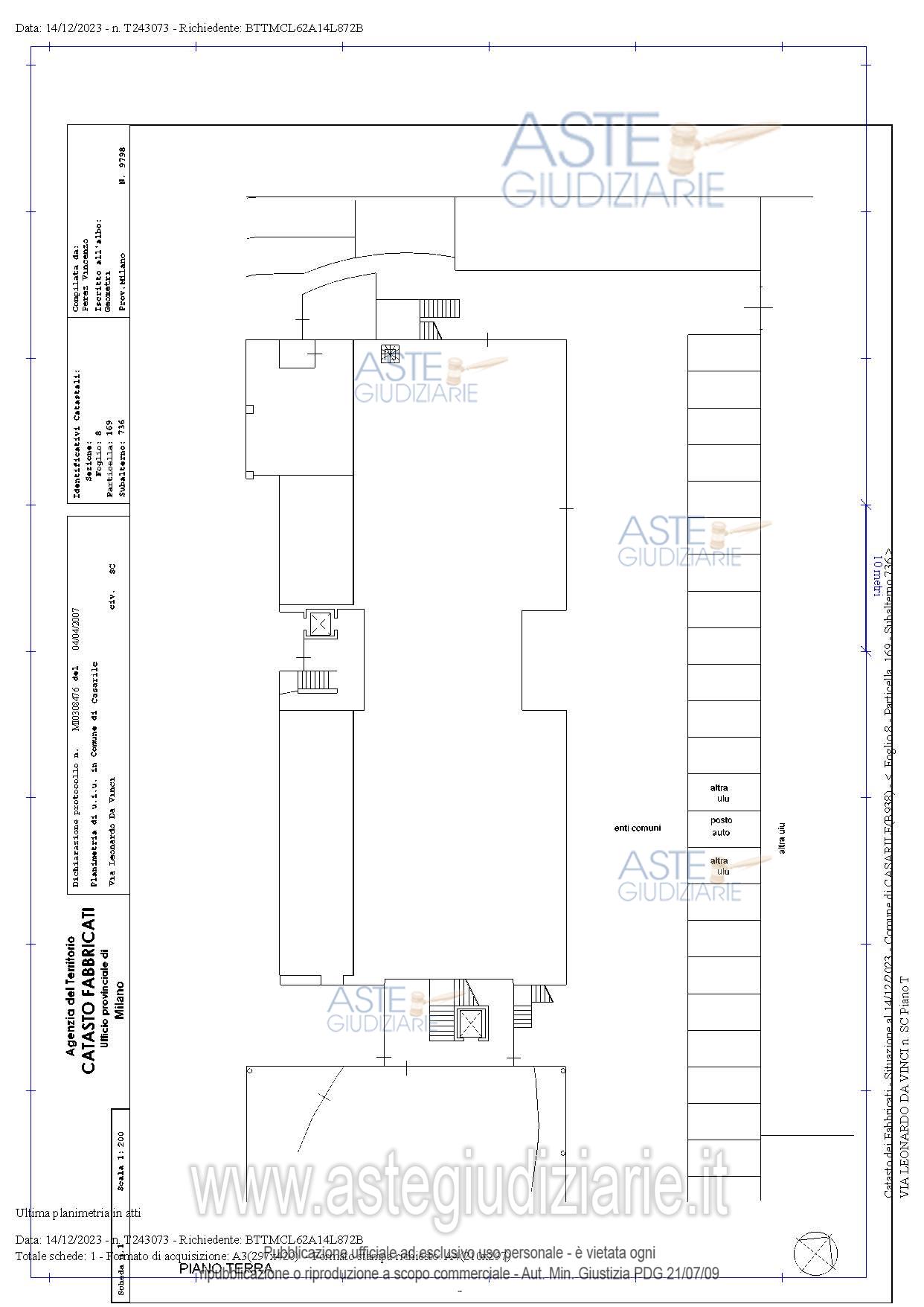
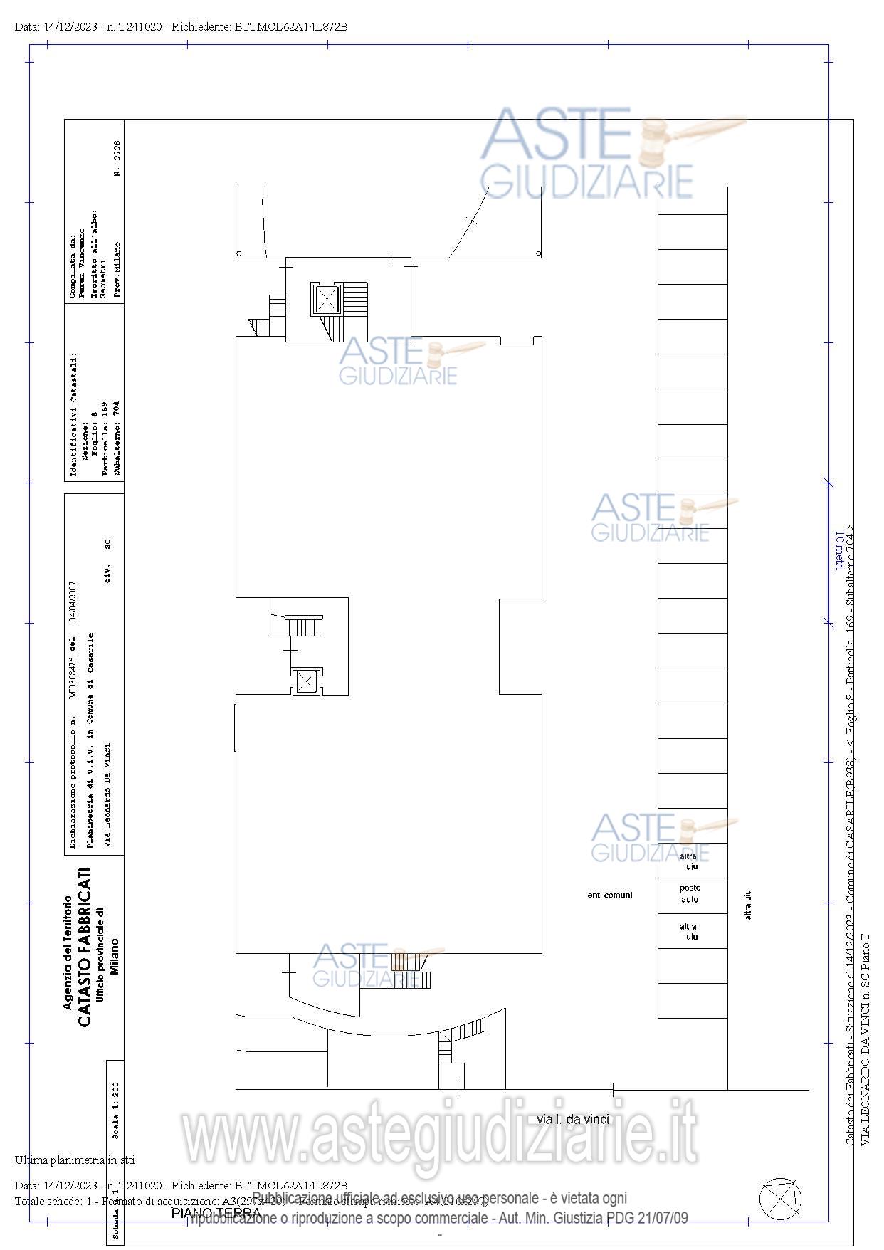
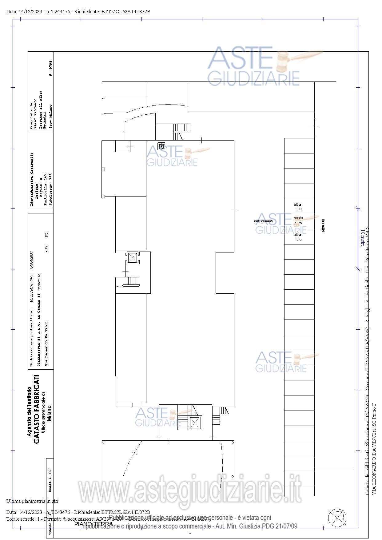
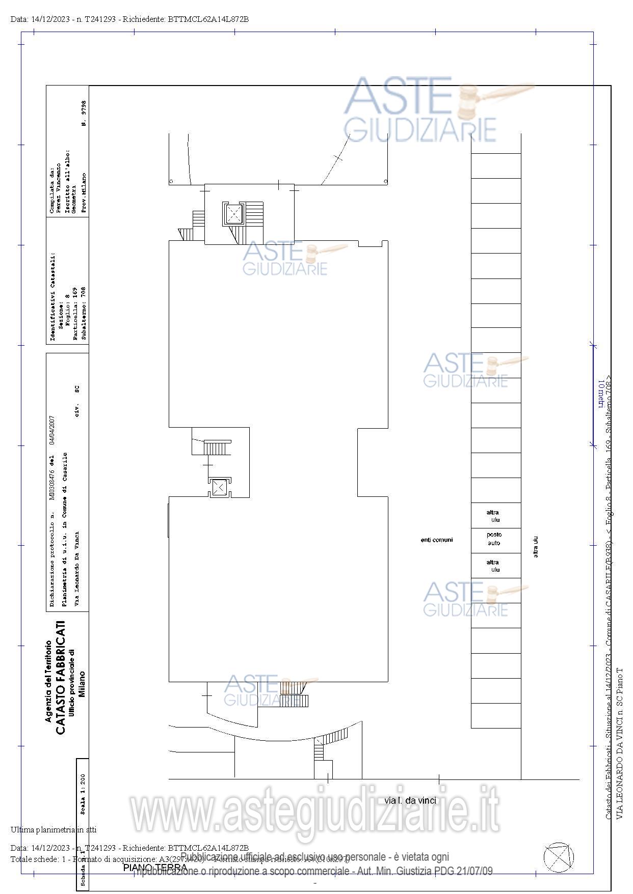
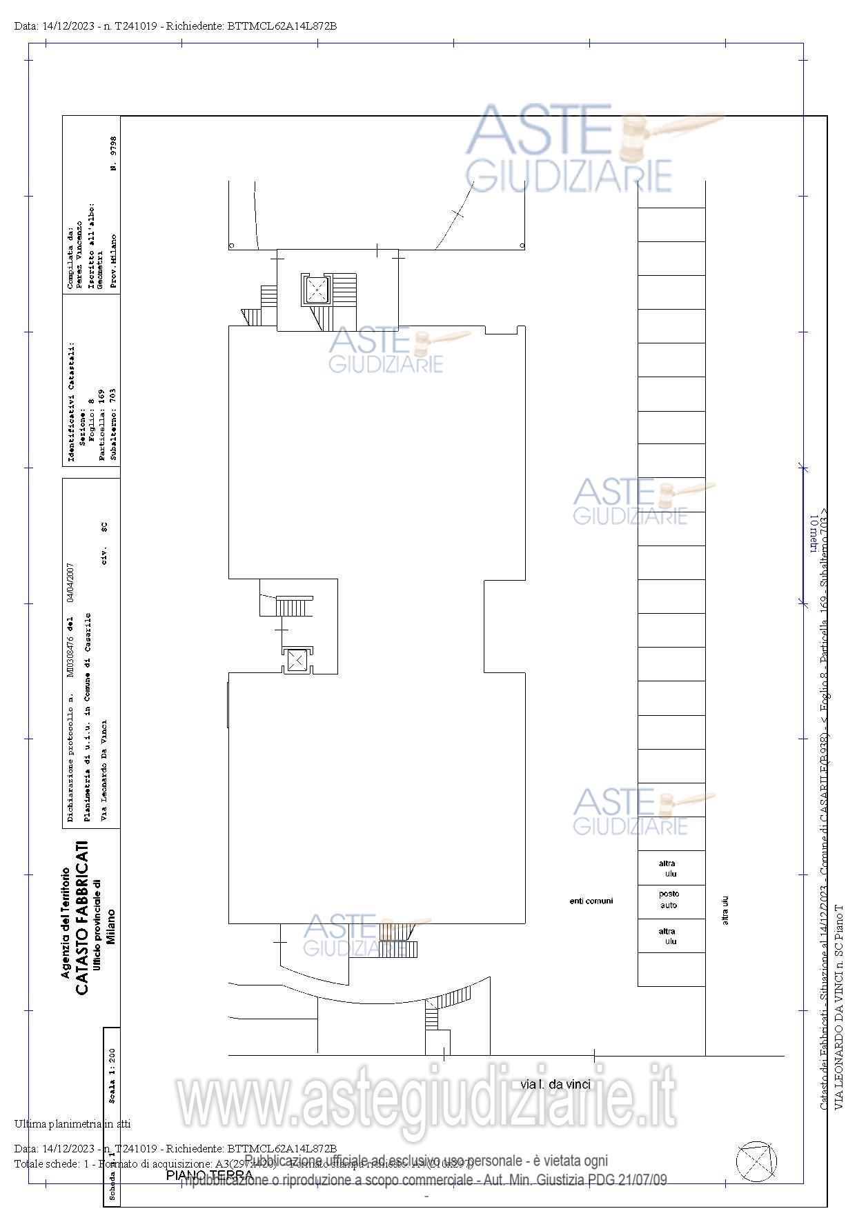
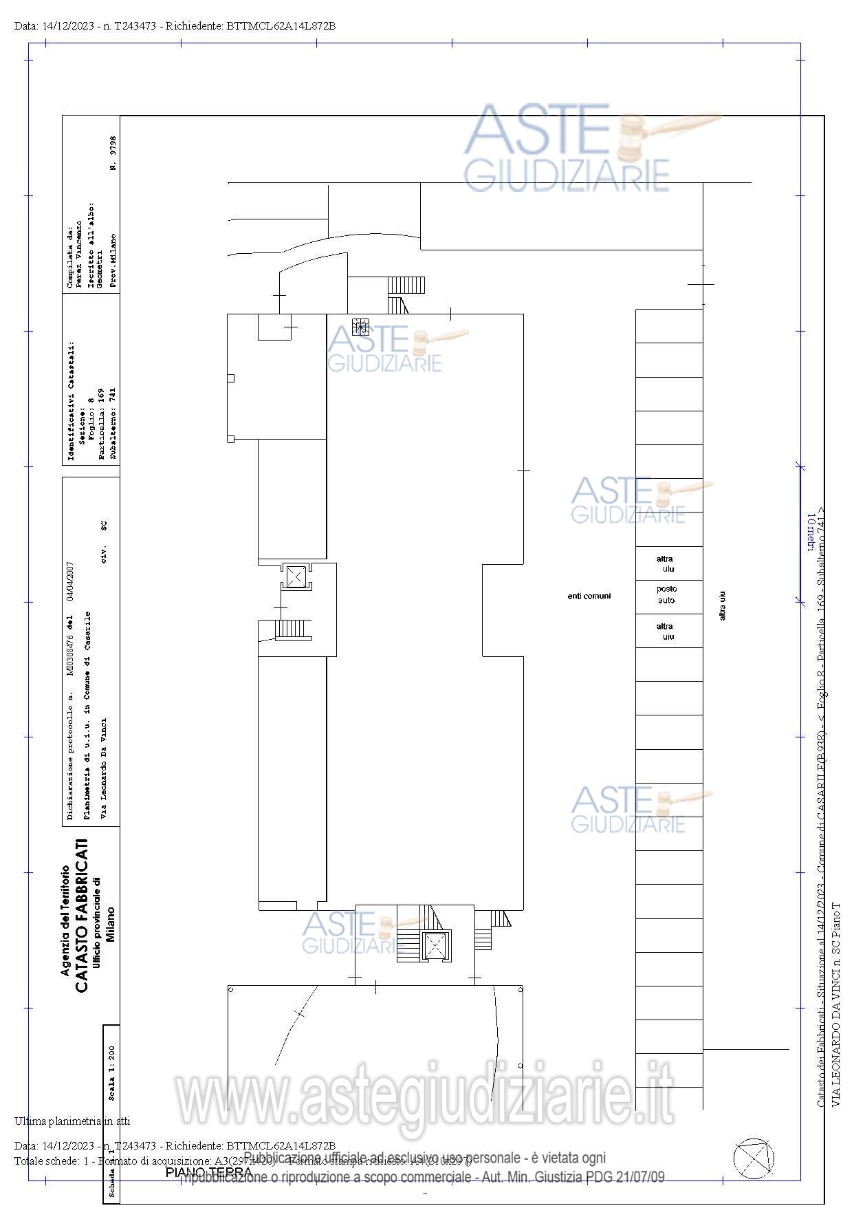
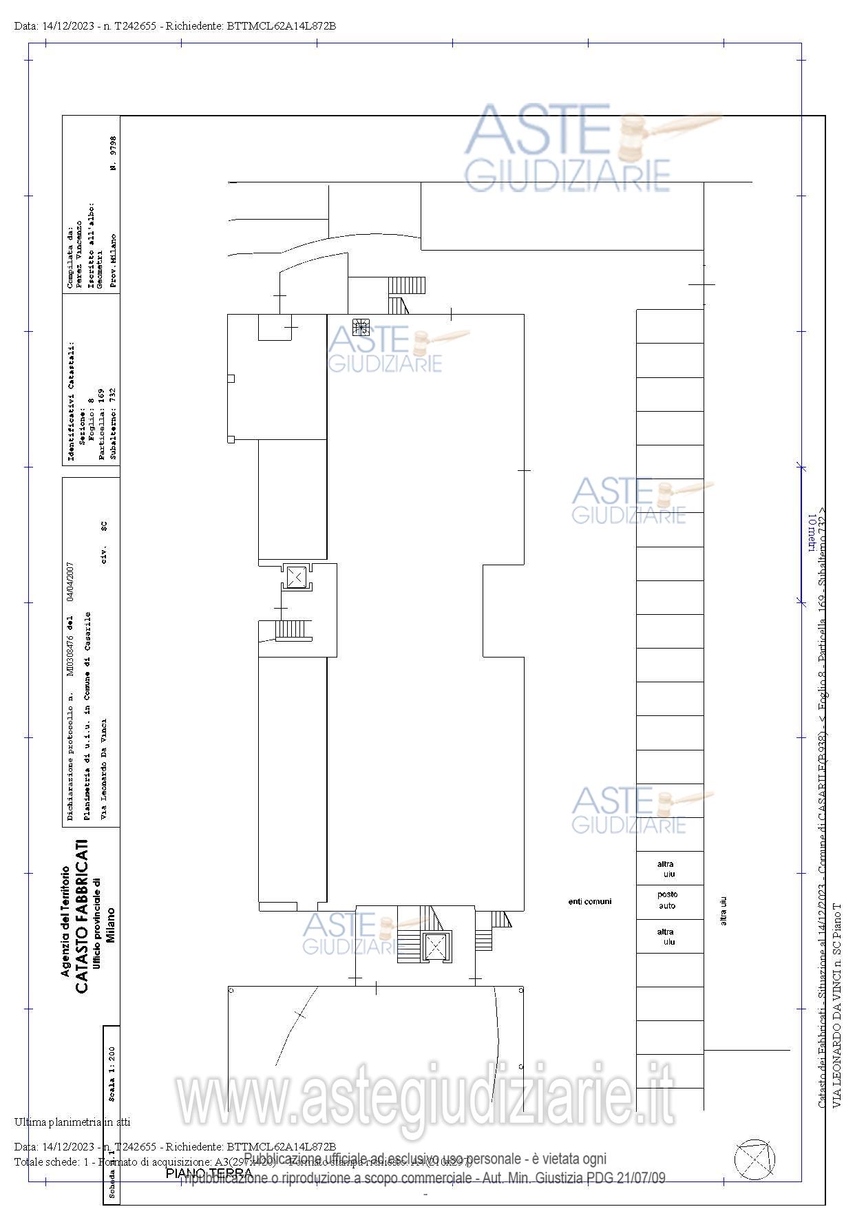
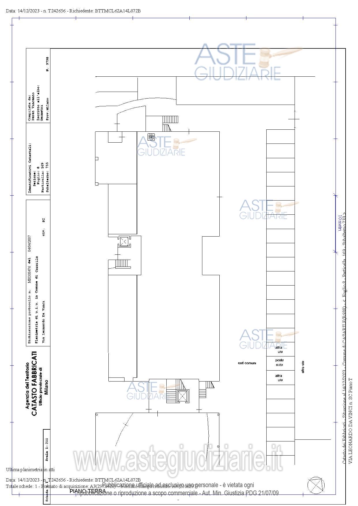
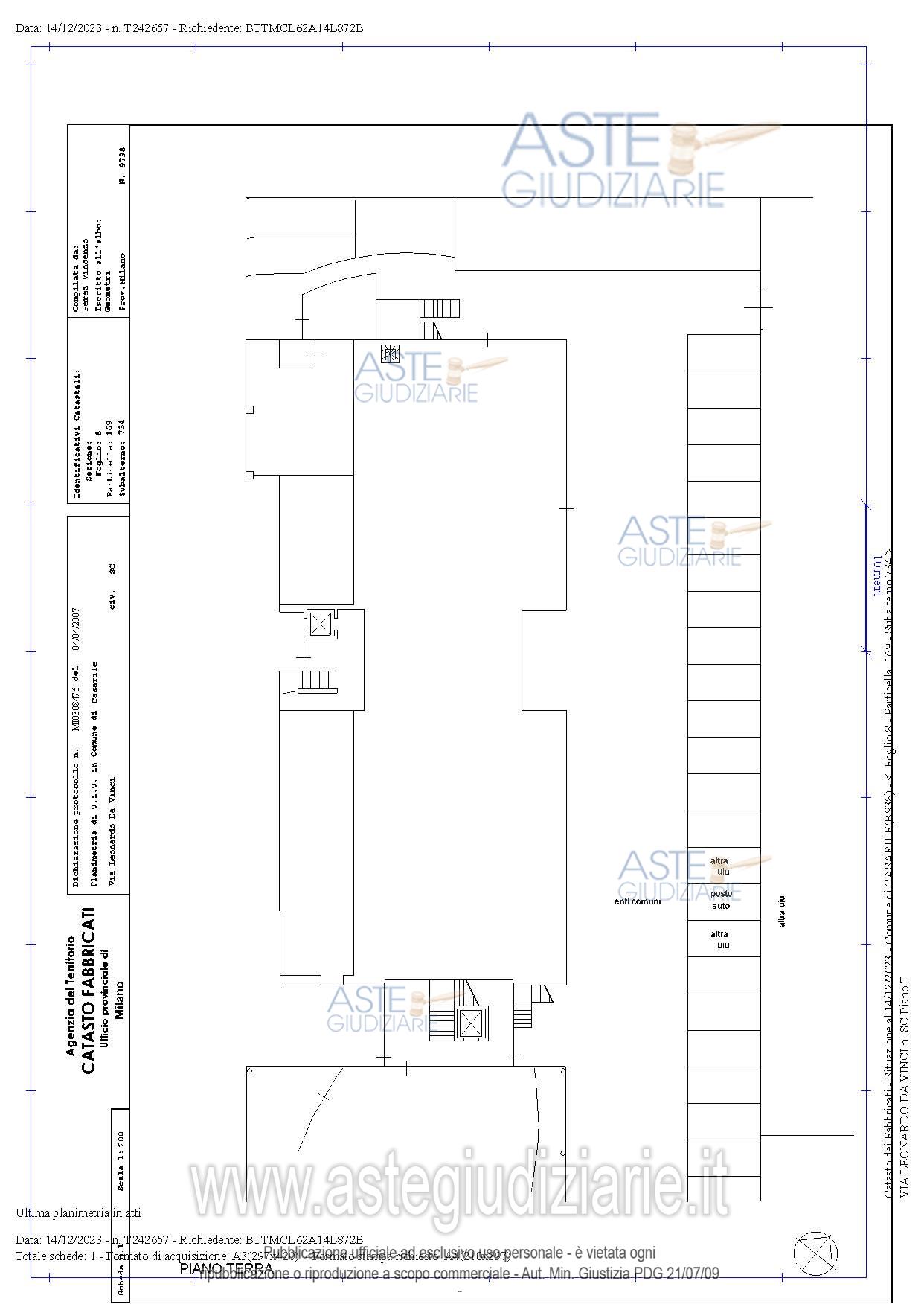
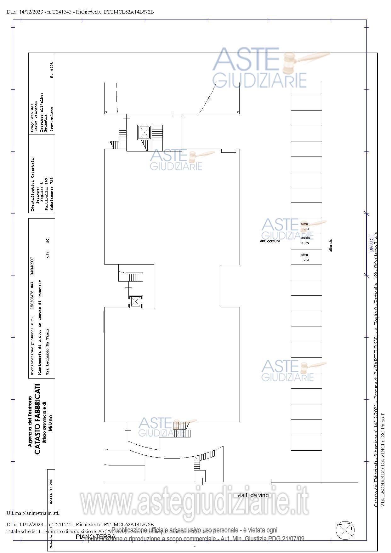
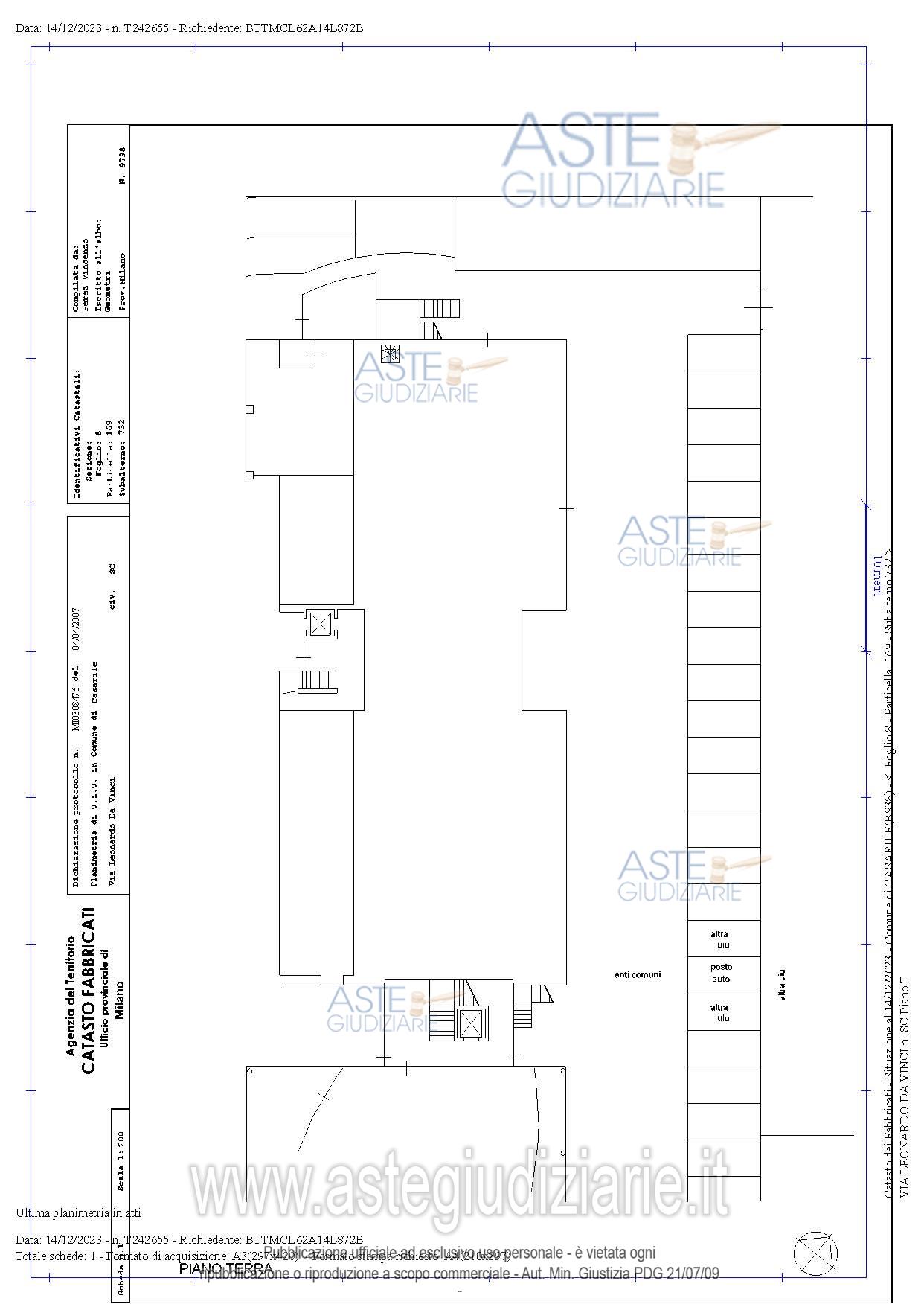
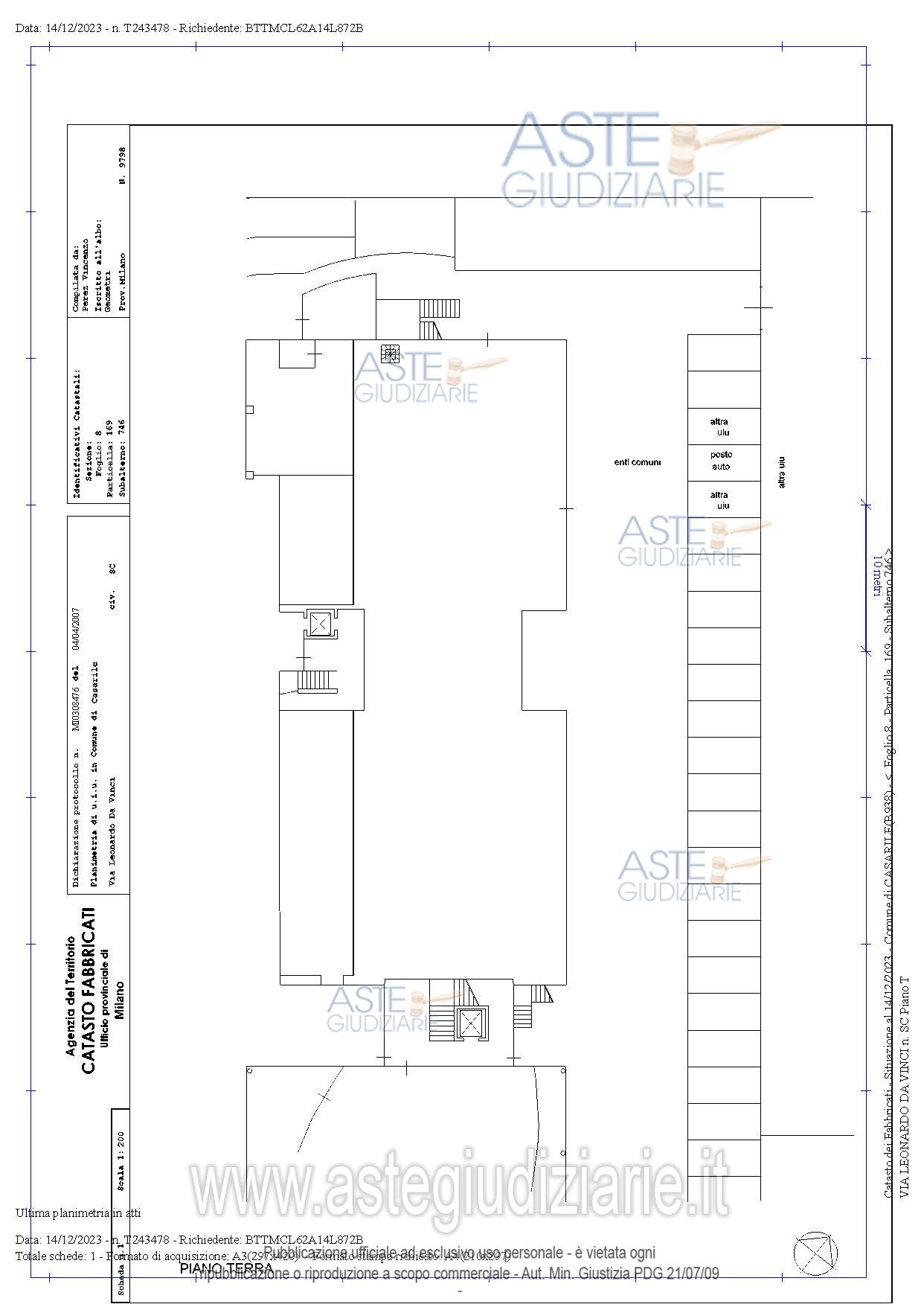
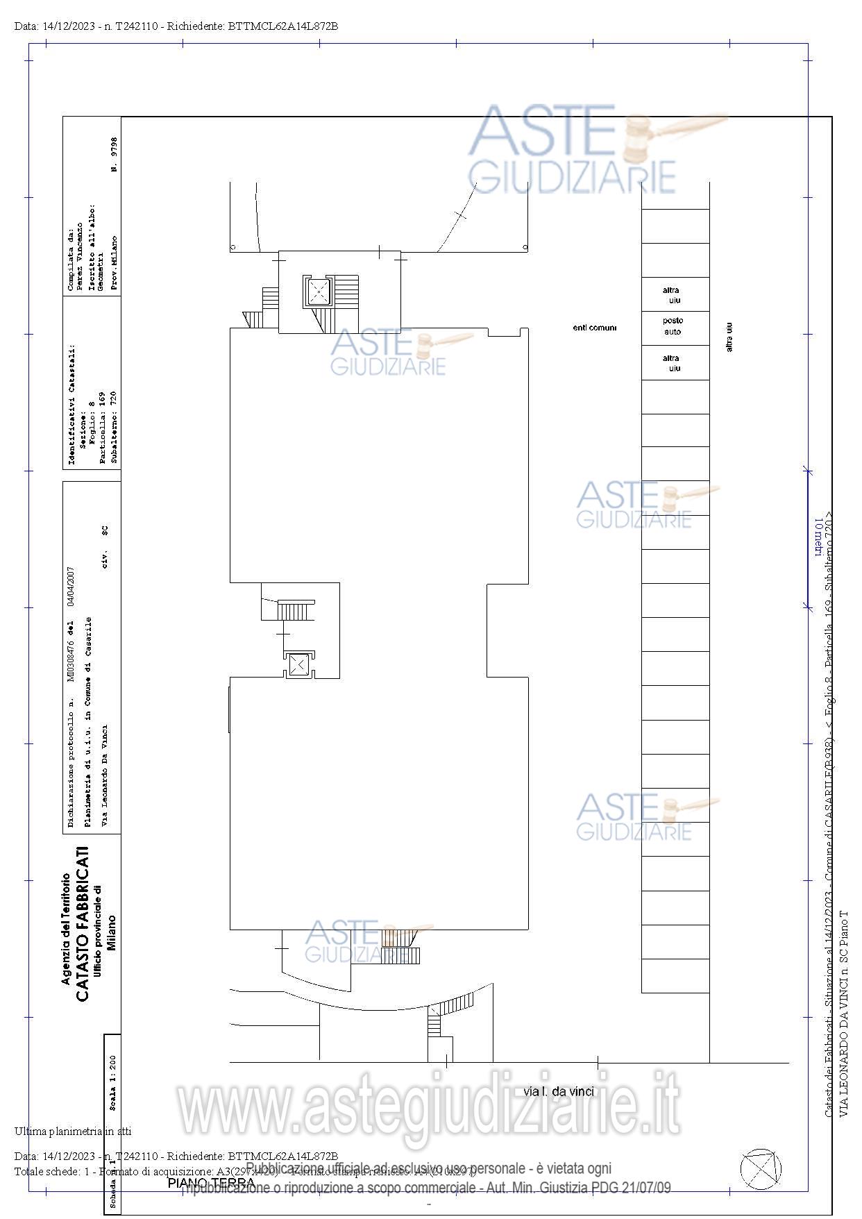
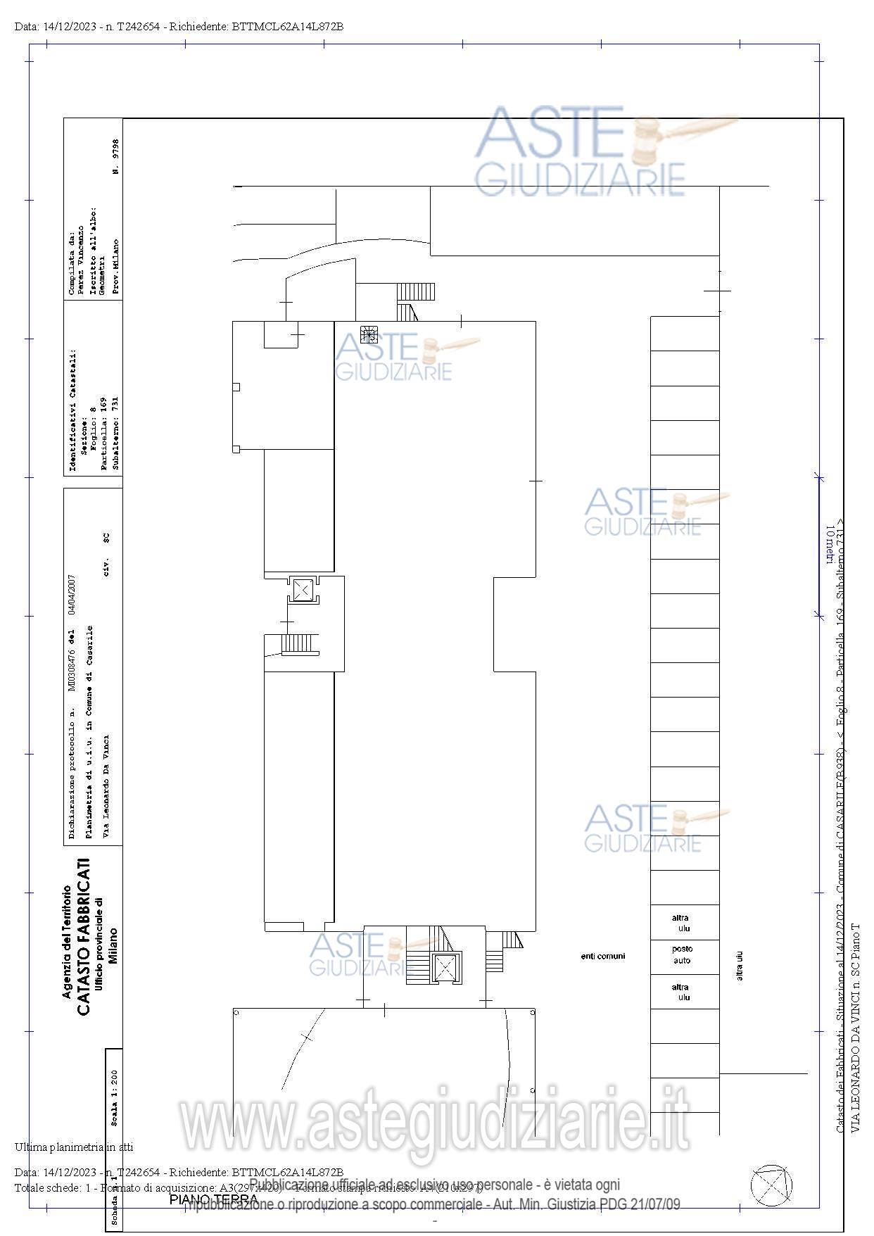
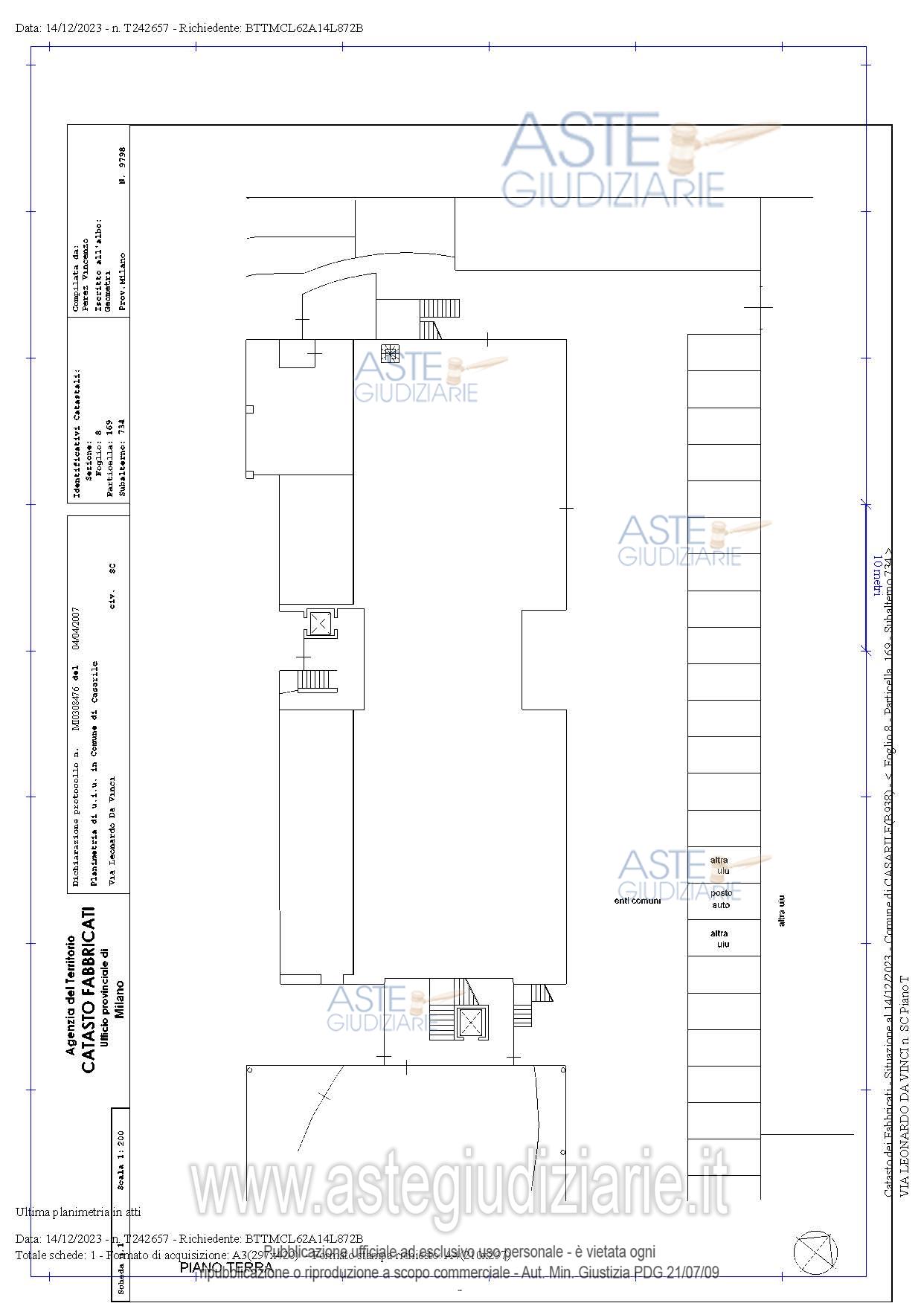
Garage o Posto auto Via Leonardo Da Vinci, 2, 20059 Casarile (MI)

0
€ 59.168
Vendita all'asta Senza incanto, con gara telematica asincrona - LOTTO 9: Quarantanove (49) posti auto scoperti, ciascuno di superficie pari a 12 mq. In cortile delimitato da recinzione di un più ampio complesso immobiliare a destinazione mista. Prezzo base € 59.168,00 (offerta minima € 44.376,00). Data inizio operazioni di vendita: 14/01/2026 ore 16:30. Giudice Francesco Rocca. Professionista delegato alla vendita Avv. Annamaria Silvano - Email "avvsilvano@alice.it"; Tel. 0381903200. Custode Giudiziario Istituto Vendite Giudiziarie Di Pavia - Email "immobiliare@ivgpavialodi.it"; Tel. 0382539013. Rif. Tribunale di Pavia - Esecuzione immobiliare post legge 80 n. 411/2019

Superficie mq
Vani
Bagni
Piano 0

Tipologia di vendita Giudiziaria
Modalità di vendita Asincrona telematica
Termine presentazione offerte 01/01/1900 ore 00:00
Data e ora inizio gara 14/01/2026 ore 16:30
Codice ID astegiudiziarie.it 4324087
0
€ 59.168

Ti interessa questa vendita?

north_east

Clicca qui per essere indirizzato alla scheda sul sito di provenienza

Bene di astegiudiziarie.it