highlight_off
Riferimento annuncio 305392 info

Garage o Posto auto Via Guglielmo Massaia, 100, 15033 Casale Monferrato AL, Italia, 15033 Casale Monferrato (AL)

103,00
0
€ 46.850
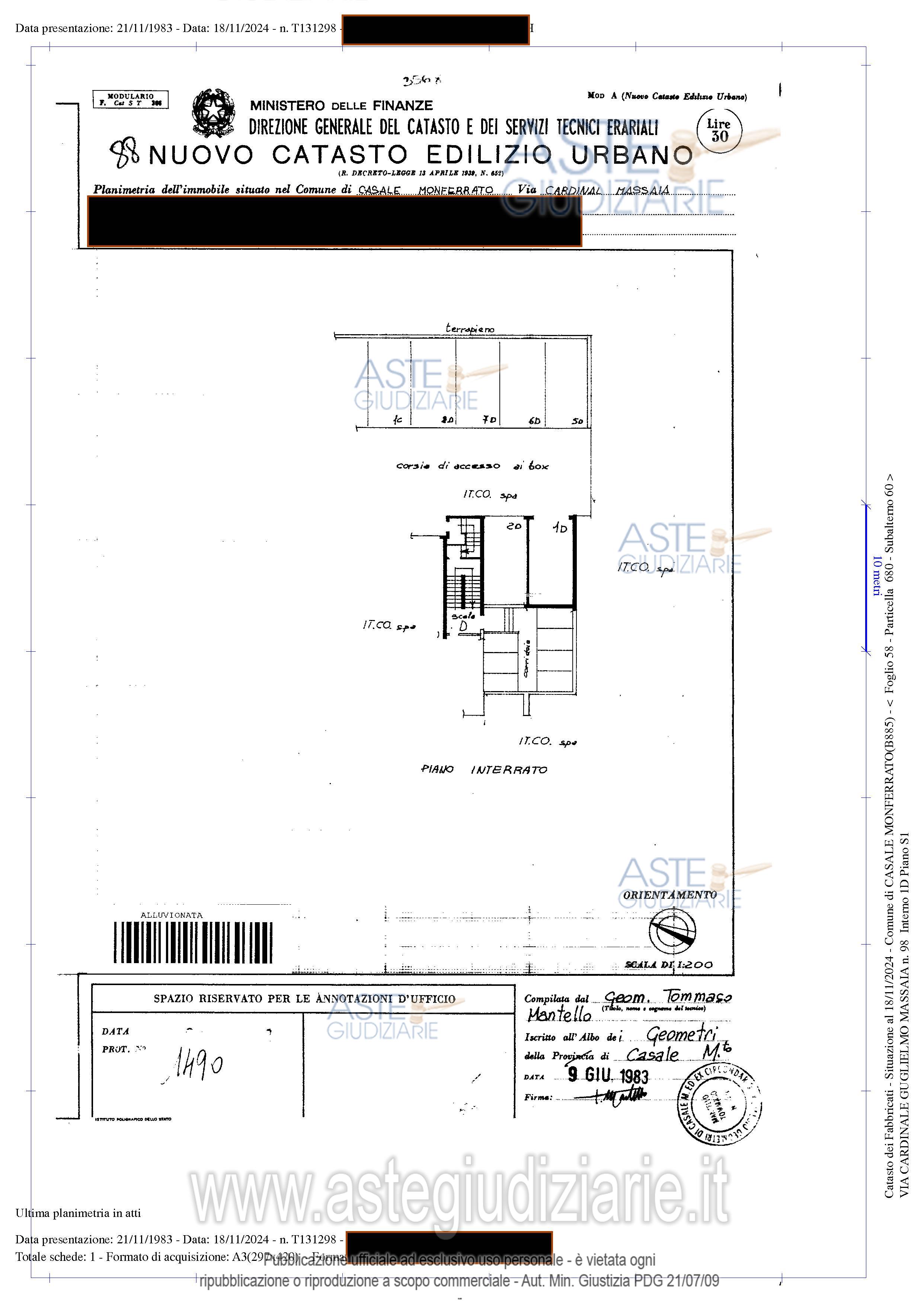
Vendita all'asta Senza incanto, con gara telematica asincrona - LOTTO UNICO: - bene n. 1 - in Comune di Casale M.o, via Cardinale Massaia n.100/C, diritto di proprietà superficiaria (1/1), appartamento al piano T-1PS; mq 84; libero, in buono stato di conservazione, in condominio oggetto di riqualificazione energetica (Superbonus 110%), composto da soggiorno, cucina, due camere da letto, due bagni, piccola zona passante/corridoio, ripostiglio, balcone coperto (mq 9,84); vano cantina (mq 4); bene n. 2 - diritto di proprietà superficiaria (1/1) box auto mq 19 libero . Prezzo base € 46.850,00 (offerta minima € 35.137,50). Data inizio operazioni di vendita: 15/10/2025 ore 12:00. Professionista delegato alla vendita Avv. Maria Chiara Bonelli - Email "avvocatomcbonelli@gmail.com"; Cell. 3336092078; Tel. 0142233446. Custode Giudiziario Avv. Maria Chiara Bonelli - Email "avvocatomcbonelli@gmail.com"; Cell. 3336092078; Tel. 0142233446. Rif. Tribunale di Vercelli - Espropriazione immobiliare (cartabia) n. 127/2024

Superficie 103,00 mq
Vani
Bagni
Piano 0

Tipologia di vendita Giudiziaria
Modalità di vendita Asincrona telematica
Termine presentazione offerte 14/10/2025 ore 12:00
Data e ora inizio gara 15/10/2025 ore 12:00
Codice ID astegiudiziarie.it 4328088
103,00
0
€ 46.850

Ti interessa questa vendita?

north_east

Clicca qui per essere indirizzato alla scheda sul sito di provenienza

Bene di astegiudiziarie.it