highlight_off
Riferimento annuncio 231076 info

Garage o Posto auto Via Caduti di Nassirya, località Bordini, 15060 Capriata d'Orba (AL)

259,31
0
€ 71.597
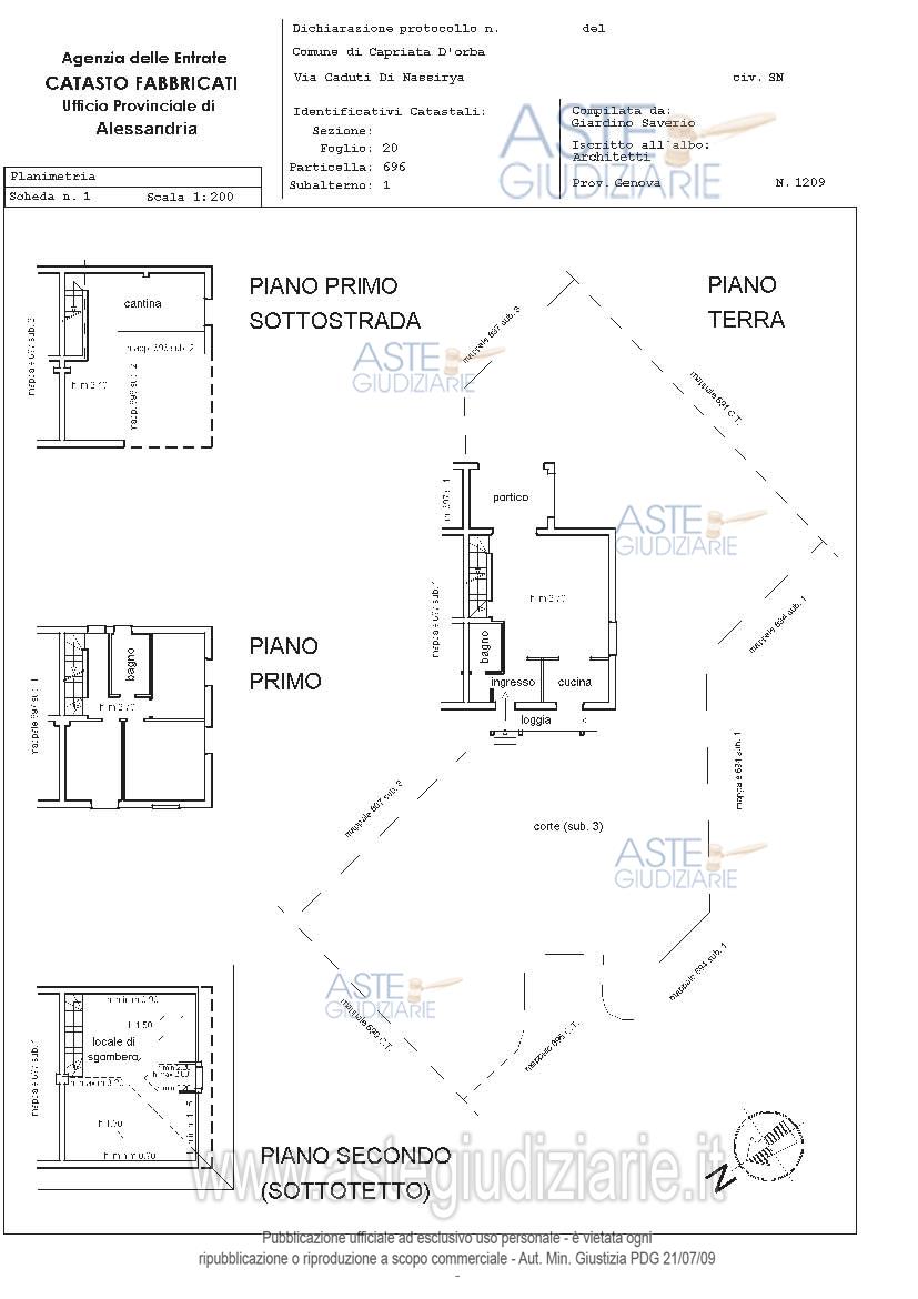
Vendita all'asta Senza incanto, con gara telematica sincrona - LOTTO 52: Per la piena ed intera proprietà: Appartamento ubicato in Via Caduti di Nassirya n. snc, località Bordini, della superficie commerciale di 203,66 mq disposto su quattro livelli ed una corte esterna; box singolo composto da superficie a parcheggio pertinenziale che sviluppa una superficie commerciale di 12,65Mq. Per ½ della piena proprietà: la strada di accesso all’appartamento. Prezzo base € 71.597,00 (offerta minima € 71.597,00). Data vendita 26/03/2026 ore 12:00. Giudice Dott. Roberto Braccialini. Curatore Dott. Stefania Chiaruttini. Rif. Tribunale di Genova - Fallimentare (nuovo rito) n. 98/2015
Vendita all'asta Senza incanto, con gara telematica sincrona - LOTTO 52: Für den vollen und ungeteilten Eigentum: Wohnung in der Via Caduti di Nassirya Nr. snc, Ortsteil Bordini, mit einer Geschäftsfläche von 203,66 qm auf vier Ebenen und einem Außengelände; Einzelgarage bestehend aus einem Stellplatz mit einer Geschäftsfläche von 12,65 qm. Für ½ des vollen Eigentums: Der Zugangsweg zur Wohnung. Prezzo base € 71.597,00 (offerta minima € 71.597,00). Data vendita 26/03/2026 ore 12:00. Giudice Dott. Roberto Braccialini. Curatore Dott. Stefania Chiaruttini. Rif. Tribunale di Genova - Fallimentare (nuovo rito) n. 98/2015
Vendita all'asta Senza incanto, con gara telematica sincrona - LOTTO 52: For full and entire ownership: Apartment located at Via Caduti di Nassirya no. snc, in the locality of Bordini, with a commercial area of 203.66 square meters spread over four levels and an external courtyard; single garage consisting of a parking area that develops a commercial area of 12.65 square meters. For ½ of the full ownership: the access road to the apartment. Prezzo base € 71.597,00 (offerta minima € 71.597,00). Data vendita 26/03/2026 ore 12:00. Giudice Dott. Roberto Braccialini. Curatore Dott. Stefania Chiaruttini. Rif. Tribunale di Genova - Fallimentare (nuovo rito) n. 98/2015
Vendita all'asta Senza incanto, con gara telematica sincrona - LOTTO 52: Pour la pleine et entière propriété: Appartement situé Via Caduti di Nassirya n. snc, à Bordini, d'une surface commerciale de 203,66 mètres carrés répartis sur quatre niveaux et une cour extérieure ; un garage individuel composé d'une surface de stationnement attenante développant une surface commerciale de 12,65m2. Pour la moitié de la pleine propriété: l'accès à l'appartement. Prezzo base € 71.597,00 (offerta minima € 71.597,00). Data vendita 26/03/2026 ore 12:00. Giudice Dott. Roberto Braccialini. Curatore Dott. Stefania Chiaruttini. Rif. Tribunale di Genova - Fallimentare (nuovo rito) n. 98/2015
Vendita all'asta Senza incanto, con gara telematica sincrona - LOTTO 52: На полную и исключительную собственность: Квартира, расположенная на улице Кадути-ди-Нассирья, д.н.с., в поселке Бордини, общей коммерческой площадью 203,66 кв.м, расположенная на четырех уровнях и имеющая внешний дворик; одноместный гараж, включающий в себя парковочную площадь площадью 12,65 кв.м. На ½ полной собственности: дорога, ведущая к квартире. Prezzo base € 71.597,00 (offerta minima € 71.597,00). Data vendita 26/03/2026 ore 12:00. Giudice Dott. Roberto Braccialini. Curatore Dott. Stefania Chiaruttini. Rif. Tribunale di Genova - Fallimentare (nuovo rito) n. 98/2015

Superficie 259,31 mq
Vani
Bagni
Piano 0

Tipologia di vendita Giudiziaria
Modalità di vendita Sincrona telematica
Termine presentazione offerte 25/03/2026 ore 12:00
Data e ora inizio gara 26/03/2026 ore 12:00
Codice ID astegiudiziarie.it 4276591
259,31
0
€ 71.597

Ti interessa questa vendita?

north_east

Clicca qui per essere indirizzato alla scheda sul sito di provenienza

Bene di astegiudiziarie.it