highlight_off
Riferimento annuncio 294826 info

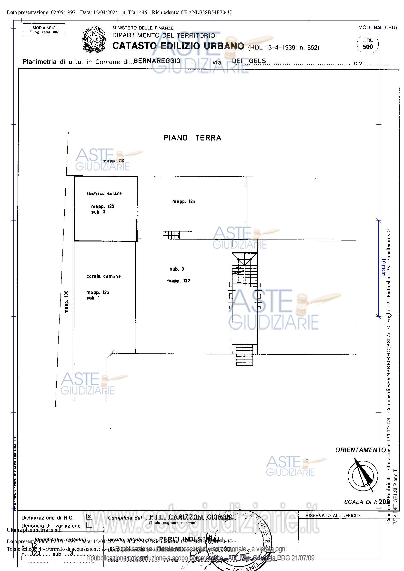
Garage o Posto auto Via Dei Gelsi 3, 20044 Bernareggio (MB)

0
€ 18.500
Vendita all'asta Senza incanto, con gara telematica sincrona - LOTTO 10: A) box singolo, P.S1, sup. comm. mq. 17,00; B) box singolo, P.S1, sup. comm. mq. 18,00; C) posto auto nel cortile, P.S1, sup. comm. mq. 8,00; D) posto auto su strada, P.T., sup. comm. mq. 10,00; E) box singolo, P.S1, sup. comm. mq. 18,00; F) lastrico solare a copertura box ai punti B) ed E); G) cantina, P.S1, sup. comm. mq. 10,00. Prezzo base € 18.500,00 (offerta minima € 13.875,00). Data vendita 05/12/2025 ore 11:30. Giudice Francesco Ambrosio. Professionista delegato alla vendita Dott. Maria Cristina Abbiati - Email "mc.abbiati@studiodottabbiati.it"; Tel. 0362343365. Custode Giudiziario Dott. Maria Cristina Abbiati - Email "mc.abbiati@studiodottabbiati.it"; Tel. 0362343365. Rif. Tribunale di Monza - Esecuzione immobiliare post legge 80 n. 363/2023

Superficie mq
Vani
Bagni
Piano 0

Tipologia di vendita Giudiziaria
Modalità di vendita Sincrona telematica
Termine presentazione offerte 03/12/2025 ore 13:00
Data e ora inizio gara 05/12/2025 ore 11:30
Codice ID astegiudiziarie.it 4319846
0
€ 18.500

Ti interessa questa vendita?

north_east

Clicca qui per essere indirizzato alla scheda sul sito di provenienza

Bene di astegiudiziarie.it