highlight_off
Riferimento annuncio 253140 info

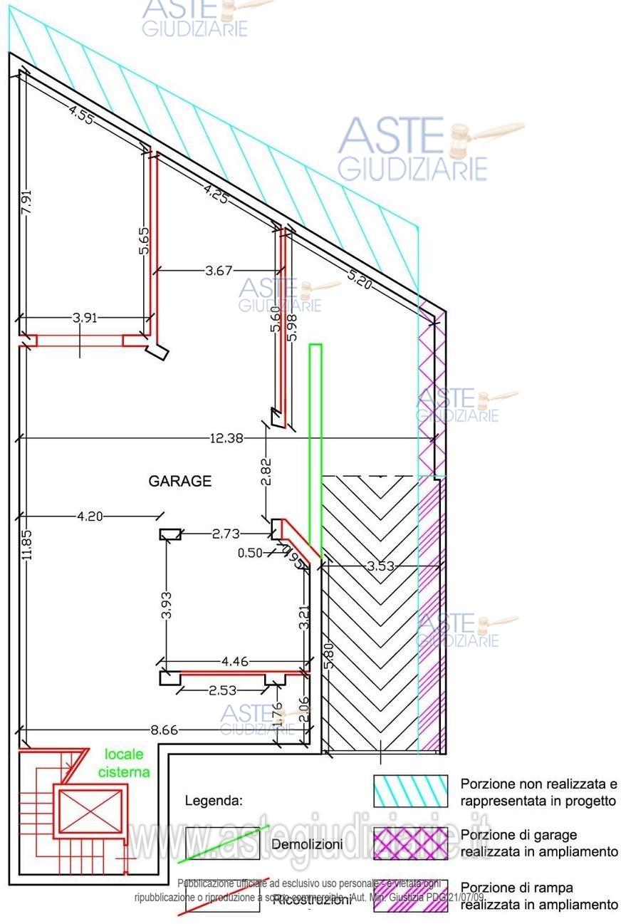
Garage o Posto auto Via Gian Lorenzo Bernini n. 5/D, 90011 Bagheria (PA)

0
€ 32.463
Vendita all'asta Senza incanto, con gara telematica sincrona - LOTTO UNICO: autorimessa sita in Bagheria (Pa), Via Gian Lorenzo Bernini n. 5/D, piano S-1. Prezzo base € 32.463,00 (offerta minima € 24.347,00). Data vendita 12/12/2025 ore 11:00. Professionista delegato alla vendita Avv. Daniele Sinatra - Email "danielesinatra@hotmail.com". Custode Giudiziario Avv. Daniele Sinatra - Email "danielesinatra@hotmail.com". Rif. Tribunale di Termini Imerese - Esecuzione immobiliare post legge 80 n. 83/2021

Superficie mq
Vani
Bagni
Piano 0

Tipologia di vendita Giudiziaria
Modalità di vendita Sincrona telematica
Termine presentazione offerte 01/01/1900 ore 00:00
Data e ora inizio gara 12/12/2025 ore 11:00
Codice ID astegiudiziarie.it 4287498
0
€ 32.463

Ti interessa questa vendita?

north_east

Clicca qui per essere indirizzato alla scheda sul sito di provenienza

Bene di astegiudiziarie.it