Riferimento annuncio 272766
Fondo commerciale Via Giacomo Leopardi, 57023 Cecina (LI)
€ 616.896
Il complesso edilizio è posto all'interno di un'area residenziale e commerciale sviluppato su quattro piani, di cui tre fuori terra ed una interrato, composto da:
sul fronte principale è presente un’area esterna adibita alla distribuzione carburanti e a parcheggio;
Fondo connesso all’attività di rifornimento carburanti e destinato ad officina meccanica per riparazioni auto;
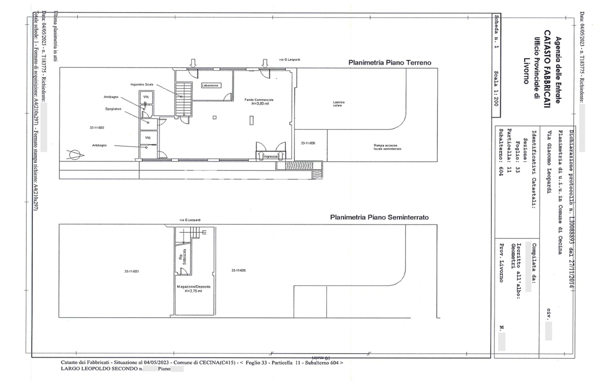
Fondo sviluppato su due livelli (piano terreno e piano seminterrato) e composto da un locale adibito alla ristorazione, un locale laboratorio/confezionamento prodotti e da un blocco servizi igienici e spogliatoio al piano terra, ampio magazzino al piano seminterrato;
Magazzino di mq. catastali 159 al piano primo seminterrato, con accesso da scala comune;
Magazzino di mq. catastale 13 al piano primo seminterrato.
Stato di occupazione: è in essere regolare contratto di locazione avente ad oggetto le unità immobiliari identificate catastalmente al Foglio 33, particella 11, subalterno 2 e subalterno 13. Il contratto ha durata novennale decorrente dall’11/11/2012, con prossima scadenza al 10/11/2030, e canone annuo pari ad euro 44.469,73.
Documentazione in fase di analisi.
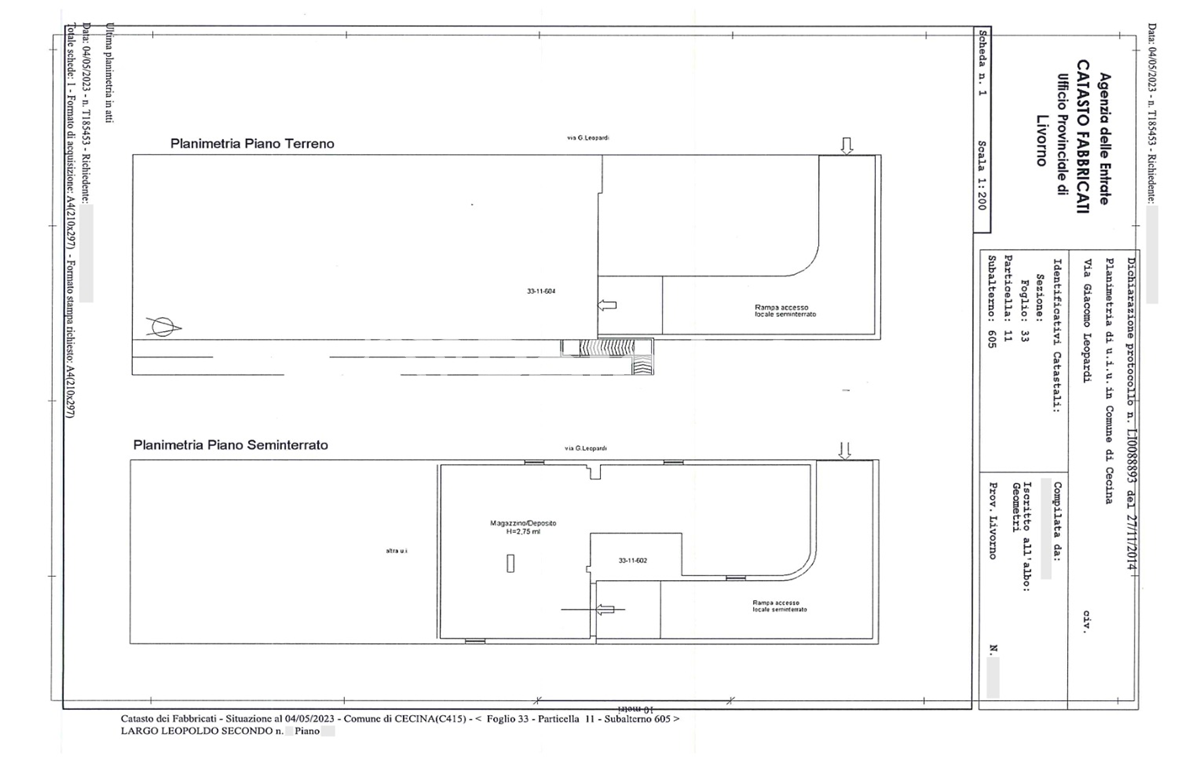
Fondo sviluppato su due livelli (piano terreno e piano seminterrato) e composto da un locale adibito alla ristorazione, un locale laboratorio/confezionamento prodotti e da un blocco servizi igienici e spogliatoio al piano terra, ampio magazzino al piano seminterrato;
Magazzino di mq. catastali 159 al piano primo seminterrato, con accesso da scala comune;
Magazzino di mq. catastale 13 al piano primo seminterrato.
Stato di occupazione: è in essere regolare contratto di locazione avente ad oggetto le unità immobiliari identificate catastalmente al Foglio 33, particella 11, subalterno 2 e subalterno 13. Il contratto ha durata novennale decorrente dall’11/11/2012, con prossima scadenza al 10/11/2030, e canone annuo pari ad euro 44.469,73.
Documentazione in fase di analisi.
The building complex is located within a residential and commercial area developed on four floors, three above ground and one below ground, comprising the following: on the main front, there is an external area used for fuel distribution and parking; a space connected to the fuel supply activity and intended for a car repair workshop; a space developed on two levels (ground floor and basement) consisting of a restaurant area, a laboratory/packaging area, and toilet and changing facilities on the ground floor, with a large warehouse in the basement; a warehouse of 159 square meters on the first basement floor, accessed by a common staircase; a warehouse of 13 square meters on the first basement floor. Occupancy status: there is a valid lease contract for the real estate units identified in the land registry at Sheet 33, parcel 11, sub-fund 2, and sub-fund 13. The contract has a term of nine years starting from 11/11/2012, with the next expiry on 10/11/2030, and an annual rent of 44,469.73 euros. Documentation is currently under analysis.
| Tipologia di vendita | Privata |
|---|---|
| Modalità di vendita | Asincrona telematica |
| Termine presentazione offerte | 25/05/2026 ore 12:00 |
| Data e ora inizio gara | 27/05/2026 ore 09:00 |