Riferimento annuncio 304942
Fabbricato Via Montebello, 72100 Brindisi (BR)
30
11698
32
€ 700.000
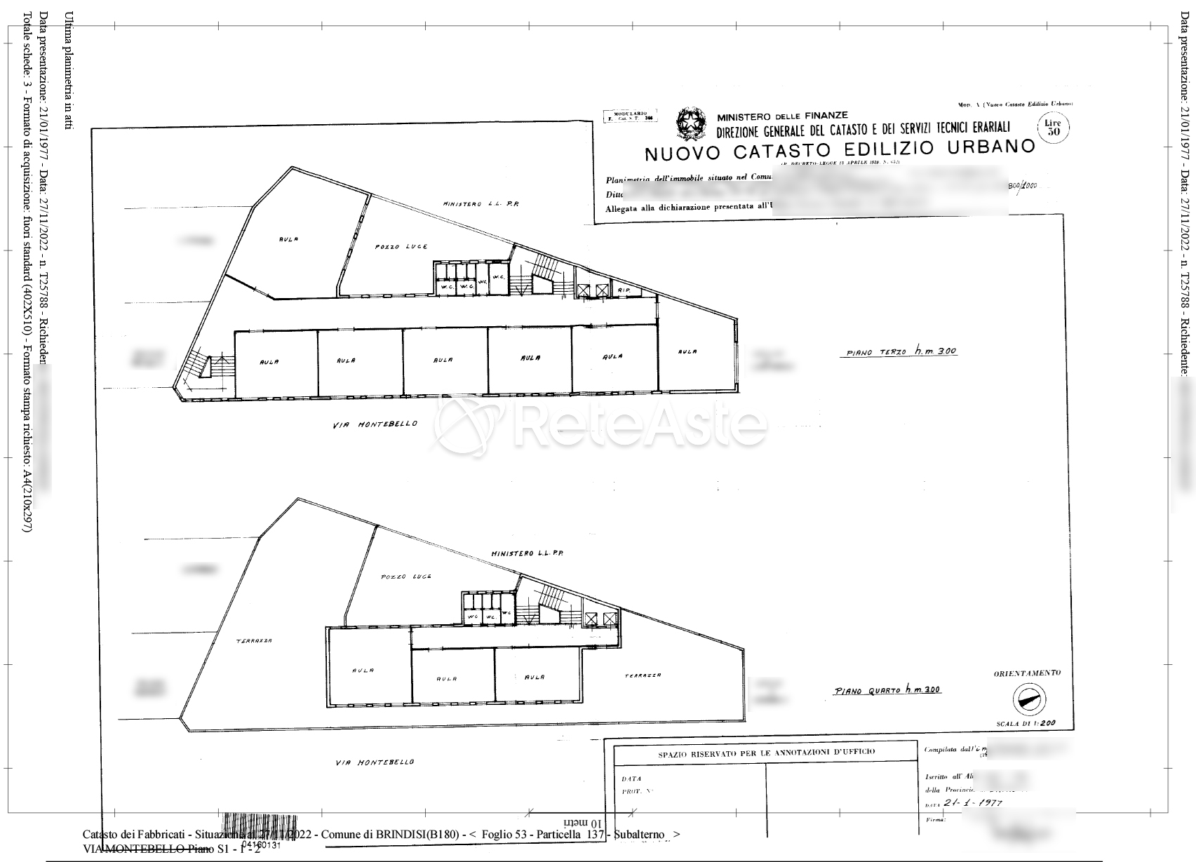
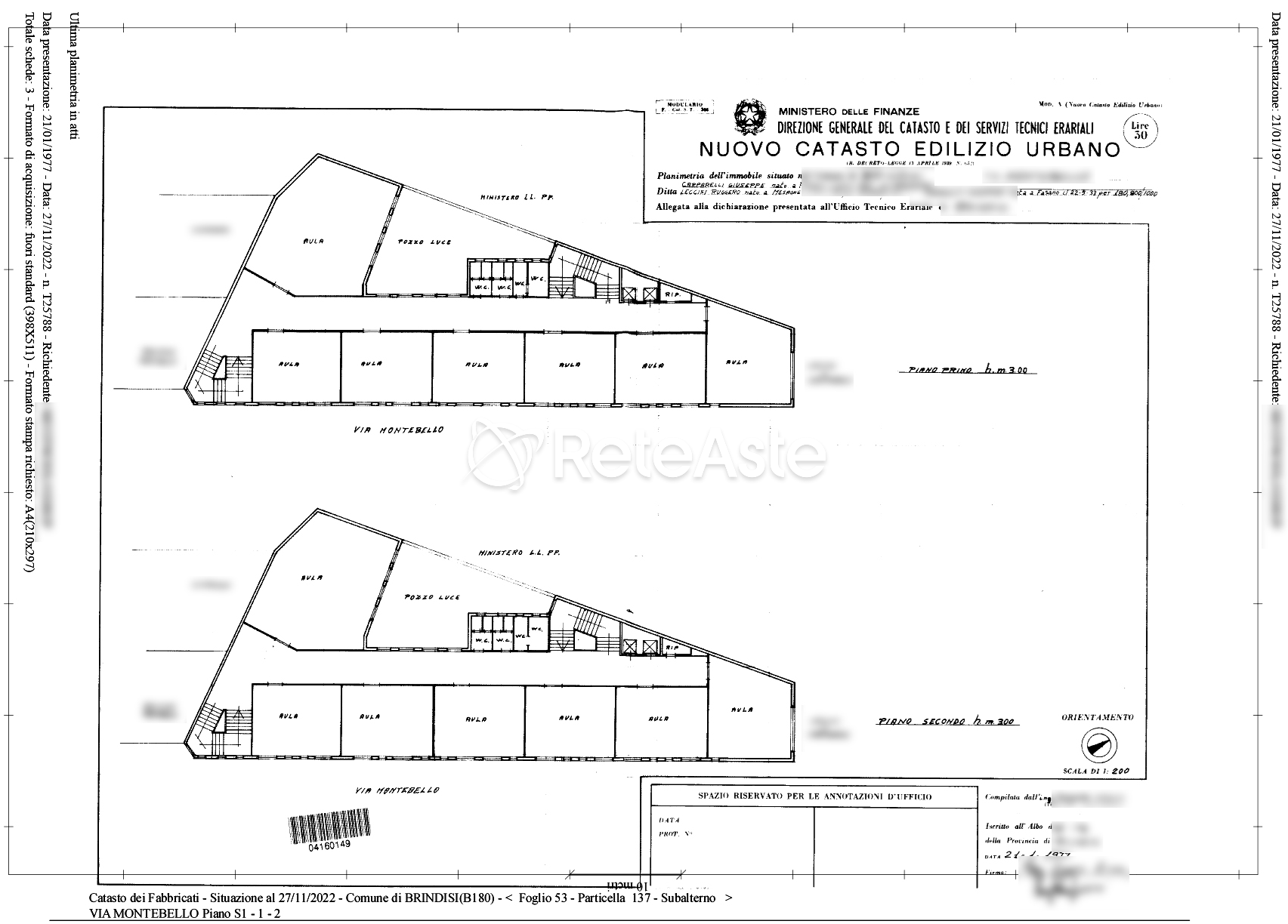
Edificio realizzato tra il 1975 e il 1976, utilizzato fino al 2005 come istituto scolastico superiore e attualmente è inutilizzato. La struttura si sviluppa su cinque piani fuori terra e un piano interrato, con due accessi su via Montebello, per una superficie catastale complessiva di circa 11.700 mq così suddivisi:
L’immobile è in cemento armato con copertura piana. Lo stato di conservazione è discreto per la struttura, mentre gli interni necessitano di interventi di riqualificazione, essendo presenti infiltrazioni dalla copertura e segni di deterioramento delle pitture esterne. Grazie alla sua ampia metratura e alla versatilità degli spazi, questo immobile offre un’ottima opportunità di riqualificazione e valorizzazione.
Con un cambio di destinazione d’uso, potrebbe essere trasformato in un moderno complesso residenziale, per la realizzazione di circa 20 unità immobiliare di metratura varia, tre locali commerciali al piano terra, e 20 posti auto coperti al piano interrato, un grande giardino pensile condominiale all'ultimo piano. un valore aggiunto per futuri residenti o investitori.
Un progetto di sviluppo che combina funzionalità e potenziale di crescita in un’area strategica della città.
- Piano terra: uffici, sala riunioni e servizi igienici per un totale di 697 mq.
- Piani primo, secondo e terzo: aule didattiche e ulteriori servizi;
- Piano quarto: ulteriori aule e ampie terrazze.
- Piano interrato: locali deposito, magazzini e vani tecnici.
L’immobile è in cemento armato con copertura piana. Lo stato di conservazione è discreto per la struttura, mentre gli interni necessitano di interventi di riqualificazione, essendo presenti infiltrazioni dalla copertura e segni di deterioramento delle pitture esterne. Grazie alla sua ampia metratura e alla versatilità degli spazi, questo immobile offre un’ottima opportunità di riqualificazione e valorizzazione.
Con un cambio di destinazione d’uso, potrebbe essere trasformato in un moderno complesso residenziale, per la realizzazione di circa 20 unità immobiliare di metratura varia, tre locali commerciali al piano terra, e 20 posti auto coperti al piano interrato, un grande giardino pensile condominiale all'ultimo piano. un valore aggiunto per futuri residenti o investitori.
Un progetto di sviluppo che combina funzionalità e potenziale di crescita in un’area strategica della città.
Destinazioni alternative: studentato; senior housing; turistico ricettiva.
L’immobile si trova nel quartiere Santa Chiara, un’area periferica ma ben collegata al centro di Brindisi grazie alla presenza di numerosi mezzi pubblici.
La sua posizione strategica, a soli 200 metri dalla Strada Statale 16 per Lecce e a 170 metri dal parco comunale, garantisce un facile accesso alle principali vie di comunicazione e a una delle più grandi aree verdi della città. Il quartiere ha una vocazione prevalentemente residenziale, arricchita dalla presenza di edifici pubblici e servizi essenziali, rendendolo una zona ideale per nuove destinazioni d’uso e progetti di riqualificazione.
L’immobile si trova nel quartiere Santa Chiara, un’area periferica ma ben collegata al centro di Brindisi grazie alla presenza di numerosi mezzi pubblici.
La sua posizione strategica, a soli 200 metri dalla Strada Statale 16 per Lecce e a 170 metri dal parco comunale, garantisce un facile accesso alle principali vie di comunicazione e a una delle più grandi aree verdi della città. Il quartiere ha una vocazione prevalentemente residenziale, arricchita dalla presenza di edifici pubblici e servizi essenziali, rendendolo una zona ideale per nuove destinazioni d’uso e progetti di riqualificazione.
Building realized between 1975 and 1976, used until 2005 as a high school and currently unused. The structure is spread over five above-ground floors and a basement, with two entrances on via Montebello, for a total cadastral area of about 11,700 sqm, divided as follows:
With a change of use, it could be transformed into a modern residential complex, for the creation of approximately 20 real estate units of various sizes, three commercial spaces on the ground floor, and 20 covered parking spaces in the basement, a large communal rooftop garden. an added value for future residents or investors.
A development project that combines functionality and growth potential in a strategic area of the city.
- Ground floor: offices, meeting room, and bathrooms totaling 697 sqm.
- First, second, and third floors: classrooms and additional services;
- Fourth floor: additional classrooms and large terraces.
- Basement: storage rooms, warehouses, and technical rooms.
With a change of use, it could be transformed into a modern residential complex, for the creation of approximately 20 real estate units of various sizes, three commercial spaces on the ground floor, and 20 covered parking spaces in the basement, a large communal rooftop garden. an added value for future residents or investors.
A development project that combines functionality and growth potential in a strategic area of the city.
Alternative destinations: student dormitory; senior housing; tourist accommodation.
The property is located in the Santa Chiara district, a peripheral area but well connected to the center of Brindisi thanks to the presence of numerous public transportation. Its strategic position, just 200 meters from the Strada Statale 16 to Lecce and 170 meters from the municipal park, guarantees easy access to the main roads and one of the largest green areas in the city. The neighborhood has a predominantly residential vocation, enriched by the presence of public buildings and essential services, making it an ideal area for new uses and redevelopment projects.
The property is located in the Santa Chiara district, a peripheral area but well connected to the center of Brindisi thanks to the presence of numerous public transportation. Its strategic position, just 200 meters from the Strada Statale 16 to Lecce and 170 meters from the municipal park, guarantees easy access to the main roads and one of the largest green areas in the city. The neighborhood has a predominantly residential vocation, enriched by the presence of public buildings and essential services, making it an ideal area for new uses and redevelopment projects.
Vente en attente de l’émission d’un avis nouveau. Bâtiment construit entre 1975 et 1976, utilisé jusqu'en 2005 comme établissement d'enseignement supérieur et actuellement inutilisé. La structure s'étend sur cinq étages hors sol et un sous-sol, avec deux accès sur la via Montebello, pour une superficie cadastrale totale d'environ 11 700 mètres carrés répartis comme suit :
La propriété est en béton armé avec un toit plat. L'état de conservation de la structure est correct, tandis que l'intérieur nécessite des travaux de rénovation, étant donné les infiltrations du toit et les signes de détérioration des peintures extérieures. Grâce à sa grande superficie et à la polyvalence des espaces, cette propriété offre une excellente opportunité de rénovation et de valorisation.
En modifiant la destination d'usage, il pourrait être transformé en un complexe résidentiel moderne, pour la réalisation d'environ 20 unités de différentes superficies, trois locaux commerciaux au rez-de-chaussée, 20 places de parking couvertes au sous-sol, un grand jardin commun en terrasse au dernier étage. Une valeur ajoutée pour les futurs résidents ou investisseurs.
Un projet de développement qui allie fonctionnalité et potentiel de croissance dans un quartier stratégique de la ville.
- Rez-de-chaussée : bureaux, salle de réunion et toilettes pour un total de 697 mètres carrés.
- Premier, deuxième et troisième étages : salles de classe et autres services ;
- Quatrième étage : autres salles de classe et grandes terrasses.
- Sous-sol : locaux de stockage, entrepôts et locaux techniques.
La propriété est en béton armé avec un toit plat. L'état de conservation de la structure est correct, tandis que l'intérieur nécessite des travaux de rénovation, étant donné les infiltrations du toit et les signes de détérioration des peintures extérieures. Grâce à sa grande superficie et à la polyvalence des espaces, cette propriété offre une excellente opportunité de rénovation et de valorisation.
En modifiant la destination d'usage, il pourrait être transformé en un complexe résidentiel moderne, pour la réalisation d'environ 20 unités de différentes superficies, trois locaux commerciaux au rez-de-chaussée, 20 places de parking couvertes au sous-sol, un grand jardin commun en terrasse au dernier étage. Une valeur ajoutée pour les futurs résidents ou investisseurs.
Un projet de développement qui allie fonctionnalité et potentiel de croissance dans un quartier stratégique de la ville.
Destinations alternatives : résidence étudiante ; logements pour seniors ; hébergement touristique.
La propriété est située dans le quartier de Santa Chiara, une zone périphérique mais bien desservie par les transports en commun du centre de Brindisi. Sa position stratégique, à seulement 200 mètres de la SS16 pour Lecce et à 170 mètres du parc municipal, garantit un accès facile aux principales voies de communication et à l'un des plus grands espaces verts de la ville. Le quartier a une vocation principalement résidentielle, enrichie par la présence de bâtiments publics et de services essentiels, ce qui en fait une zone idéale pour de nouvelles destinations d'usage et des projets de rénovation.
La propriété est située dans le quartier de Santa Chiara, une zone périphérique mais bien desservie par les transports en commun du centre de Brindisi. Sa position stratégique, à seulement 200 mètres de la SS16 pour Lecce et à 170 mètres du parc municipal, garantit un accès facile aux principales voies de communication et à l'un des plus grands espaces verts de la ville. Le quartier a une vocation principalement résidentielle, enrichie par la présence de bâtiments publics et de services essentiels, ce qui en fait une zone idéale pour de nouvelles destinations d'usage et des projets de rénovation.
Vente en attente de l’émission d’un avis nouveau. Gebäude, das zwischen 1975 und 1976 errichtet wurde, bis 2005 als höhere Schule genutzt wurde und derzeit ungenutzt ist. Das Gebäude erstreckt sich über fünf oberirdische Etagen und ein Untergeschoss, mit zwei Zugängen in der Via Montebello, für eine Gesamtfläche von ca. 11.700 m², aufgeteilt in folgende Bereiche:
Mit einer Umnutzung könnte es in ein modernes Wohnkomplex umgewandelt werden, zur Realisierung von etwa 20 Einheiten mit variabler Größe, drei Gewerbeeinheiten im Erdgeschoss und 20 überdachten Parkplätzen im Untergeschoss, einem großen gemeinschaftlichen Dachgarten im obersten Stockwerk, ein Mehrwert für zukünftige Bewohner oder Investoren.
Ein Entwicklungsprojekt, das Funktionalität und Wachstumspotenzial in einem strategischen Bereich der Stadt vereint.
- Erdgeschoss: Büros, Besprechungsräume und Toiletten mit einer Gesamtfläche von 697 m².
- Erster, zweiter und dritter Stock: Unterrichtsräume und weitere Einrichtungen;
- Vierter Stock: zusätzliche Räume und große Terrassen.
- Untergeschoss: Lagerräume, Lager und Technikräume.
Mit einer Umnutzung könnte es in ein modernes Wohnkomplex umgewandelt werden, zur Realisierung von etwa 20 Einheiten mit variabler Größe, drei Gewerbeeinheiten im Erdgeschoss und 20 überdachten Parkplätzen im Untergeschoss, einem großen gemeinschaftlichen Dachgarten im obersten Stockwerk, ein Mehrwert für zukünftige Bewohner oder Investoren.
Ein Entwicklungsprojekt, das Funktionalität und Wachstumspotenzial in einem strategischen Bereich der Stadt vereint.
Alternative Nutzungsmöglichkeiten: Studentenwohnheim; Seniorenwohnen; touristische Nutzung.
Das Gebäude befindet sich im Viertel Santa Chiara, einem Randgebiet, das jedoch gut an das Zentrum von Brindisi angebunden ist durch die Anwesenheit zahlreicher öffentlicher Verkehrsmittel. Die strategische Lage, nur 200 Meter von der Staatsstraße 16 nach Lecce und 170 Meter vom Stadtpark entfernt, gewährleistet einen einfachen Zugang zu den Hauptverkehrswegen und einem der größten Grünflächen der Stadt. Das Viertel hat hauptsächlich eine Wohnnutzung, bereichert durch die Präsenz von öffentlichen Gebäuden und essentiellen Dienstleistungen, was es zu einer idealen Zone für neue Nutzungsmöglichkeiten und Revitalisierungsprojekte macht.
Das Gebäude befindet sich im Viertel Santa Chiara, einem Randgebiet, das jedoch gut an das Zentrum von Brindisi angebunden ist durch die Anwesenheit zahlreicher öffentlicher Verkehrsmittel. Die strategische Lage, nur 200 Meter von der Staatsstraße 16 nach Lecce und 170 Meter vom Stadtpark entfernt, gewährleistet einen einfachen Zugang zu den Hauptverkehrswegen und einem der größten Grünflächen der Stadt. Das Viertel hat hauptsächlich eine Wohnnutzung, bereichert durch die Präsenz von öffentlichen Gebäuden und essentiellen Dienstleistungen, was es zu einer idealen Zone für neue Nutzungsmöglichkeiten und Revitalisierungsprojekte macht.
建筑物建于1975年至1976年,直到2005年被用作高中,目前处于未使用状态。该结构在地面以下有五层地上和一层地下,通过Montebello街道有两个入口,总共约11,700平方米,划分如下:
通过改变用途,它可以改建为一个现代化的住宅综合体,包括约20个不同大小的住宅单位,一楼有三个商业用房,地下室有20个有盖停车位,最顶层有一个大型共用屋顶花园。对未来居民或投资者来说是一个增值。
一个将功能性和增长潜力结合在城市战略区域的发展项目。
- 地面:办公室、会议室和共计697平方米的卫生间。
- 一楼、二楼和三楼:教室和其他服务设施;
- 四楼:额外的教室和宽阔露台。
- 地下室:储藏室、仓库和技术间。
通过改变用途,它可以改建为一个现代化的住宅综合体,包括约20个不同大小的住宅单位,一楼有三个商业用房,地下室有20个有盖停车位,最顶层有一个大型共用屋顶花园。对未来居民或投资者来说是一个增值。
一个将功能性和增长潜力结合在城市战略区域的发展项目。
替代用途:学生宿舍;老年公寓;旅游接待。
该建筑位于圣克拉拉区,这是一个郊区,但通过多种公共交通工具与布林迪西市中心连接良好。
其战略位置,距离通往莱切的16号国道仅200米,距离市立公园仅170米,确保方便地访问主要交通路线和城市最大的绿地之一。该社区主要用于居住,同时拥有公共建筑和基本服务设施,使其成为新用途和翻新计划的理想区域。
该建筑位于圣克拉拉区,这是一个郊区,但通过多种公共交通工具与布林迪西市中心连接良好。
其战略位置,距离通往莱切的16号国道仅200米,距离市立公园仅170米,确保方便地访问主要交通路线和城市最大的绿地之一。该社区主要用于居住,同时拥有公共建筑和基本服务设施,使其成为新用途和翻新计划的理想区域。
Объявление аукциона по данной продаже будет вскоре опубликовано. Здание было построено между 1975 и 1976 годами, использовалось как старшая школа до 2005 года и в настоящее время не используется. Здание состоит из пяти надземных этажей и одного подземного, с двумя входами на улицу Монтебелло, имеет общую кадастровую площадь около 11 700 кв. м, разделенную следующим образом:
Здание выполнено из железобетона с плоской крышей. Состояние конструкции хорошее, но интерьер требует реконструкции из-за протечек через крышу и признаков повреждения наружной краски. Благодаря своей обширной площади и универсальности помещений это здание предлагает отличные возможности для модернизации и повышения стоимости.
С изменением назначения использования это здание может быть преобразовано в современный жилой комплекс, включающий около 20 квартир различной площади, три коммерческих помещения на первом этаже, 20 крытых парковочных мест на подземном этаже, большой общественный сад-террасу на кровле. Это добавит ценности будущим жителям и инвесторам.
Проект, объединяющий функциональность и потенциал развития в стратегическом районе города.
- Первый этаж: офисы, залы совещаний и санузлы общей площадью 697 кв. м.
- Первый, второй и третий этажи: учебные аудитории и дополнительные услуги;
- Четвертый этаж: дополнительные аудитории и большие террасы.
- Подземный этаж: склады, магазины и техническое помещение.
Здание выполнено из железобетона с плоской крышей. Состояние конструкции хорошее, но интерьер требует реконструкции из-за протечек через крышу и признаков повреждения наружной краски. Благодаря своей обширной площади и универсальности помещений это здание предлагает отличные возможности для модернизации и повышения стоимости.
С изменением назначения использования это здание может быть преобразовано в современный жилой комплекс, включающий около 20 квартир различной площади, три коммерческих помещения на первом этаже, 20 крытых парковочных мест на подземном этаже, большой общественный сад-террасу на кровле. Это добавит ценности будущим жителям и инвесторам.
Проект, объединяющий функциональность и потенциал развития в стратегическом районе города.
Альтернативные варианты использования: общежитие для студентов; жилье для пожилых; туристическое размещение.
Здание находится в квартале Санта Кьяра, который находится на периферии, но хорошо связан с центром Бриндизи благодаря наличию общественного транспорта. Его стратегическое расположение всего в 200 метрах от шоссе Страда Статале 16 в Лечче и в 170 метрах от городского парка обеспечивает легкий доступ к основным магистралям и одному из крупнейших зеленых зон города. Квартал имеет преимущественно жилой статус, обогащенный общественными зданиями и основными службами, делая его идеальным местом для новых предназначений использования и проектов по модернизации.
Здание находится в квартале Санта Кьяра, который находится на периферии, но хорошо связан с центром Бриндизи благодаря наличию общественного транспорта. Его стратегическое расположение всего в 200 метрах от шоссе Страда Статале 16 в Лечче и в 170 метрах от городского парка обеспечивает легкий доступ к основным магистралям и одному из крупнейших зеленых зон города. Квартал имеет преимущественно жилой статус, обогащенный общественными зданиями и основными службами, делая его идеальным местом для новых предназначений использования и проектов по модернизации.
| Superficie | 11698 mq |
|---|---|
| Vani | 30 |
| Bagni | 32 |
| Piano |
| Tipologia di vendita | Privata |
|---|---|
| Modalità di vendita | Raccolta offerte |